13272 Tula Loop Astatula, FL 34705
For Sale MLS# TB8367709
4 beds 3 baths 2,059 sq ft Single Family
Details for 13272 Tula Loop
MLS# TB8367709
Description for 13272 Tula Loop, Astatula, FL, 34705
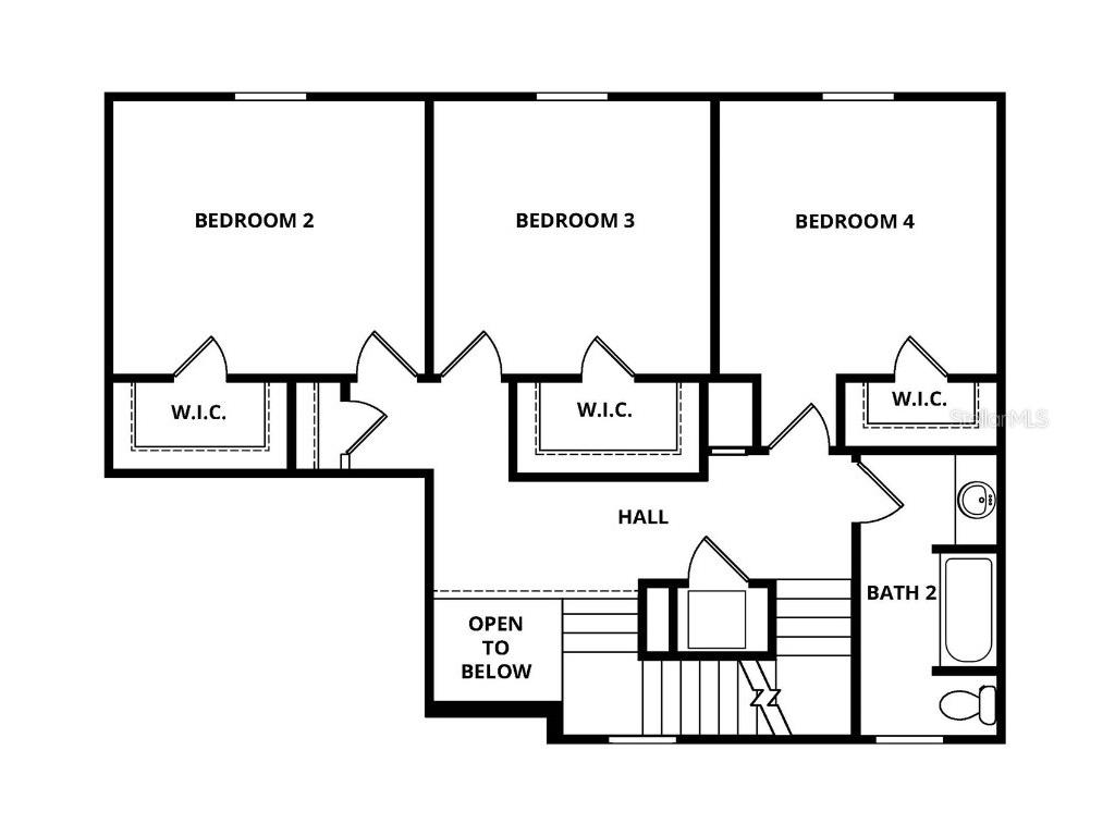
NOW AT A REDUCED PRICE! Our Summer Sales Event is here! Introducing the Parc floor plan in the tranquil Tula Parc community of Astatula. This stunning two-story home offers 4 bedrooms and 2.5 bathrooms, each bedroom featuring its own walk-in closet, providing ample storage for families and guests. The chef-ready kitchen is a culinary delight, seamlessly flowing into the open-concept family and dining areas—ideal for entertaining and creating lasting memories. The Parc floor plan was designed to surpass all expectations with impressive upgrades included at no extra cost to you. This home includes a modern take on additional style and convenience. An array of energy-efficient Whirlpool®appliances, including the refrigerator, stunning granite countertops, 36” upper-wood cabinets with crown molding, Moen® faucets and LED flush mount ENERGY STAR kitchen lights are just a few of the remarkable upgrades that complete the kitchen. In addition, programmable thermostats, designer coach lighting, double-pane Low-E vinyl windows and a WiFi-enabled garage door opener give the home features and finishes today’s homebuyers are looking for. A covered front porch welcomes you, while the covered back patio offers a serene retreat for outdoor relaxation. The private master suite includes a massive walk-in closet and a well-appointed en-suite bathroom. Enhanced with lush front yard landscaping, this home exudes curb appeal. Nestled near Little Lake Harris, Tula Parc provides residents with opportunities for boating, fishing, hiking, and golfing, all within a serene natural setting. Don’t miss the chance to make this exceptional home yours!
Listing Information
Property Type: Residential, Single Family Residence
Status: Active
Bedrooms: 4
Bathrooms: 3
Lot Size: 0.13 Acres
Square Feet: 2,059 sq ft
Year Built: 2025
Garage: Yes
Stories: 2 Story
Construction: Block,Stucco
Construction Display: New Construction
Subdivision: Tula Parc
Builder: LGI Homes Florida LLC
Foundation: Slab
County: Lake
Construction Status: New Construction
School Information
Elementary: Astatula Elem
Middle: Tavares Middle
High: Tavares High
Room Information
Main Floor
Bathroom 3: 6x5
Kitchen: 11x12
Primary Bathroom: 11x10
Primary Bedroom: 14x13
Living Room: 15x18
Dining Room: 10x10
Upper Floor
Bedroom 4: 10x10
Bedroom 3: 12x12
Bathroom 2: 12x6
Bedroom 2: 12x14
Bathrooms
Full Baths: 2
1/2 Baths: 1
Additonal Room Information
Laundry: Electric Dryer Hookup, Laundry Room, Washer Hookup, Inside, In Kitchen
Interior Features
Appliances: Electric Water Heater, Microwave, Range, Refrigerator, Dishwasher, Disposal, Exhaust Fan, Ice Maker
Flooring: Carpet,Luxury Vinyl
Doors/Windows: Low-Emissivity Windows, Window Treatments, ENERGY STAR Qualified Windows, Blinds, Double Pane Windows
Additional Interior Features: Ceiling Fan(s), Walk-In Closet(s), Window Treatments, Main Level Primary, Kitchen/Family Room Combo, Open Floorplan, Stone Counters
Utilities
Water: Public
Sewer: Public Sewer
Other Utilities: Cable Available,Electricity Available,Electricity Connected,Fiber Optic Available,Municipal Utilities,Phone Available,Underground Utilities,Water Available,Water Connected
Cooling: Ceiling Fan(s), Central Air
Heating: Heat Pump, Electric
Exterior / Lot Features
Attached Garage: Attached Garage
Garage Spaces: 2
Parking Description: Garage, Garage Door Opener, driveway
Roof: Shingle
Additional Exterior/Lot Features: Sprinkler/Irrigation, Lighting, Covered, Patio, Front Porch, Rear Porch, Corner Lot, Landscaped
Community Features
Community Features: Playground, Sidewalks, Street Lights, Golf Carts OK, Community Mailbox
Security Features: Smoke Detector(s)
Association Amenities: Playground
HOA Dues Include: Internet
Homeowners Association: Yes
HOA Dues: $95 / Monthly
Driving Directions
Take 408 W to Turnpike N and then take 278 Exit Turn Right onto County Road 561 to Georgia Avenue Turn Left on Georgia Avenue to Adams Street Turn Right on Adams Street and then Turn Right on Tula Loop
Financial Considerations
Terms: Cash,Conventional,FHA,VA Loan
Tax/Property ID: 29-20-26-0200-000-12600
Tax Amount: 5472
Tax Year: 2024
A broker reciprocity listing courtesy: LGI REALTY- FLORIDA, LLC
Based on information provided by Stellar MLS as distributed by the MLS GRID. Information from the Internet Data Exchange is provided exclusively for consumers’ personal, non-commercial use, and such information may not be used for any purpose other than to identify prospective properties consumers may be interested in purchasing. This data is deemed reliable but is not guaranteed to be accurate by Edina Realty, Inc., or by the MLS. Edina Realty, Inc., is not a multiple listing service (MLS), nor does it offer MLS access.
Copyright 2026 Stellar MLS as distributed by the MLS GRID. All Rights Reserved.
Payment Calculator
Interest rate and annual percentage rate (APR) are based on current market conditions, are for informational purposes only, are subject to change without notice and may be subject to pricing add-ons related to property type, loan amount, loan-to-value, credit score and other variables. Estimated closing costs used in the APR calculation are assumed to be paid by the borrower at closing. If the closing costs are financed, the loan, APR and payment amounts will be higher. If the down payment is less than 20%, mortgage insurance may be required and could increase the monthly payment and APR. Contact us for details. Additional loan programs may be available. Accuracy is not guaranteed, and all products may not be available in all borrower's geographical areas and are based on their individual situation. This is not a credit decision or a commitment to lend.
Sales History & Tax Summary for 13272 Tula Loop
Sales History
| Date | Price | Change |
|---|---|---|
| Currently not available. | ||
Tax Summary
| Tax Year | Estimated Market Value | Total Tax |
|---|---|---|
| Currently not available. | ||
Data powered by ATTOM Data Solutions. Copyright© 2026. Information deemed reliable but not guaranteed.
Schools
Schools nearby 13272 Tula Loop
| Schools in attendance boundaries | Grades | Distance | Rating |
|---|---|---|---|
| Loading... | |||
| Schools nearby | Grades | Distance | Rating |
|---|---|---|---|
| Loading... | |||
Data powered by ATTOM Data Solutions. Copyright© 2026. Information deemed reliable but not guaranteed.
The schools shown represent both the assigned schools and schools by distance based on local school and district attendance boundaries. Attendance boundaries change based on various factors and proximity does not guarantee enrollment eligibility. Please consult your real estate agent and/or the school district to confirm the schools this property is zoned to attend. Information is deemed reliable but not guaranteed.
SchoolDigger ® Rating
The SchoolDigger rating system is a 1-5 scale with 5 as the highest rating. SchoolDigger ranks schools based on test scores supplied by each state's Department of Education. They calculate an average standard score by normalizing and averaging each school's test scores across all tests and grades.
Coming soon properties will soon be on the market, but are not yet available for showings.