13295 Bromborough Drive Orlando, FL 32832
For Sale MLS# O6349981
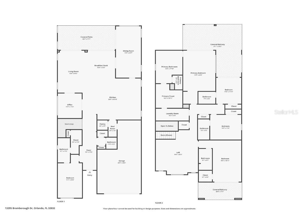
5 beds 6 baths 4,280 sq ft Single Family
Details for 13295 Bromborough Drive
MLS# O6349981
Description for 13295 Bromborough Drive, Orlando, FL, 32832
Welcome to luxury living in Eagle Creek—one of Lake Nona’s most sought-after gated golf communities. This stunning 5-bedroom, 5.5-bath residence perfectly blends elegance and everyday comfort with water views, spacious living, and thoughtful design throughout. Step inside to an inviting open floor plan highlighted by natural light, tray ceilings, and designer finishes. The gourmet kitchen features sleek quartz countertops, double ovens, a gas cooktop, walk-in pantry, and a large island that opens to the dining area and great room—ideal for gathering and entertaining. A wall of glass sliders extends the living space to the covered lanai, where you can dine al fresco or relax while overlooking the tranquil water. Upstairs, the expansive primary suite offers serene water views and private access to a covered balcony—the perfect place to enjoy your morning coffee or sunset breeze. The spa-inspired bath features dual vanities, a large glass-enclosed shower with pebble flooring, and a spacious custom closet with built-ins. Every bedroom in the home includes its own ensuite bath, offering privacy and comfort for family and guests alike. The second-floor loft serves as the ultimate hangout, complete with a wet bar and space for a theater setup or game nights. Outside, the fully fenced backyard features premium artificial turf, ideal for low-maintenance play and entertaining year-round. Eagle Creek residents enjoy resort-style amenities including a pool and splash zone, clubhouse with gym and event space, lighted tennis courts, playground, dog park, and multi-use fields. Golf lovers will appreciate the community’s championship course, pro shop, and on-site restaurant—all just steps away. Zoned for top-rated Lake Nona schools and moments from Medical City, shopping, dining, and theme parks, this home delivers family-friendly luxury in one of Orlando’s premier locations.
Listing Information
Property Type: Residential, Single Family Residence
Status: Active
Bedrooms: 5
Bathrooms: 6
Lot Size: 0.15 Acres
Square Feet: 4,280 sq ft
Year Built: 2023
Garage: Yes
Stories: 2 Story
Construction: Block,Concrete,Stone,Stucco
Subdivision: Eagle Creek
Foundation: Slab
County: Orange
School Information
Elementary: Eagle Creek Elementary
High: Lake Nona High
Room Information
Main Floor
Bedroom 2:
Living Room:
Dinette:
Dining Room:
Kitchen:
Porch:
Upper Floor
Porch:
Porch:
Loft:
Bedroom 5:
Bedroom 4:
Bedroom 3:
Primary Bathroom:
Primary Bedroom:
Bathrooms
Full Baths: 5
1/2 Baths: 1
Additonal Room Information
Laundry: Upper Level, Laundry Room, Inside
Interior Features
Appliances: Wine Refrigerator, Built-In Oven, Electric Water Heater, Range Hood, Microwave, Refrigerator, Dishwasher, Disposal, Cooktop
Flooring: Carpet,Ceramic Tile
Doors/Windows: Window Treatments
Additional Interior Features: Split Bedrooms, Loft, Walk-In Closet(s), Window Treatments, Tray Ceiling(s), Built-in Features, Wet Bar, Eat-In Kitchen, High Ceilings, Living/Dining Room, Open Floorplan, Crown Molding, Dry Bar, Wood Cabinets, Upper Level Primary, Stone Counters, Kitchen/Family Room Combo
Utilities
Water: Public
Sewer: Public Sewer
Other Utilities: Municipal Utilities
Cooling: Central Air
Heating: Central, Electric
Exterior / Lot Features
Attached Garage: Attached Garage
Garage Spaces: 2
Parking Description: Garage Door Opener, Garage, driveway
Roof: Tile
Pool: Community
Lot View: Pond,Water
Fencing: fenced
Additional Exterior/Lot Features: Rain Gutters, Sprinkler/Irrigation, Balcony, Lighting, Balcony, Covered, Rear Porch, Front Porch, Flat, Level, Landscaped
Waterfront Details
Water Front Features: Pond
Community Features
Community Features: Pool, Sidewalks, Gated, Park, Fitness, Golf Carts OK, Recreation Area, Clubhouse, Dog Park, Community Mailbox
Security Features: Security System, Gated with Guard, Gated Community, Smoke Detector(s)
Homeowners Association: Yes
HOA Dues: $2,200 / Annually
Driving Directions
S Narcoossee Rd to Eagle Creek Sanctuary Blvd to Bucklow Hill Dr to Bromborough Dr
Financial Considerations
Terms: Cash,Conventional,Other,VA Loan
Tax/Property ID: 33-24-31-2299-02-030
Tax Amount: 16524
Tax Year: 2024
A broker reciprocity listing courtesy: REAL BROKER, LLC
Based on information provided by Stellar MLS as distributed by the MLS GRID. Information from the Internet Data Exchange is provided exclusively for consumers’ personal, non-commercial use, and such information may not be used for any purpose other than to identify prospective properties consumers may be interested in purchasing. This data is deemed reliable but is not guaranteed to be accurate by Edina Realty, Inc., or by the MLS. Edina Realty, Inc., is not a multiple listing service (MLS), nor does it offer MLS access.
Copyright 2025 Stellar MLS as distributed by the MLS GRID. All Rights Reserved.
Payment Calculator
Interest rate and annual percentage rate (APR) are based on current market conditions, are for informational purposes only, are subject to change without notice and may be subject to pricing add-ons related to property type, loan amount, loan-to-value, credit score and other variables. Estimated closing costs used in the APR calculation are assumed to be paid by the borrower at closing. If the closing costs are financed, the loan, APR and payment amounts will be higher. If the down payment is less than 20%, mortgage insurance may be required and could increase the monthly payment and APR. Contact us for details. Additional loan programs may be available. Accuracy is not guaranteed, and all products may not be available in all borrower's geographical areas and are based on their individual situation. This is not a credit decision or a commitment to lend.
Sales History & Tax Summary for 13295 Bromborough Drive
Sales History
| Date | Price | Change |
|---|---|---|
| Currently not available. | ||
Tax Summary
| Tax Year | Estimated Market Value | Total Tax |
|---|---|---|
| Currently not available. | ||
Data powered by ATTOM Data Solutions. Copyright© 2025. Information deemed reliable but not guaranteed.
Schools
Schools nearby 13295 Bromborough Drive
| Schools in attendance boundaries | Grades | Distance | Rating |
|---|---|---|---|
| Loading... | |||
| Schools nearby | Grades | Distance | Rating |
|---|---|---|---|
| Loading... | |||
Data powered by ATTOM Data Solutions. Copyright© 2025. Information deemed reliable but not guaranteed.
The schools shown represent both the assigned schools and schools by distance based on local school and district attendance boundaries. Attendance boundaries change based on various factors and proximity does not guarantee enrollment eligibility. Please consult your real estate agent and/or the school district to confirm the schools this property is zoned to attend. Information is deemed reliable but not guaranteed.
SchoolDigger ® Rating
The SchoolDigger rating system is a 1-5 scale with 5 as the highest rating. SchoolDigger ranks schools based on test scores supplied by each state's Department of Education. They calculate an average standard score by normalizing and averaging each school's test scores across all tests and grades.
Coming soon properties will soon be on the market, but are not yet available for showings.