1335 Berry Lane Davenport, FL 33837
Pending MLS# TB8395769
3 beds 2 baths 1,625 sq ft Single Family
Details for 1335 Berry Lane
MLS# TB8395769
Description for 1335 Berry Lane, Davenport, FL, 33837
Under contract-accepting backup offers. Short Sale. !!!Short Sale Opportunity in Davenport !!!– Just $295,000! Welcome to your next home sweet home! This MOVE-IN READY gem offers unbeatable value in a thriving community—perfect for first-time buyers, savvy investors, or anyone seeking comfort and convenience at a great price. Start your mornings right in the sleek kitchen featuring a spacious island, stainless-steel appliances, and a walk-in pantry stocked with your favorites. Open-concept living flows effortlessly into the dining and lounge areas—ideal for hosting guests or winding down after a long day. Primary suite retreat boasts dual sinks, a glass-enclosed shower, and a walk-in closet ready for your wardrobe goals. Smart home features let you control locks, lights, thermostat, and garage with your voice. Upgrades galore: rain gutters, river rock landscaping, and a semi-fenced backyard for added privacy. Located in a desirable Davenport neighborhood with easy access to shopping, dining, major highways, and Central Florida attractions. Short sale pricing at just $295K—a rare opportunity to own a stylish, tech-savvy home below market value! Call today to schedule your private showing before this opportunity slips away!
Listing Information
Property Type: Residential, Single Family Residence
Status: Pending
Bedrooms: 3
Bathrooms: 2
Lot Size: 0.11 Acres
Square Feet: 1,625 sq ft
Year Built: 2022
Garage: Yes
Stories: 1 Story
Construction: Brick
Construction Display: New Construction
Subdivision: Bella Vita Ph 1b-2 & 2
Foundation: Block
County: Polk
Construction Status: New Construction
School Information
Elementary: Eastside Elem
Middle: Boone Middle
High: Ridge Community Senior High
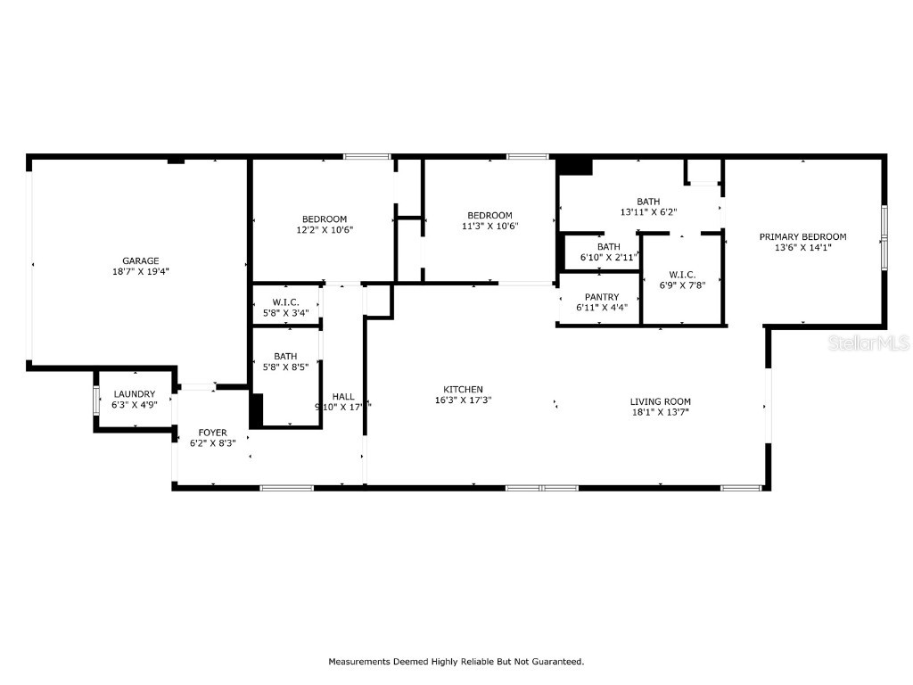
Room Information
Main Floor
Primary Bathroom:
Bathroom 2:
Living Room: 23x13
Kitchen: 10x13
Bathroom 3: 11x10
Bedroom 2: 12x10
Primary Bedroom: 13x14
Bathrooms
Full Baths: 2
Additonal Room Information
Laundry: Inside
Interior Features
Appliances: Built-In Oven, Microwave, Dishwasher, Disposal, Range, Refrigerator
Flooring: Carpet,Laminate
Doors/Windows: Shutters
Additional Interior Features: Ceiling Fan(s), High Ceilings
Utilities
Water: Public
Sewer: Public Sewer
Other Utilities: Cable Available,Electricity Available,Municipal Utilities
Cooling: Ceiling Fan(s), Central Air
Heating: Central
Exterior / Lot Features
Attached Garage: Attached Garage
Garage Spaces: 2
Roof: Shingle
Pool: Community, Association
Fencing: Other
Additional Exterior/Lot Features: Lighting, Sprinkler/Irrigation, Storm/Security Shutters, Rear Porch
Community Features
Community Features: Sidewalks, Pool, Playground, Community Mailbox
Security Features: Smoke Detector(s)
Association Amenities: Other, Pool, Playground
HOA Dues Include: Pool(s), Recreation Facilities, Internet
Homeowners Association: Yes
HOA Dues: $170 / Quarterly
Driving Directions
Take I-4 West to Exit 58 (Champions Gate). Turn left onto Osceola Polk Line Road and continue until you reach Highway 17/92. Head south for approximately 5 miles, and you'll find the community on your left. And you are HOME!
Financial Considerations
Terms: Cash,Conventional,FHA,Lease Purchase,USDA Loan,VA Loan
Tax/Property ID: 27-27-03-721523-000800
Tax Amount: 6732
Tax Year: 2024
A broker reciprocity listing courtesy: LOKATION
Based on information provided by Stellar MLS as distributed by the MLS GRID. Information from the Internet Data Exchange is provided exclusively for consumers’ personal, non-commercial use, and such information may not be used for any purpose other than to identify prospective properties consumers may be interested in purchasing. This data is deemed reliable but is not guaranteed to be accurate by Edina Realty, Inc., or by the MLS. Edina Realty, Inc., is not a multiple listing service (MLS), nor does it offer MLS access.
Copyright 2026 Stellar MLS as distributed by the MLS GRID. All Rights Reserved.
Sales History & Tax Summary for 1335 Berry Lane
Sales History
| Date | Price | |
|---|---|---|
| Currently not available. | ||
Tax Summary
| Tax Year | Estimated Market Value | Total Tax |
|---|---|---|
| Currently not available. | ||
Data powered by ATTOM Data Solutions. Copyright© 2026. Information deemed reliable but not guaranteed.
Schools
Schools nearby 1335 Berry Lane
| Schools in attendance boundaries | Grades | Distance | Rating |
|---|---|---|---|
| Loading... | |||
| Schools nearby | Grades | Distance | Rating |
|---|---|---|---|
| Loading... | |||
Data powered by ATTOM Data Solutions. Copyright© 2026. Information deemed reliable but not guaranteed.
The schools shown represent both the assigned schools and schools by distance based on local school and district attendance boundaries. Attendance boundaries change based on various factors and proximity does not guarantee enrollment eligibility. Please consult your real estate agent and/or the school district to confirm the schools this property is zoned to attend. Information is deemed reliable but not guaranteed.
SchoolDigger ® Rating
The SchoolDigger rating system is a 1-5 scale with 5 as the highest rating. SchoolDigger ranks schools based on test scores supplied by each state's Department of Education. They calculate an average standard score by normalizing and averaging each school's test scores across all tests and grades.
Coming soon properties will soon be on the market, but are not yet available for showings.