1336 Casey Key Drive Punta Gorda, FL 33950
For Sale MLS# C7505856
3 beds 2 baths 2,320 sq ft Single Family
Details for 1336 Casey Key Drive
MLS# C7505856
Description for 1336 Casey Key Drive, Punta Gorda, FL, 33950
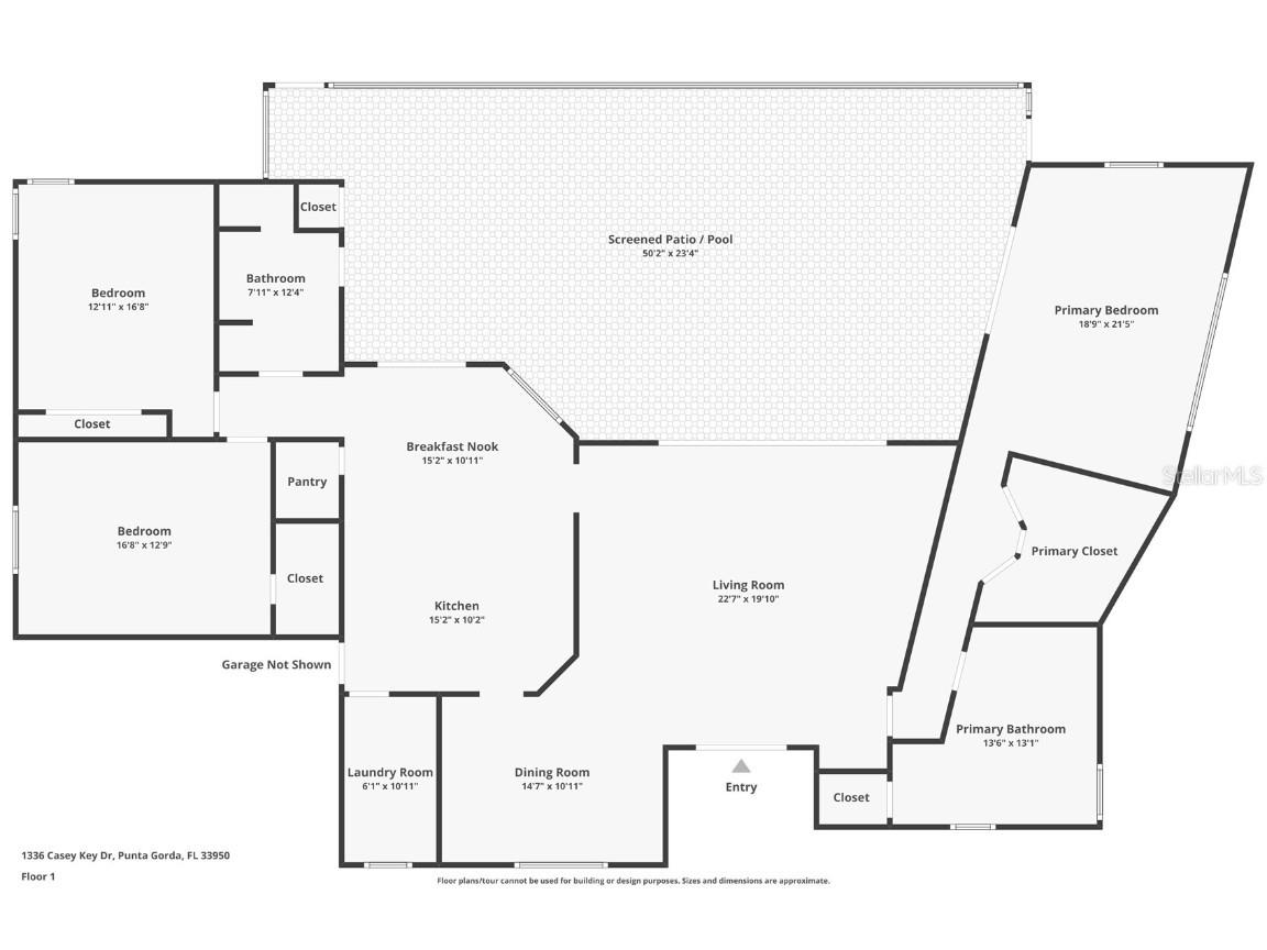
A true statement of waterfront luxury, this TOWLES BUILT HOME sits on an invaluable piece of real estate in Punta Gorda Isles with direct sailboat access to Charlotte Harbor, Gulf of Mexico and Sunset Lake. Situated at the end in a cul-de-sac, the property features 105 feet of concrete seawall, two docks, fish cleaning station, water and electric hookups, and a 10,000 lb. boat lift. With 3 bedrooms, 2 bathrooms, and a 2-car garage, it offers over 2,300 square feet of elegantly appointed living space. Marvel at the breathtaking sunrises and sunsets visible from nearly every room. The expansive Great Room boasts soaring ceilings, tile flooring throughout, a built-in entertainment center, and a wet bar with a custom African Mahogany countertop. A dining area and stunning architectural details complete the space. Pocket sliding glass doors open to the pool and lanai, seamlessly blending the indoors with the stunning waterfront views. The chef’s kitchen is the heart of the home, featuring exquisite granite countertops, a breakfast bar, sleek white raised-panel cabinets, stainless steel appliances, and a cozy breakfast nook with views of the pool and canal. The thoughtful design continues in the primary suite, offering private pool access through sliding doors, tri-color oak flooring, two spacious walk-in closets, and a luxurious en suite bath with a jetted soaking tub, walk-in shower, and granite vanity with an ice block window for natural light. The guest wing is equally impressive, offering two bedrooms and an updated guest bathroom that mirrors the primary bath, complete with a walk-in shower and frameless glass door. This area is strategically separated from the main living spaces to ensure privacy for your guests. Step outside to the expansive screened lanai (New Pool Cage), featuring a sparkling pool and stunning, unobstructed views of the intersecting extra wide canal – the perfect setting to embrace Florida’s outdoor lifestyle. An outdoor shower, a convenient storage closet for pool essentials, and a covered lanai area complete this inviting space. New aluminum fenced-in backyard is perfect for the pets on the run. The laundry room, conveniently located off the kitchen, leads to an oversized 2-car garage with epoxy flooring and abundant storage. Additional features include a durable NEW Stone Coated Steel Roof with a 40-year transferable warranty, new hurricane-rated windows paired with accordion shutters at the rear, and elegant plantation shutters throughout. The home boasts stunning African Mahogany countertops in various areas, newly installed soffits, outdoor lighting, and a beautifully landscaped yard. This home offers the perfect blend of beauty and serenity. Located just minutes from historic downtown Punta Gorda, Fisherman’s Village, dining, shopping, waterfront parks, and entertainment. Convenient access to I-75, US-41, and two airports – Punta Gorda and Southwest Florida International – make this an ideal location for easy travel. Experience your slice of paradise in this welcoming sanctuary.
Listing Information
Property Type: Residential, Single Family Residence
Status: Active
Bedrooms: 3
Bathrooms: 2
Lot Size: 0.22 Acres
Square Feet: 2,320 sq ft
Year Built: 1992
Garage: Yes
Stories: 1 Story
Construction: Block,Stucco
Subdivision: Punta Gorda Isles Sec 12
Foundation: Slab
County: Charlotte
Room Information
Main Floor
Laundry: 6x11
Bedroom 3: 13x17
Bedroom 2: 13x17
Primary Bedroom: 19x22
Dinette: 10x15
Kitchen: 10x15
Dining Room: 11x15
Living Room: 19x23
Bathrooms
Full Baths: 2
Additonal Room Information
Laundry: Laundry Room, Inside
Interior Features
Appliances: Range, Refrigerator, Dishwasher, Dryer, Microwave
Flooring: Tile,Wood
Additional Interior Features: Eat-In Kitchen, Ceiling Fan(s), Walk-In Closet(s), Split Bedrooms, High Ceilings, Built-in Features, Cathedral Ceiling(s), Living/Dining Room, Stone Counters, Open Floorplan
Utilities
Water: Public
Sewer: Public Sewer
Other Utilities: Cable Available,Cable Connected,Electricity Available,Electricity Connected,Municipal Utilities,Phone Available
Cooling: Ceiling Fan(s), Central Air
Heating: Central
Exterior / Lot Features
Attached Garage: Attached Garage
Garage Spaces: 2
Parking Description: Garage Door Opener, Garage, driveway
Roof: Metal
Pool: Screen Enclosure, In Ground, Other, Gunite
Lot View: Canal,Pool,Water
Lot Dimensions: 86x100x105x120
Additional Exterior/Lot Features: Rain Gutters, Storm/Security Shutters, Outdoor Shower, Sprinkler/Irrigation, Lighting, Screened, Covered, Landscaped, Cul-de-Sac, Dead End, Oversized Lot
Waterfront Details
Water Front Features: Gulf Access, Canal Front, River Access
Driving Directions
From US41 South in Punta Gorda, turn right onto Aqui Esta, left onto Bal Harbor. Follow to a left onto Casey Key Dr. Home is at the end on the left.
Financial Considerations
Terms: Cash,Conventional,FHA
Tax/Property ID: 412224334009
Tax Amount: 6496.85
Tax Year: 2024
A broker reciprocity listing courtesy: GRANT TEAM REAL ESTATE, LLC
Based on information provided by Stellar MLS as distributed by the MLS GRID. Information from the Internet Data Exchange is provided exclusively for consumers’ personal, non-commercial use, and such information may not be used for any purpose other than to identify prospective properties consumers may be interested in purchasing. This data is deemed reliable but is not guaranteed to be accurate by Edina Realty, Inc., or by the MLS. Edina Realty, Inc., is not a multiple listing service (MLS), nor does it offer MLS access.
Copyright 2025 Stellar MLS as distributed by the MLS GRID. All Rights Reserved.
Payment Calculator
Interest rate and annual percentage rate (APR) are based on current market conditions, are for informational purposes only, are subject to change without notice and may be subject to pricing add-ons related to property type, loan amount, loan-to-value, credit score and other variables. Estimated closing costs used in the APR calculation are assumed to be paid by the borrower at closing. If the closing costs are financed, the loan, APR and payment amounts will be higher. If the down payment is less than 20%, mortgage insurance may be required and could increase the monthly payment and APR. Contact us for details. Additional loan programs may be available. Accuracy is not guaranteed, and all products may not be available in all borrower's geographical areas and are based on their individual situation. This is not a credit decision or a commitment to lend.
Sales History & Tax Summary for 1336 Casey Key Drive
Sales History
| Date | Price | Change |
|---|---|---|
| Currently not available. | ||
Tax Summary
| Tax Year | Estimated Market Value | Total Tax |
|---|---|---|
| Currently not available. | ||
Data powered by ATTOM Data Solutions. Copyright© 2025. Information deemed reliable but not guaranteed.
Schools
Schools nearby 1336 Casey Key Drive
| Schools in attendance boundaries | Grades | Distance | Rating |
|---|---|---|---|
| Loading... | |||
| Schools nearby | Grades | Distance | Rating |
|---|---|---|---|
| Loading... | |||
Data powered by ATTOM Data Solutions. Copyright© 2025. Information deemed reliable but not guaranteed.
The schools shown represent both the assigned schools and schools by distance based on local school and district attendance boundaries. Attendance boundaries change based on various factors and proximity does not guarantee enrollment eligibility. Please consult your real estate agent and/or the school district to confirm the schools this property is zoned to attend. Information is deemed reliable but not guaranteed.
SchoolDigger ® Rating
The SchoolDigger rating system is a 1-5 scale with 5 as the highest rating. SchoolDigger ranks schools based on test scores supplied by each state's Department of Education. They calculate an average standard score by normalizing and averaging each school's test scores across all tests and grades.
Coming soon properties will soon be on the market, but are not yet available for showings.