$435,000
13361 SW Pembroke Circle N Lake Suzy, FL 34269
For Sale MLS# C7517137
3 beds 2 baths 2,078 sq ft Single Family
Details for 13361 SW Pembroke Circle N
MLS# C7517137
Description for 13361 SW Pembroke Circle N, Lake Suzy, FL, 34269
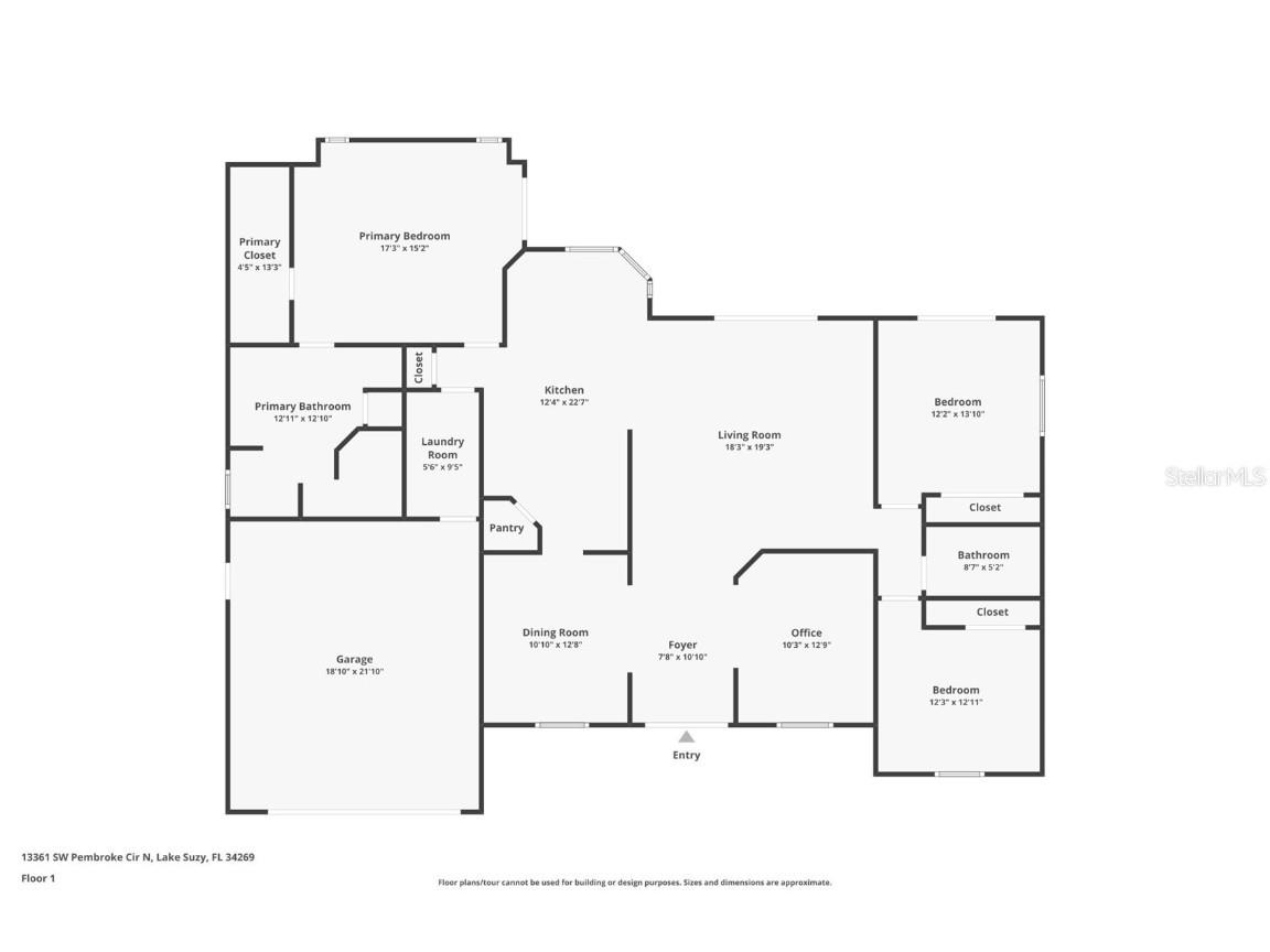
Welcome to the desirable Lake Pembroke community in beautiful Lake Suzy! This beautiful 3-bedroom, 2-bathroom pool home with a 2-car garage offers 2,078 sq. ft. of living space. As you arrive, you’ll be greeted by mature landscaping, stone curbing, and excellent curb appeal. Enjoy the convenience of public water and sewer. Double French doors open to a welcoming foyer that flows into the formal dining room and a bonus room, currently used as an office. This home features plantation shutters, high ceilings, crown molding, and laminate flooring in the office, with carpet in the bedrooms and tile throughout the main living areas. The spacious living room opens through French doors to the screened lanai and sparkling pool area. The kitchen is perfect for entertaining, offering a breakfast bar, walk-in pantry, abundant cabinetry and counter space, and a cozy breakfast nook. The primary suite provides direct access to the pool, a walk-in closet, and an ensuite bathroom with dual sinks, a tiled walk-in shower, a garden tub, and a linen closet. Both guest bedrooms are generously sized and share a full bathroom with a single vanity and shower/tub combo. The indoor laundry room includes extra cabinet storage, a utility sink, and a washer and dryer. Step outside to your private backyard oasis, complete with a refreshing pool featuring a stone waterfall and an oversized screened lanai—ideal for relaxing or entertaining family and friends. For peace of mind, the lanai is equipped with accordion shutters for added protection. Recent updates include: AC 2024, Roof & Carpet 2023, Pool Pump 2022 and Hot Water Heater 2020. The Pembroke community offers a scenic walking path and is surrounded by multiple golf courses — perfect for the golf enthusiast! Conveniently located near I-75, you’ll have easy access to local shopping, dining, live entertainment, and award-winning beaches. This home truly combines comfort, function, and style in a highly sought-after neighborhood—schedule your showing today!
Listing Information
Property Type: Residential, Single Family Residence
Status: Active
Bedrooms: 3
Bathrooms: 2
Lot Size: 0.26 Acres
Square Feet: 2,078 sq ft
Year Built: 2004
Garage: Yes
Stories: 1 Story
Construction: Block,Stucco
Subdivision: Pembroke Sub
Foundation: Slab
County: Desoto
Room Information
Main Floor
Bedroom 3:
Bedroom 2:
Primary Bedroom:
Dinette:
Kitchen:
Dining Room:
Den:
Living Room:
Bathrooms
Full Baths: 2
Additonal Room Information
Laundry: Inside, Laundry Room
Interior Features
Appliances: Range, Refrigerator, Washer, Dishwasher, Dryer, Microwave
Flooring: Carpet,Laminate
Doors/Windows: Window Treatments, Shutters
Additional Interior Features: Ceiling Fan(s), Split Bedrooms, Walk-In Closet(s), Eat-In Kitchen, Separate/Formal Dining Room, Crown Molding, Window Treatments, High Ceilings
Utilities
Water: Public
Sewer: Public Sewer
Other Utilities: Cable Available,Electricity Connected,Sewer Connected,Water Connected
Cooling: Central Air, Ceiling Fan(s)
Heating: Central
Exterior / Lot Features
Attached Garage: Attached Garage
Garage Spaces: 2
Parking Description: Garage, Garage Door Opener
Roof: Shingle
Pool: Other, Screen Enclosure, Gunite, In Ground
Additional Exterior/Lot Features: French Patio Doors, Rain Gutters, Storm/Security Shutters, Screened, Landscaped
Community Features
Homeowners Association: Yes
HOA Dues: $150 / Annually
Driving Directions
East onto Kings Hwy, Left onto SW Kingsway Cir, Left onto SW Pembroke Cir N, 13361 SW Pembroke Circle will be on the left look for sign
Financial Considerations
Terms: Cash,Conventional,FHA,VA Loan
Tax/Property ID: 31-39-23-0283-0040-0080
Tax Amount: 6512.32
Tax Year: 2024
A broker reciprocity listing courtesy: RE/MAX PALM REALTY
Based on information provided by Stellar MLS as distributed by the MLS GRID. Information from the Internet Data Exchange is provided exclusively for consumers’ personal, non-commercial use, and such information may not be used for any purpose other than to identify prospective properties consumers may be interested in purchasing. This data is deemed reliable but is not guaranteed to be accurate by Edina Realty, Inc., or by the MLS. Edina Realty, Inc., is not a multiple listing service (MLS), nor does it offer MLS access.
Copyright 2025 Stellar MLS as distributed by the MLS GRID. All Rights Reserved.
Payment Calculator
Interest rate and annual percentage rate (APR) are based on current market conditions, are for informational purposes only, are subject to change without notice and may be subject to pricing add-ons related to property type, loan amount, loan-to-value, credit score and other variables. Estimated closing costs used in the APR calculation are assumed to be paid by the borrower at closing. If the closing costs are financed, the loan, APR and payment amounts will be higher. If the down payment is less than 20%, mortgage insurance may be required and could increase the monthly payment and APR. Contact us for details. Additional loan programs may be available. Accuracy is not guaranteed, and all products may not be available in all borrower's geographical areas and are based on their individual situation. This is not a credit decision or a commitment to lend.
Sales History & Tax Summary for 13361 SW Pembroke Circle N
Sales History
| Date | Price | Change |
|---|---|---|
| Currently not available. | ||
Tax Summary
| Tax Year | Estimated Market Value | Total Tax |
|---|---|---|
| Currently not available. | ||
Data powered by ATTOM Data Solutions. Copyright© 2025. Information deemed reliable but not guaranteed.
Schools
Schools nearby 13361 SW Pembroke Circle N
| Schools in attendance boundaries | Grades | Distance | Rating |
|---|---|---|---|
| Loading... | |||
| Schools nearby | Grades | Distance | Rating |
|---|---|---|---|
| Loading... | |||
Data powered by ATTOM Data Solutions. Copyright© 2025. Information deemed reliable but not guaranteed.
The schools shown represent both the assigned schools and schools by distance based on local school and district attendance boundaries. Attendance boundaries change based on various factors and proximity does not guarantee enrollment eligibility. Please consult your real estate agent and/or the school district to confirm the schools this property is zoned to attend. Information is deemed reliable but not guaranteed.
SchoolDigger ® Rating
The SchoolDigger rating system is a 1-5 scale with 5 as the highest rating. SchoolDigger ranks schools based on test scores supplied by each state's Department of Education. They calculate an average standard score by normalizing and averaging each school's test scores across all tests and grades.
Coming soon properties will soon be on the market, but are not yet available for showings.