1340 Blue Stem Lane Winter Park, FL 32792
For Sale MLS# O6365415
4 beds 4 baths 2,587 sq ft Single Family
Details for 1340 Blue Stem Lane
MLS# O6365415
Description for 1340 Blue Stem Lane, Winter Park, FL, 32792
*** Seller will contribute up to $5k towards an interest rate buy down for the buyer, with an acceptable offer.*** Located within the gated community of Hawk’s Crest, one of Winter Park’s most desirable neighborhoods, this beautifully maintained two-story home is set on an oversized lot with tranquil pond views and a layout designed to live effortlessly. Light-filled, open, and thoughtfully upgraded, the home offers a balance of comfort, style, and everyday functionality. A pavered driveway and walkway create an inviting arrival, leading into a bright interior with soaring ceilings and abundant natural light. The main living space flows seamlessly, anchored by a chef’s kitchen featuring quartz countertops, stainless steel appliances, solid wood cabinetry, and a generous island with breakfast bar—perfect for casual meals, entertaining, or gathering at the end of the day. The kitchen opens naturally to the dining and family rooms, creating a connected space that feels both open and welcoming. Sliding doors lead to a covered lanai overlooking the pond, extending the living space outdoors and providing a peaceful backdrop for morning coffee or evening relaxation. Inside, upgraded luxury vinyl flooring and custom roller shades add warmth and a polished finish throughout the main living areas. The first-floor primary suite offers a private retreat with serene water views, a spacious walk-in closet, and a spa-inspired bath with dual vanities and a walk-in shower. A dedicated office on the main level adds flexibility and can easily function as a fifth bedroom if needed. Upstairs, a generous loft provides additional living space—ideal for a media room, play area, or secondary lounge—while three well-sized bedrooms offer comfort and versatility for guests, hobbies, or working from home. Energy-efficient features, ample storage, and thoughtful design make the home as practical as it is inviting. Residents of Hawk’s Crest enjoy resort-style amenities including a community pool, fitness center, clubhouse, playgrounds, and scenic walking paths, along with HOA-included lawn care for low-maintenance living. Ideally situated near shopping, dining, outdoor recreation, and major roadways, this home offers both convenience and a sense of retreat within Winter Park. Come experience the lifestyle and setting that make this home truly special—schedule your private showing today.
Listing Information
Property Type: Residential, Single Family Residence
Status: Active
Bedrooms: 4
Bathrooms: 4
Lot Size: 0.11 Acres
Square Feet: 2,587 sq ft
Year Built: 2022
Garage: Yes
Stories: 2 Story
Construction: Block
Subdivision: Landings At Hawks Crest
Foundation: Slab
County: Seminole
School Information
Elementary: Eastbrook Elementary
Middle: Tuskawilla Middle
High: Lake Howell High
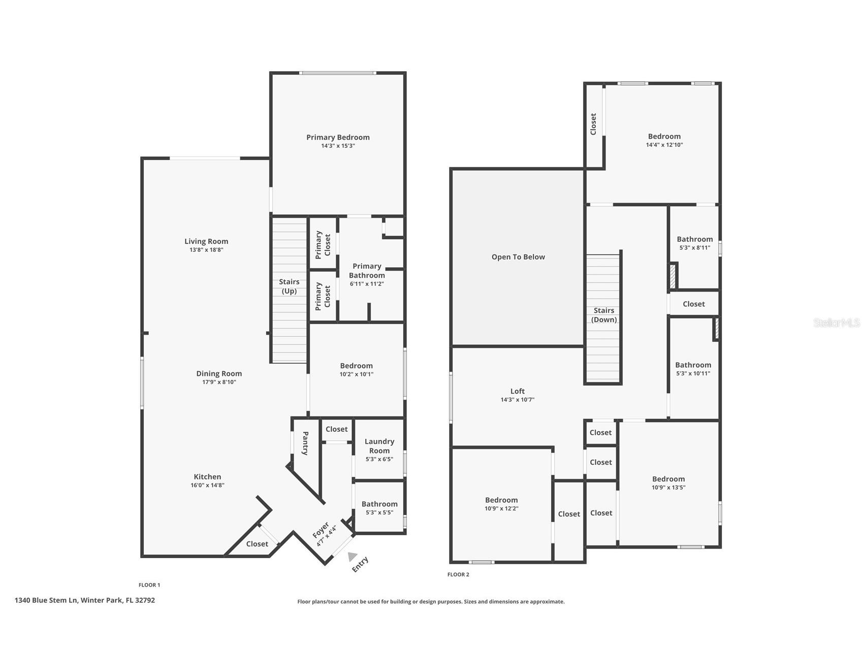
Room Information
Main Floor
Bathroom 2: 5x5
Kitchen: 15x16
Dining Room: 9x18
Living Room: 19x14
Primary Bedroom: 15x14
Primary Bathroom: 11x7
Upper Floor
Bathroom 3: 11x5
Bedroom 3: 13x11
Bedroom 4: 12x11
Bedroom 2: 12x14
Bathrooms
Full Baths: 3
1/2 Baths: 1
Additonal Room Information
Laundry: Laundry Room
Interior Features
Appliances: Dishwasher, Range
Flooring: Carpet,Luxury Vinyl
Doors/Windows: Window Treatments, ENERGY STAR Qualified Windows
Additional Interior Features: Split Bedrooms, Loft, Walk-In Closet(s), Eat-In Kitchen, Main Level Primary, Open Floorplan, Solid Surface Counters, Kitchen/Family Room Combo, High Ceilings, Living/Dining Room, Cathedral Ceiling(s)
Utilities
Water: Public
Sewer: Public Sewer
Other Utilities: Cable Available,Cable Connected,Electricity Available,Electricity Connected,High Speed Internet Available,Municipal Utilities,Phone Available,Sewer Available,Water Connected
Cooling: Central Air
Heating: Heat Pump
Exterior / Lot Features
Attached Garage: Attached Garage
Garage Spaces: 2
Roof: Tile
Pool: Community, Association
Lot View: Pond,Water
Additional Exterior/Lot Features: Sprinkler/Irrigation
Community Features
Community Features: Pool, Playground, Clubhouse, Street Lights, Gated, Fitness
Security Features: Gated Community, Gated with Guard
Association Amenities: Fitness Center, Playground, Pool, Gated
HOA Dues Include: Security
Homeowners Association: Yes
HOA Dues: $235 / Monthly
Driving Directions
From I-4 Eastbound: Take Exit 90A for FL-414 E/Maitland Blvd toward Maitland. Merge onto FL-414 E/Maitland Blvd. Continue on Maitland Blvd: Use the right 2 lanes to take the ramp to US-17 S/US-92 S/Orlando Ave. Merge onto US-17 S/US-92 S/Orlando Ave. Proceed on Orlando Ave: Continue straight for approximately 2.5 miles. Turn left onto Horatio Ave. Continue on Horatio Ave: Drive for about 1.2 miles. Turn right onto Seminole Ave. Enter the Hawk's Crest Community. You will need your driver's license at the gate.: Follow Seminole Ave to the Hawk's Crest gated entrance. After entering, proceed to Blue Stem Lane.
Financial Considerations
Terms: Cash,Conventional,VA Loan
Tax/Property ID: 27-21-30-513-0000-3200
Tax Amount: 6594.09
Tax Year: 2025
A broker reciprocity listing courtesy: MAINFRAME REAL ESTATE
Based on information provided by Stellar MLS as distributed by the MLS GRID. Information from the Internet Data Exchange is provided exclusively for consumers’ personal, non-commercial use, and such information may not be used for any purpose other than to identify prospective properties consumers may be interested in purchasing. This data is deemed reliable but is not guaranteed to be accurate by Edina Realty, Inc., or by the MLS. Edina Realty, Inc., is not a multiple listing service (MLS), nor does it offer MLS access.
Copyright 2026 Stellar MLS as distributed by the MLS GRID. All Rights Reserved.
Payment Calculator
Interest rate and annual percentage rate (APR) are based on current market conditions, are for informational purposes only, are subject to change without notice and may be subject to pricing add-ons related to property type, loan amount, loan-to-value, credit score and other variables. Estimated closing costs used in the APR calculation are assumed to be paid by the borrower at closing. If the closing costs are financed, the loan, APR and payment amounts will be higher. If the down payment is less than 20%, mortgage insurance may be required and could increase the monthly payment and APR. Contact us for details. Additional loan programs may be available. Accuracy is not guaranteed, and all products may not be available in all borrower's geographical areas and are based on their individual situation. This is not a credit decision or a commitment to lend.
Sales History & Tax Summary for 1340 Blue Stem Lane
Sales History
| Date | Price | |
|---|---|---|
| Currently not available. | ||
Tax Summary
| Tax Year | Estimated Market Value | Total Tax |
|---|---|---|
| Currently not available. | ||
Data powered by ATTOM Data Solutions. Copyright© 2026. Information deemed reliable but not guaranteed.
Schools
Schools nearby 1340 Blue Stem Lane
| Schools in attendance boundaries | Grades | Distance | Rating |
|---|---|---|---|
| Loading... | |||
| Schools nearby | Grades | Distance | Rating |
|---|---|---|---|
| Loading... | |||
Data powered by ATTOM Data Solutions. Copyright© 2026. Information deemed reliable but not guaranteed.
The schools shown represent both the assigned schools and schools by distance based on local school and district attendance boundaries. Attendance boundaries change based on various factors and proximity does not guarantee enrollment eligibility. Please consult your real estate agent and/or the school district to confirm the schools this property is zoned to attend. Information is deemed reliable but not guaranteed.
SchoolDigger ® Rating
The SchoolDigger rating system is a 1-5 scale with 5 as the highest rating. SchoolDigger ranks schools based on test scores supplied by each state's Department of Education. They calculate an average standard score by normalizing and averaging each school's test scores across all tests and grades.
Coming soon properties will soon be on the market, but are not yet available for showings.