$239,900
13426 Palm Drive Astatula, FL 34705
For Sale MLS# G5105763
2 beds 2 baths 1,080 sq ft Single Family
Details for 13426 Palm Drive
MLS# G5105763
Description for 13426 Palm Drive, Astatula, FL, 34705
"No HOA, no restrictions - you own the land! This one-of-a-kind canal property offers access to the Chain of Lakes, leading to Little Lake Harris. Featuring 2 primary bedrooms, this home has been freshly upgraded to showcase its best self. Solid floors, good bones, and structurally sound - it's a gem. Imagine hosting friends for fishing trips or leisurely boat rides. The Chain of Lakes is the ultimate draw, opening up endless possibilities. With marinas and charming towns like Tavares, Leesburg, and Mount Dora nearby, you'll be living the lake life! Call now to schedule a showing!"
Listing Information
Property Type: Residential, Manufactured Home
Status: Active
Bedrooms: 2
Bathrooms: 2
Lot Size: 0.10 Acres
Square Feet: 1,080 sq ft
Year Built: 1988
Stories: 1 Story
Construction: Metal Siding,Wood Frame
Construction Display: New Construction
Subdivision: East Lake Harris Estates
Foundation: Crawlspace
County: Lake
Construction Status: New Construction
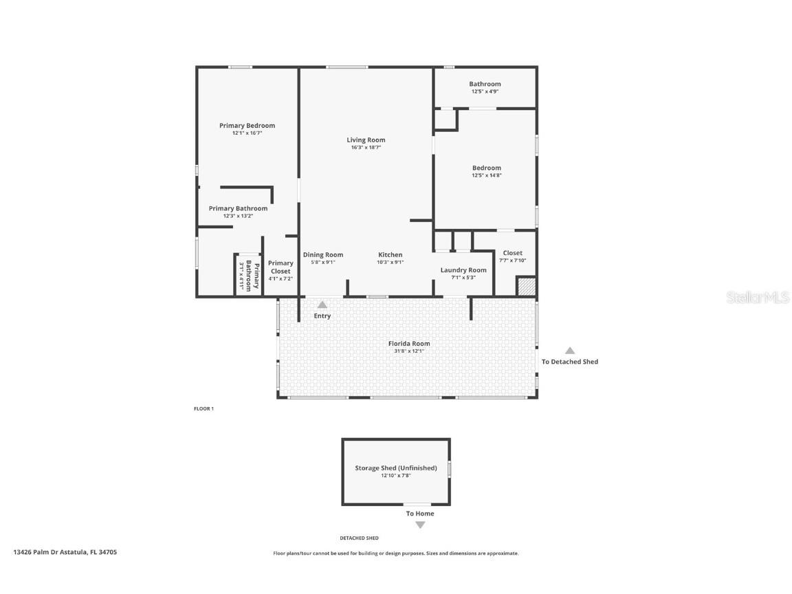
Room Information
Main Floor
Florida Room: 10x22
Living Room: 18x15
Laundry: 6x8
Dining Room: 10x10
Kitchen: 8x12
Bathroom 2: 15x12
Bedroom 2: 14x12
Primary Bathroom: 12x12
Primary Bedroom: 15x12
Bathrooms
Full Baths: 2
Additonal Room Information
Laundry: Inside
Interior Features
Appliances: Ice Maker, Electric Water Heater, Range, Refrigerator, Washer, Microwave, Dishwasher, Disposal, Dryer
Flooring: Luxury Vinyl
Basement: Crawl Space
Doors/Windows: Rods, Window Treatments
Additional Interior Features: Ceiling Fan(s), Window Treatments, Walk-In Closet(s), Eat-In Kitchen, Built-in Features, Main Level Primary, Crown Molding, Wood Cabinets
Utilities
Water: Public
Sewer: Public Sewer
Other Utilities: Electricity Connected,Municipal Utilities,Sewer Connected
Cooling: Ceiling Fan(s), Central Air
Heating: Heat Pump, Central
Exterior / Lot Features
Roof: Metal
Lot View: Canal,Water
Additional Exterior/Lot Features: Private Yard, Private Entrance, Sprinkler/Irrigation, Awning(s), Screened, Side Porch, Private, Outside City Limits
Out Buildings: Boat House, Shed(s)
Waterfront Details
Boat Facilities: Boat Facilities
Water Front Features: Canal Access, Lake
Driving Directions
From US 19 Make a slight left turn onto 561. Keep going until you reach Pal Dr. Make a right on Paml Dr. the house in on your left
Financial Considerations
Terms: Conventional
Tax/Property ID: 20-20-26-1900-00A-00400
Tax Amount: 1736
Tax Year: 2025
A broker reciprocity listing courtesy: OLYMPUS EXECUTIVE REALTY INC
Based on information provided by Stellar MLS as distributed by the MLS GRID. Information from the Internet Data Exchange is provided exclusively for consumers’ personal, non-commercial use, and such information may not be used for any purpose other than to identify prospective properties consumers may be interested in purchasing. This data is deemed reliable but is not guaranteed to be accurate by Edina Realty, Inc., or by the MLS. Edina Realty, Inc., is not a multiple listing service (MLS), nor does it offer MLS access.
Copyright 2025 Stellar MLS as distributed by the MLS GRID. All Rights Reserved.
Payment Calculator
Interest rate and annual percentage rate (APR) are based on current market conditions, are for informational purposes only, are subject to change without notice and may be subject to pricing add-ons related to property type, loan amount, loan-to-value, credit score and other variables. Estimated closing costs used in the APR calculation are assumed to be paid by the borrower at closing. If the closing costs are financed, the loan, APR and payment amounts will be higher. If the down payment is less than 20%, mortgage insurance may be required and could increase the monthly payment and APR. Contact us for details. Additional loan programs may be available. Accuracy is not guaranteed, and all products may not be available in all borrower's geographical areas and are based on their individual situation. This is not a credit decision or a commitment to lend.
Sales History & Tax Summary for 13426 Palm Drive
Sales History
| Date | Price | Change |
|---|---|---|
| Currently not available. | ||
Tax Summary
| Tax Year | Estimated Market Value | Total Tax |
|---|---|---|
| Currently not available. | ||
Data powered by ATTOM Data Solutions. Copyright© 2025. Information deemed reliable but not guaranteed.
Schools
Schools nearby 13426 Palm Drive
| Schools in attendance boundaries | Grades | Distance | Rating |
|---|---|---|---|
| Loading... | |||
| Schools nearby | Grades | Distance | Rating |
|---|---|---|---|
| Loading... | |||
Data powered by ATTOM Data Solutions. Copyright© 2025. Information deemed reliable but not guaranteed.
The schools shown represent both the assigned schools and schools by distance based on local school and district attendance boundaries. Attendance boundaries change based on various factors and proximity does not guarantee enrollment eligibility. Please consult your real estate agent and/or the school district to confirm the schools this property is zoned to attend. Information is deemed reliable but not guaranteed.
SchoolDigger ® Rating
The SchoolDigger rating system is a 1-5 scale with 5 as the highest rating. SchoolDigger ranks schools based on test scores supplied by each state's Department of Education. They calculate an average standard score by normalizing and averaging each school's test scores across all tests and grades.
Coming soon properties will soon be on the market, but are not yet available for showings.