1345 Mediterranean Drive #A105 Punta Gorda, FL 33950 - SALMON INLET CANAL
For Sale MLS# C7519963
2 beds 2 baths 1,164 sq ft Condo
Details for 1345 Mediterranean Drive #A105
MLS# C7519963
Description for 1345 Mediterranean Drive #A105, Punta Gorda, FL, 33950 - SALMON INLET CANAL
Stunning Waterfront First Floor 2-Bedroom Condo in Punta Gorda Isles– Beautifully Renovated, Furnished & Move-In Ready! Fall in love the moment you walk through the door of this beautifully renovated 2-bedroom, 2-bath canal-front condo. With breathtaking, direct canal views, boat dock access exclusively for owners use and easy open water access, this is the perfect coastal retreat you've been dreaming of. Inside, you’ll find a tastefully decorated bright interior, featuring a modern kitchen with quartz countertops, new cabinetry, upgraded lighting, and ceiling fans throughout. Both bathrooms have been thoughtfully renovated with a stylish, coastal touch. The spacious living room opens to a large lanai through triple sliding hurricane-impact glass doors—ideal for enjoying your morning coffee, evening cocktails, and soaking in the colorful sunsets while watching the fish jump right outside your door. The primary suite is a true haven, offering serene water views, a generous walk-in closet plus an additional built-in closet, double sliding glass door with access to lanai, and a beautifully updated en suite with a linen closet. The second bedroom is equally inviting, with its own renovated bath—perfect for guests or family. This bright and airy corner end unit is filled with natural light and enhanced by thoughtful details like a custom built-in buffet in the dining area with quartz countertops—great for entertaining or extra storage. Equipped with hurricane-impact windows and sliders for peace of mind, 2023 Sloped Durotech Roof provides discounts to your insurance, and an in-unit stackable washer & dryer offering added convenience, this condo is the perfect blend of comfort, style, and function. This is truly a must-see. Your waterfront paradise awaits. There’s nothing left to do but move in and start living the dream! BATVAI. List agent is owner.
Listing Information
Property Type: Residential, Condominium
Status: Active
Bedrooms: 2
Bathrooms: 2
Lot Size: 0.03 Acres
Square Feet: 1,164 sq ft
Year Built: 1974
Stories: 1 Story
Construction: Block,Stucco
Subdivision: Driftwood Bldg A
Foundation: Slab
County: Charlotte
School Information
Elementary: Sallie Jones Elementary
Middle: Punta Gorda Middle
High: Charlotte High
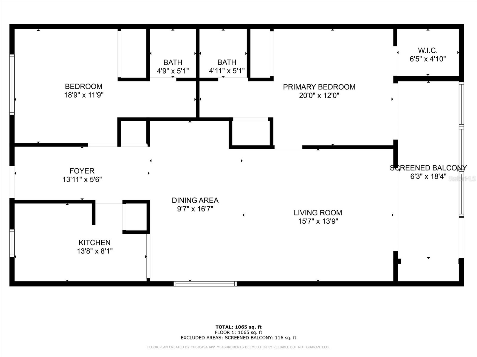
Room Information
Main Floor
Porch: 6x19
Kitchen: 8x14
Dining Room: 8x17
Living Room: 14x17
Bathroom 2: 8x9
Bedroom 2: 11x12
Primary Bathroom: 8x9
Primary Bedroom: 12x13
Bathrooms
Full Baths: 2
Additonal Room Information
Laundry: In Kitchen, Inside
Interior Features
Appliances: Electric Water Heater, Washer, Microwave, Range, Refrigerator, Dishwasher, Dryer
Flooring: Ceramic Tile,Tile
Doors/Windows: Window Treatments
Additional Interior Features: Ceiling Fan(s), Window Treatments, Walk-In Closet(s), Living/Dining Room, Stone Counters, Main Level Primary
Utilities
Water: Public
Sewer: Public Sewer
Other Utilities: Cable Connected,Electricity Connected,High Speed Internet Available,Phone Available,Sewer Connected,Water Connected
Cooling: Ceiling Fan(s), Central Air
Heating: Central, Electric
Exterior / Lot Features
Parking Description: Guest
Roof: Other
Pool: Gunite, Community, In Ground, Heated
Lot View: Canal,Pool,Water
Additional Exterior/Lot Features: Sprinkler/Irrigation, Outdoor Grill, Outdoor Shower, Screened
Waterfront Details
Standard Water Body: SALMON INLET CANAL
Water Front Features: Bay Access, Canal Access, Gulf Access
Community Features
Community Features: Pool, Waterfront, Dock, Community Mailbox
HOA Dues Include: Trash, Water, Sewer, Association Management, Insurance, Maintenance Grounds, Maintenance Structure, Pool(s), Reserve Fund
Homeowners Association: Yes
HOA Dues: $550 / Monthly
Driving Directions
Located in Punta Gorda Isles Development. Magdalina Terrace to Via Tripoli, left on Mediterranean Dr to 1345 Mediterranean on the left. First Floor Corner Unit to the left of the pool.
Financial Considerations
Terms: Cash
Tax/Property ID: 412213629015
Tax Amount: 4197
Tax Year: 2024
A broker reciprocity listing courtesy: COLDWELL BANKER SUNSTAR REALTY
Based on information provided by Stellar MLS as distributed by the MLS GRID. Information from the Internet Data Exchange is provided exclusively for consumers’ personal, non-commercial use, and such information may not be used for any purpose other than to identify prospective properties consumers may be interested in purchasing. This data is deemed reliable but is not guaranteed to be accurate by Edina Realty, Inc., or by the MLS. Edina Realty, Inc., is not a multiple listing service (MLS), nor does it offer MLS access.
Copyright 2026 Stellar MLS as distributed by the MLS GRID. All Rights Reserved.
Payment Calculator
Interest rate and annual percentage rate (APR) are based on current market conditions, are for informational purposes only, are subject to change without notice and may be subject to pricing add-ons related to property type, loan amount, loan-to-value, credit score and other variables. Estimated closing costs used in the APR calculation are assumed to be paid by the borrower at closing. If the closing costs are financed, the loan, APR and payment amounts will be higher. If the down payment is less than 20%, mortgage insurance may be required and could increase the monthly payment and APR. Contact us for details. Additional loan programs may be available. Accuracy is not guaranteed, and all products may not be available in all borrower's geographical areas and are based on their individual situation. This is not a credit decision or a commitment to lend.
Sales History & Tax Summary for 1345 Mediterranean Drive #A105
Sales History
| Date | Price | |
|---|---|---|
| Currently not available. | ||
Tax Summary
| Tax Year | Estimated Market Value | Total Tax |
|---|---|---|
| Currently not available. | ||
Data powered by ATTOM Data Solutions. Copyright© 2026. Information deemed reliable but not guaranteed.
Schools
Schools nearby 1345 Mediterranean Drive #A105
| Schools in attendance boundaries | Grades | Distance | Rating |
|---|---|---|---|
| Loading... | |||
| Schools nearby | Grades | Distance | Rating |
|---|---|---|---|
| Loading... | |||
Data powered by ATTOM Data Solutions. Copyright© 2026. Information deemed reliable but not guaranteed.
The schools shown represent both the assigned schools and schools by distance based on local school and district attendance boundaries. Attendance boundaries change based on various factors and proximity does not guarantee enrollment eligibility. Please consult your real estate agent and/or the school district to confirm the schools this property is zoned to attend. Information is deemed reliable but not guaranteed.
SchoolDigger ® Rating
The SchoolDigger rating system is a 1-5 scale with 5 as the highest rating. SchoolDigger ranks schools based on test scores supplied by each state's Department of Education. They calculate an average standard score by normalizing and averaging each school's test scores across all tests and grades.
Coming soon properties will soon be on the market, but are not yet available for showings.