13450 Leaping Water Way Astatula, FL 34705
For Sale MLS# TB8364488
3 beds 3 baths 1,505 sq ft Single Family
Details for 13450 Leaping Water Way
MLS# TB8364488
Description for 13450 Leaping Water Way, Astatula, FL, 34705
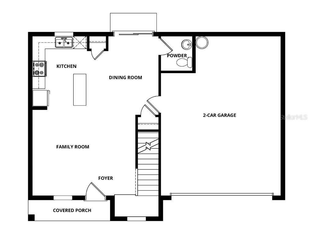
Welcome to the Benton model in the beautiful brand-new Tula Parc community of Astatula! This stunning two-story home offers 3 bedrooms, 2.5 bathrooms, and a spacious, open-concept design perfect for modern living. The first level is designed for entertaining, featuring a chef-inspired kitchen with granite countertops, brand-new Whirlpool® appliances, and a spacious family room that flows seamlessly for gatherings. A formal dining room, set apart from the main living area, provides the perfect space for hosting meals and special occasions. Upstairs, you’ll find all three generously sized bedrooms, including a private master retreat with a large walk-in closet and an expansive en-suite bathroom. The master bath offers ample vanity space and a wide layout, making mornings effortless. Outside, enjoy the mature landscaping in the front yard and the convenience of a spacious garage. Living in Tula Parc means access to wonderful community amenities like a gazebo and playground, plus proximity to Little Lake Harris, where you can enjoy boating, fishing, and kayaking. With parks, nature reserves, golf courses, and Orlando’s top attractions just a short drive away, this home truly offers the best of Florida living. Don’t miss the chance to make this stunning Benton model yours—schedule a showing today!
Listing Information
Property Type: Residential, Single Family Residence
Status: Active
Bedrooms: 3
Bathrooms: 3
Lot Size: 0.11 Acres
Square Feet: 1,505 sq ft
Year Built: 2025
Garage: Yes
Stories: 2 Story
Construction: Block,Stucco
Construction Display: New Construction
Subdivision: Tula Parc
Builder: LGI Homes Florida LLC
Foundation: Slab
County: Lake
Construction Status: New Construction
School Information
Elementary: Astatula Elem
Middle: Tavares Middle
High: Tavares High
Room Information
Main Floor
Living Room: 14x16
Dining Room: 13x8
Kitchen: 13x12
Upper Floor
Laundry: 8x7
Bedroom 3: 11x13
Bathroom 2: 5x8
Bedroom 2: 13x12
Primary Bathroom: 10x5
Primary Bedroom: 15x12
Bathrooms
Full Baths: 2
1/2 Baths: 1
Additonal Room Information
Laundry: Electric Dryer Hookup, Upper Level, Laundry Room, Inside, Washer Hookup
Interior Features
Appliances: Electric Water Heater, Range, Refrigerator, Dishwasher, Disposal, Microwave, Ice Maker, Exhaust Fan
Flooring: Carpet,Luxury Vinyl
Doors/Windows: Low-Emissivity Windows, Window Treatments, ENERGY STAR Qualified Windows, Blinds, Double Pane Windows
Additional Interior Features: Ceiling Fan(s), Walk-In Closet(s), Window Treatments, Upper Level Primary, Living/Dining Room, Kitchen/Family Room Combo, Stone Counters, Open Floorplan
Utilities
Water: Public
Sewer: Public Sewer
Other Utilities: Cable Available,Electricity Available,Electricity Connected,Fiber Optic Available,Municipal Utilities,Phone Available,Sewer Available,Underground Utilities,Water Available,Water Connected
Cooling: Ceiling Fan(s), Central Air
Heating: Heat Pump, Electric
Exterior / Lot Features
Attached Garage: Attached Garage
Garage Spaces: 2
Parking Description: Garage, Garage Door Opener, driveway
Roof: Shingle
Additional Exterior/Lot Features: Sprinkler/Irrigation, Lighting, Covered, Patio, Rear Porch, Front Porch, Landscaped
Community Features
Community Features: Playground, Sidewalks, Street Lights, Golf Carts OK, Community Mailbox
Security Features: Smoke Detector(s)
Association Amenities: Playground
HOA Dues Include: Internet
Homeowners Association: Yes
HOA Dues: $95 / Monthly
Driving Directions
Take 408 W to Turnpike N and then take 278 Exit Turn Right onto County Road 561 to Georgia Avenue Turn Left on Georgia Avenue to Adams Street Turn Right on Adams Street and then Turn Right on Tula Loop
Financial Considerations
Terms: Cash,Conventional,FHA,USDA Loan,VA Loan
Tax/Property ID: 29-20-26-0200-000-01800
Tax Amount: 343.39
Tax Year: 2023
A broker reciprocity listing courtesy: LGI REALTY- FLORIDA, LLC
Based on information provided by Stellar MLS as distributed by the MLS GRID. Information from the Internet Data Exchange is provided exclusively for consumers’ personal, non-commercial use, and such information may not be used for any purpose other than to identify prospective properties consumers may be interested in purchasing. This data is deemed reliable but is not guaranteed to be accurate by Edina Realty, Inc., or by the MLS. Edina Realty, Inc., is not a multiple listing service (MLS), nor does it offer MLS access.
Copyright 2026 Stellar MLS as distributed by the MLS GRID. All Rights Reserved.
Payment Calculator
Interest rate and annual percentage rate (APR) are based on current market conditions, are for informational purposes only, are subject to change without notice and may be subject to pricing add-ons related to property type, loan amount, loan-to-value, credit score and other variables. Estimated closing costs used in the APR calculation are assumed to be paid by the borrower at closing. If the closing costs are financed, the loan, APR and payment amounts will be higher. If the down payment is less than 20%, mortgage insurance may be required and could increase the monthly payment and APR. Contact us for details. Additional loan programs may be available. Accuracy is not guaranteed, and all products may not be available in all borrower's geographical areas and are based on their individual situation. This is not a credit decision or a commitment to lend.
Sales History & Tax Summary for 13450 Leaping Water Way
Sales History
| Date | Price | |
|---|---|---|
| Currently not available. | ||
Tax Summary
| Tax Year | Estimated Market Value | Total Tax |
|---|---|---|
| Currently not available. | ||
Data powered by ATTOM Data Solutions. Copyright© 2026. Information deemed reliable but not guaranteed.
Schools
Schools nearby 13450 Leaping Water Way
| Schools in attendance boundaries | Grades | Distance | Rating |
|---|---|---|---|
| Loading... | |||
| Schools nearby | Grades | Distance | Rating |
|---|---|---|---|
| Loading... | |||
Data powered by ATTOM Data Solutions. Copyright© 2026. Information deemed reliable but not guaranteed.
The schools shown represent both the assigned schools and schools by distance based on local school and district attendance boundaries. Attendance boundaries change based on various factors and proximity does not guarantee enrollment eligibility. Please consult your real estate agent and/or the school district to confirm the schools this property is zoned to attend. Information is deemed reliable but not guaranteed.
SchoolDigger ® Rating
The SchoolDigger rating system is a 1-5 scale with 5 as the highest rating. SchoolDigger ranks schools based on test scores supplied by each state's Department of Education. They calculate an average standard score by normalizing and averaging each school's test scores across all tests and grades.
Coming soon properties will soon be on the market, but are not yet available for showings.