13462 Leaping Water Way Astatula, FL 34705
For Sale MLS# TB8329450
4 beds 3 baths 2,059 sq ft Single Family
Details for 13462 Leaping Water Way
MLS# TB8329450
Description for 13462 Leaping Water Way, Astatula, FL, 34705
Reduced Pricing! Stunning 4-Bedroom Parc Floor Plan in Tula Parc – Style, Space & Upgrades Included! Welcome to the Parc model, a beautifully crafted 4-bedroom, 2.5-bathroom two-story home located in the desirable Tula Parc community. From the moment you arrive, the lush, professionally landscaped front yard and covered entryway invite you into a thoughtfully designed home filled with comfort, style, and incredible included upgrades. Step inside to discover a spacious open layout, highlighted by a large family room that flows seamlessly into the chef-ready kitchen. The kitchen is equipped with energy-efficient Whirlpool stainless steel appliances, beautiful granite countertops, 36-inch upper wood cabinets with crown molding, Moen faucets, and LED flush-mount Energy Star lighting. A Wi-Fi-enabled garage door opener and programmable thermostats provide convenience and modern efficiency. Each of the four spacious bedrooms features its own walk-in closet, offering plenty of storage for the whole family. The secluded master suite is a true retreat, featuring a luxurious en-suite bath and a massive walk-in closet designed for privacy and relaxation. A powder room on the main floor adds functionality for guests, while the entire home showcases high-end finishes and an attention to detail throughout. Additional upgrades include double-pane low-E vinyl windows, designer coach lighting, and more—all included at no extra cost. This home is designed to support your lifestyle for years to come, blending elegance and efficiency in every corner. Located in the peaceful and family-friendly Tula Parc community, residents enjoy proximity to Little Lake Harris, offering easy access to outdoor recreation such as boating, fishing, and kayaking. The neighborhood is conveniently close to local schools, parks, and shopping, while still offering the serenity of a quiet, suburban setting. Don’t miss your chance to own this upgraded, move-in-ready home in one of the area’s most desirable communities—schedule your private tour of the Parc model today!
Listing Information
Property Type: Residential, Single Family Residence
Status: Active
Bedrooms: 4
Bathrooms: 3
Lot Size: 0.11 Acres
Square Feet: 2,059 sq ft
Year Built: 2025
Garage: Yes
Stories: 2 Story
Construction: Block,Stucco
Construction Display: New Construction
Subdivision: Tula Parc
Builder: LGI Homes Florida LLC
Foundation: Slab
County: Lake
Construction Status: New Construction
School Information
Elementary: Astatula Elem
Middle: Tavares Middle
High: Tavares High
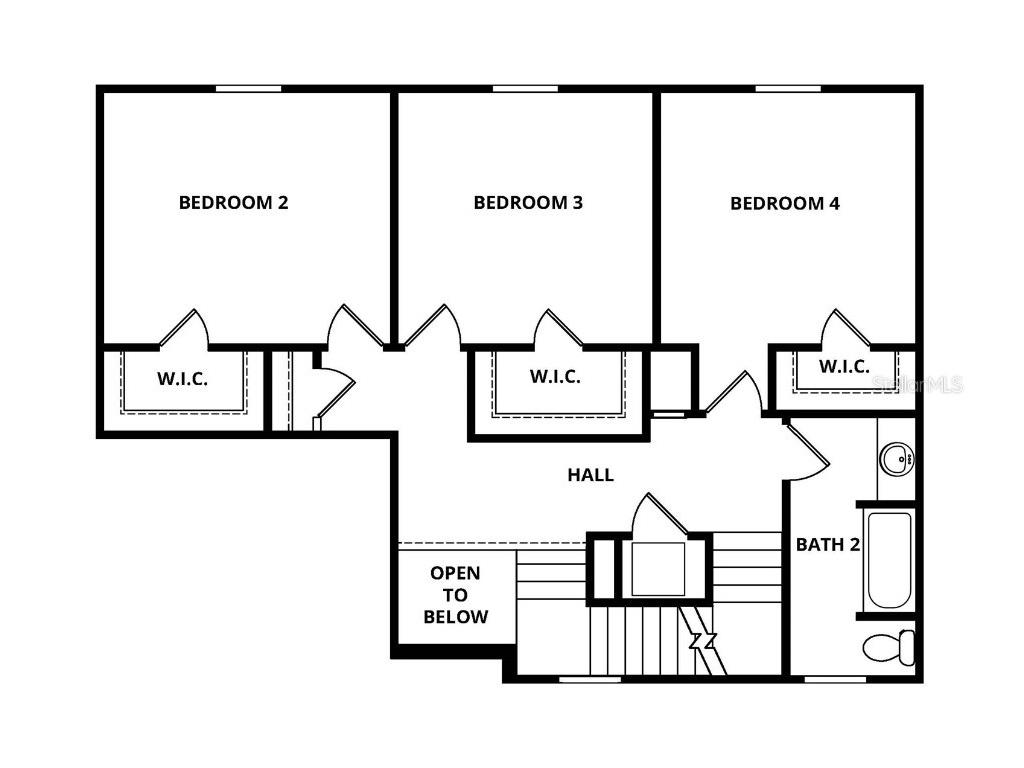
Room Information
Main Floor
Bathroom 3: 6x5
Kitchen: 11x12
Primary Bathroom: 11x10
Primary Bedroom: 14x13
Living Room: 15x18
Dining Room: 10x10
Upper Floor
Bedroom 4: 10x10
Bedroom 3: 12x12
Bathroom 2: 12x6
Bedroom 2: 12x14
Bathrooms
Full Baths: 2
1/2 Baths: 1
Additonal Room Information
Laundry: Laundry Room, Washer Hookup, Electric Dryer Hookup, In Kitchen, Inside
Interior Features
Appliances: Electric Water Heater, Range, Refrigerator, Dishwasher, Disposal, Microwave, Ice Maker, Exhaust Fan
Flooring: Carpet,Luxury Vinyl
Doors/Windows: Low-Emissivity Windows, Double Pane Windows, Blinds, Window Treatments, ENERGY STAR Qualified Windows
Additional Interior Features: Ceiling Fan(s), Walk-In Closet(s), Window Treatments, Kitchen/Family Room Combo, Stone Counters, Main Level Primary, Open Floorplan
Utilities
Water: Public
Sewer: Public Sewer
Other Utilities: Cable Available,Electricity Available,Electricity Connected,Fiber Optic Available,Municipal Utilities,Phone Available,Underground Utilities,Water Available,Water Connected
Cooling: Ceiling Fan(s), Central Air
Heating: Heat Pump, Electric
Exterior / Lot Features
Attached Garage: Attached Garage
Garage Spaces: 2
Parking Description: Garage, Garage Door Opener, driveway
Roof: Shingle
Additional Exterior/Lot Features: Sprinkler/Irrigation, Lighting, Covered, Patio, Rear Porch, Front Porch, Landscaped
Community Features
Community Features: Playground, Sidewalks, Street Lights, Golf Carts OK, Community Mailbox
Security Features: Smoke Detector(s)
Association Amenities: Playground
HOA Dues Include: Internet
Homeowners Association: Yes
HOA Dues: $95 / Monthly
Driving Directions
Take 408 W to Turnpike N and then take 278 Exit Turn Right onto County Road 561 to Georgia Avenue Turn Left on Georgia Avenue to Adams Street Turn Right on Adams Street and then Turn Right on Tula Loop
Financial Considerations
Terms: Cash,Conventional,FHA,VA Loan
Tax/Property ID: 29-20-26-0200-000-01500
Tax Amount: 343.39
Tax Year: 2023
A broker reciprocity listing courtesy: LGI REALTY- FLORIDA, LLC
Based on information provided by Stellar MLS as distributed by the MLS GRID. Information from the Internet Data Exchange is provided exclusively for consumers’ personal, non-commercial use, and such information may not be used for any purpose other than to identify prospective properties consumers may be interested in purchasing. This data is deemed reliable but is not guaranteed to be accurate by Edina Realty, Inc., or by the MLS. Edina Realty, Inc., is not a multiple listing service (MLS), nor does it offer MLS access.
Copyright 2026 Stellar MLS as distributed by the MLS GRID. All Rights Reserved.
Payment Calculator
Interest rate and annual percentage rate (APR) are based on current market conditions, are for informational purposes only, are subject to change without notice and may be subject to pricing add-ons related to property type, loan amount, loan-to-value, credit score and other variables. Estimated closing costs used in the APR calculation are assumed to be paid by the borrower at closing. If the closing costs are financed, the loan, APR and payment amounts will be higher. If the down payment is less than 20%, mortgage insurance may be required and could increase the monthly payment and APR. Contact us for details. Additional loan programs may be available. Accuracy is not guaranteed, and all products may not be available in all borrower's geographical areas and are based on their individual situation. This is not a credit decision or a commitment to lend.
Sales History & Tax Summary for 13462 Leaping Water Way
Sales History
| Date | Price | |
|---|---|---|
| Currently not available. | ||
Tax Summary
| Tax Year | Estimated Market Value | Total Tax |
|---|---|---|
| Currently not available. | ||
Data powered by ATTOM Data Solutions. Copyright© 2026. Information deemed reliable but not guaranteed.
Schools
Schools nearby 13462 Leaping Water Way
| Schools in attendance boundaries | Grades | Distance | Rating |
|---|---|---|---|
| Loading... | |||
| Schools nearby | Grades | Distance | Rating |
|---|---|---|---|
| Loading... | |||
Data powered by ATTOM Data Solutions. Copyright© 2026. Information deemed reliable but not guaranteed.
The schools shown represent both the assigned schools and schools by distance based on local school and district attendance boundaries. Attendance boundaries change based on various factors and proximity does not guarantee enrollment eligibility. Please consult your real estate agent and/or the school district to confirm the schools this property is zoned to attend. Information is deemed reliable but not guaranteed.
SchoolDigger ® Rating
The SchoolDigger rating system is a 1-5 scale with 5 as the highest rating. SchoolDigger ranks schools based on test scores supplied by each state's Department of Education. They calculate an average standard score by normalizing and averaging each school's test scores across all tests and grades.
Coming soon properties will soon be on the market, but are not yet available for showings.