1349 NW 109th Avenue Ocala, FL 34482
For Sale MLS# OM712072
4 beds 2 baths 1,904 sq ft Single Family
Details for 1349 NW 109th Avenue
MLS# OM712072
Description for 1349 NW 109th Avenue, Ocala, FL, 34482
Price Improvement! Brand-new manufactured home on 1 acre near WEC. This double wide manufactured home delivers 1,904 sq ft with 4 bedrooms and 2 baths in a bright open plan. The living and dining areas flow to a spacious island kitchen with shaker cabinetry, stainless steel appliances, vent hood, and tile backsplash. Sliding glass doors bring in natural light and connect to the backyard. Durable laminate flooring runs throughout. All bedrooms offer generous closets. The large primary suite includes a walk-in closet and a private bath. Exterior features low-maintenance siding with vinyl skirting and plenty of room to spread out. Rural residential setting with a convenient Ocala location near the World Equestrian Center, shopping, and services.
Listing Information
Property Type: Residential, Manufactured Home, Other
Status: Active
Bedrooms: 4
Bathrooms: 2
Lot Size: 1 Acres
Square Feet: 1,904 sq ft
Year Built: 2025
Stories: 1 Story
Construction: Vinyl Siding,Wood Frame
Construction Display: New Construction
Subdivision: Fellowship Acres
Foundation: Block,Crawlspace
County: Marion
Construction Status: New Construction
School Information
Elementary: Romeo Elementary School
Middle: Dunnellon Middle School
High: West Port High School
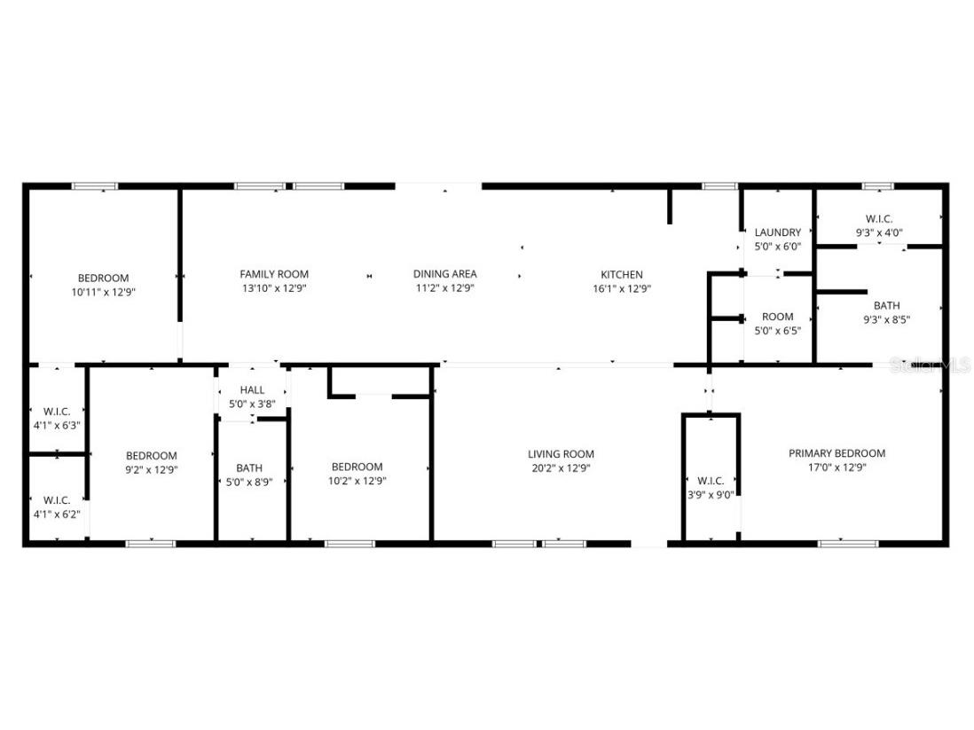
Room Information
Main Floor
Living Room: 14x14
Bedroom 3: 12x10
Dining Room: 10x12
Primary Bathroom: 12x10
Bedroom 1: 12x14
Kitchen: 10x12
Primary Bedroom: 14x14
Bathrooms
Full Baths: 2
Additonal Room Information
Laundry: Laundry Closet
Interior Features
Appliances: Electric Water Heater, Microwave, Range, Refrigerator
Flooring: Carpet,Laminate
Basement: Crawl Space
Additional Interior Features: Living/Dining Room
Utilities
Water: Well
Sewer: Septic Tank
Other Utilities: Cable Available,Electricity Connected,Water Available
Cooling: Central Air
Heating: Central
Exterior / Lot Features
Roof: Shingle
Lot Dimensions: 152x286
Additional Exterior/Lot Features: Other, Corner Lot
Driving Directions
WEST ON FL HWY 40, TURN RIGHT ON NW 110TH AVE, THEN RIGHT ON NW 14TH STREET THEN RIGHT ON NW 109TH AVE
Financial Considerations
Terms: Cash,Conventional,FHA,USDA Loan,VA Loan
Tax/Property ID: 2105-008-001
Tax Amount: 450.72
Tax Year: 2024
A broker reciprocity listing courtesy: GLOBALWIDE REALTY LLC
Based on information provided by Stellar MLS as distributed by the MLS GRID. Information from the Internet Data Exchange is provided exclusively for consumers’ personal, non-commercial use, and such information may not be used for any purpose other than to identify prospective properties consumers may be interested in purchasing. This data is deemed reliable but is not guaranteed to be accurate by Edina Realty, Inc., or by the MLS. Edina Realty, Inc., is not a multiple listing service (MLS), nor does it offer MLS access.
Copyright 2025 Stellar MLS as distributed by the MLS GRID. All Rights Reserved.
Payment Calculator
Interest rate and annual percentage rate (APR) are based on current market conditions, are for informational purposes only, are subject to change without notice and may be subject to pricing add-ons related to property type, loan amount, loan-to-value, credit score and other variables. Estimated closing costs used in the APR calculation are assumed to be paid by the borrower at closing. If the closing costs are financed, the loan, APR and payment amounts will be higher. If the down payment is less than 20%, mortgage insurance may be required and could increase the monthly payment and APR. Contact us for details. Additional loan programs may be available. Accuracy is not guaranteed, and all products may not be available in all borrower's geographical areas and are based on their individual situation. This is not a credit decision or a commitment to lend.
Sales History & Tax Summary for 1349 NW 109th Avenue
Sales History
| Date | Price | Change |
|---|---|---|
| Currently not available. | ||
Tax Summary
| Tax Year | Estimated Market Value | Total Tax |
|---|---|---|
| Currently not available. | ||
Data powered by ATTOM Data Solutions. Copyright© 2025. Information deemed reliable but not guaranteed.
Schools
Schools nearby 1349 NW 109th Avenue
| Schools in attendance boundaries | Grades | Distance | Rating |
|---|---|---|---|
| Loading... | |||
| Schools nearby | Grades | Distance | Rating |
|---|---|---|---|
| Loading... | |||
Data powered by ATTOM Data Solutions. Copyright© 2025. Information deemed reliable but not guaranteed.
The schools shown represent both the assigned schools and schools by distance based on local school and district attendance boundaries. Attendance boundaries change based on various factors and proximity does not guarantee enrollment eligibility. Please consult your real estate agent and/or the school district to confirm the schools this property is zoned to attend. Information is deemed reliable but not guaranteed.
SchoolDigger ® Rating
The SchoolDigger rating system is a 1-5 scale with 5 as the highest rating. SchoolDigger ranks schools based on test scores supplied by each state's Department of Education. They calculate an average standard score by normalizing and averaging each school's test scores across all tests and grades.
Coming soon properties will soon be on the market, but are not yet available for showings.