135 S Central Avenue Bartow, FL 33830
For Sale MLS# B4902104
3 beds 2 baths 5,880 sq ft Single Family
Details for 135 S Central Avenue
MLS# B4902104
Description for 135 S Central Avenue, Bartow, FL, 33830
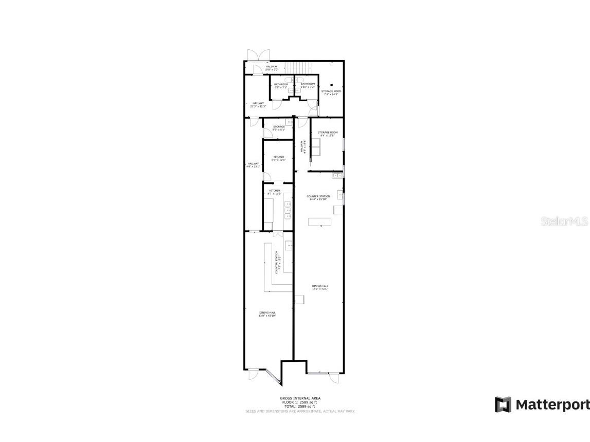
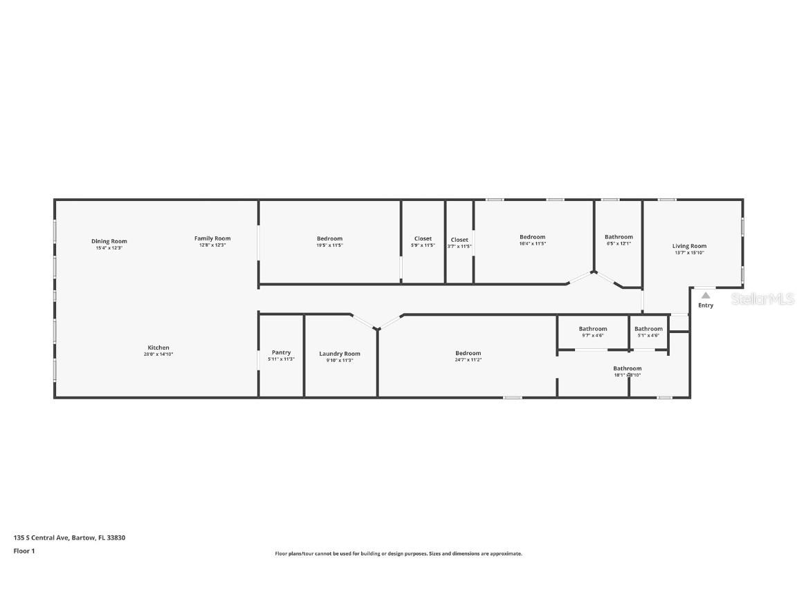
Located in the heart of historic downtown Bartow, 135 S Central Avenue presents a rare and valuable opportunity. This property is a single family home with multi-use. The second level of the building is a nearly 3,000 square foot 3 bedroom 2 bathroom homestead property and the first floor offers two street-level commercial units, each approximately 1,500 square feet, situated in a high-visibility area known for its walkability, charming boutiques, and steady foot and vehicle traffic. One of the units is occupied by “Sweet Magnolia’s,” a well-established café that has been a community favorite for over ten years. In addition to daily dining, Sweet Magnolia’s offers private parties, catering services, and maintains a strong presence and affiliation with downtown Bartow events and initiatives. The building is being sold turnkey, fully furnished with high-quality commercial kitchen and catering equipment, providing immediate operational capabilities for new ownership. The Second commercial space is occupied and the tenant has a two year lease that is effective November 1, 2025. Above the commercial spaces, the second floor has been transformed into a spacious and homesteaded residential unit featuring three bedrooms, two bathrooms, an open-concept kitchen and family room, and a generous primary suite. The owner is willing to include the furnishings within the home as well. Each with their own private entrances makes these ideal Income producing properties individually or collectively as well. Each of the three units—two commercial and one residential—has separate utility meters, HVAC systems, and private access, allowing for flexibility in leasing or personal use. The roof is approximately two years old, there is a dry wood termite bond in place on the building that is transferable, and designated parking for residents. Whether you're seeking to own and operate a business, expand your investment portfolio, or live in the upstairs residence while earning income from below, this property offers unmatched versatility and value in one of Bartow’s most desirable locations.
Listing Information
Property Type: Residential, Single Family Residence
Status: Active
Bedrooms: 3
Bathrooms: 2
Lot Size: 0.07 Acres
Square Feet: 5,880 sq ft
Year Built: 1913
Stories: 2 Story
Construction: Brick
Subdivision: Lytles Sub
Foundation: Slab
County: Polk
Room Information
Upper Floor
Family Room: 12x12
Bedroom 3: 16x11
Bedroom 2: 19x11
Living Room: 15x13
Kitchen: 28x14
Primary Bedroom: 24x11
Bathrooms
Full Baths: 2
Additonal Room Information
Laundry: Inside
Interior Features
Appliances: Washer, Dishwasher, Dryer, Microwave, Refrigerator
Flooring: Ceramic Tile,Wood
Additional Interior Features: Split Bedrooms, Eat-In Kitchen, Kitchen/Family Room Combo, Ceiling Fan(s), Open Floorplan, Stone Counters, Wood Cabinets, Built-in Features
Utilities
Sewer: Public Sewer
Other Utilities: Electricity Available,Water Not Available
Cooling: Ceiling Fan(s), Central Air
Heating: Central
Exterior / Lot Features
Roof: Membrane
Additional Exterior/Lot Features: Lighting
Community Features
Community Features: Sidewalks
Driving Directions
Hwy 98 To Broadway, Left on E Main Street, Right on S Central Avenue.
Financial Considerations
Terms: Cash,Conventional
Tax/Property ID: 25-30-05-384100-016014
Tax Amount: 8266
Tax Year: 2024
A broker reciprocity listing courtesy: CRAIG BURKE REAL ESTATE GROUP, LLC
Based on information provided by Stellar MLS as distributed by the MLS GRID. Information from the Internet Data Exchange is provided exclusively for consumers’ personal, non-commercial use, and such information may not be used for any purpose other than to identify prospective properties consumers may be interested in purchasing. This data is deemed reliable but is not guaranteed to be accurate by Edina Realty, Inc., or by the MLS. Edina Realty, Inc., is not a multiple listing service (MLS), nor does it offer MLS access.
Copyright 2025 Stellar MLS as distributed by the MLS GRID. All Rights Reserved.
Payment Calculator
Interest rate and annual percentage rate (APR) are based on current market conditions, are for informational purposes only, are subject to change without notice and may be subject to pricing add-ons related to property type, loan amount, loan-to-value, credit score and other variables. Estimated closing costs used in the APR calculation are assumed to be paid by the borrower at closing. If the closing costs are financed, the loan, APR and payment amounts will be higher. If the down payment is less than 20%, mortgage insurance may be required and could increase the monthly payment and APR. Contact us for details. Additional loan programs may be available. Accuracy is not guaranteed, and all products may not be available in all borrower's geographical areas and are based on their individual situation. This is not a credit decision or a commitment to lend.
Sales History & Tax Summary for 135 S Central Avenue
Sales History
| Date | Price | Change |
|---|---|---|
| Currently not available. | ||
Tax Summary
| Tax Year | Estimated Market Value | Total Tax |
|---|---|---|
| Currently not available. | ||
Data powered by ATTOM Data Solutions. Copyright© 2025. Information deemed reliable but not guaranteed.
Schools
Schools nearby 135 S Central Avenue
| Schools in attendance boundaries | Grades | Distance | Rating |
|---|---|---|---|
| Loading... | |||
| Schools nearby | Grades | Distance | Rating |
|---|---|---|---|
| Loading... | |||
Data powered by ATTOM Data Solutions. Copyright© 2025. Information deemed reliable but not guaranteed.
The schools shown represent both the assigned schools and schools by distance based on local school and district attendance boundaries. Attendance boundaries change based on various factors and proximity does not guarantee enrollment eligibility. Please consult your real estate agent and/or the school district to confirm the schools this property is zoned to attend. Information is deemed reliable but not guaranteed.
SchoolDigger ® Rating
The SchoolDigger rating system is a 1-5 scale with 5 as the highest rating. SchoolDigger ranks schools based on test scores supplied by each state's Department of Education. They calculate an average standard score by normalizing and averaging each school's test scores across all tests and grades.
Coming soon properties will soon be on the market, but are not yet available for showings.