$223,500
13512 Isabell Avenue Port Charlotte, FL 33981
For Sale MLS# D6145499
2 beds 2 baths 1,512 sq ft Single Family
Details for 13512 Isabell Avenue
MLS# D6145499
Description for 13512 Isabell Avenue, Port Charlotte, FL, 33981
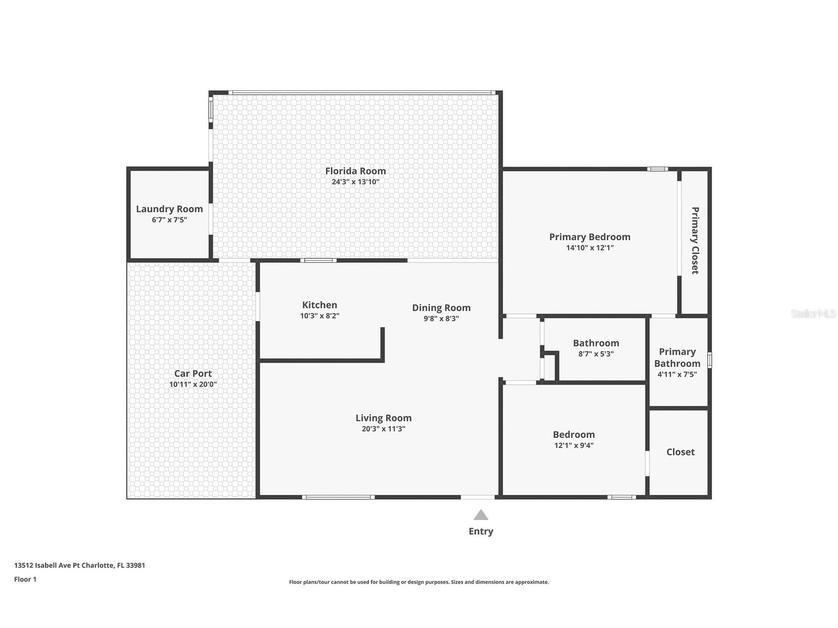
AMAZING DEAL in this COASTAL-INSPIRED 2-bedroom, 2-bathroom home in Gardens of Gulf Cove ~ ideal for seasonal living or downsizing! Smart investment features include IMPACT RESISTANT WINDOWS throughout, X FLOOD ZONE designation (may eliminate mandatory flood insurance requirements), NEW ROOF (2023), NEW Water Heater, NEW DRYER and an incredibly AFFORDABLE HOA: just $470/year! The interior features TWO living spaces including a SPRAWLING FLORIDA ROOM for year round use and showcases expansive windows from end to end with gorgeous PLANTATION SHUTTERS! Ceramic tile flooring is found throughout the main areas creating an easy-care polished look while the bedrooms feature laminate flooring ~ no carpet here! The SPACIOUS primary bedroom includes an ample-sized built in closet and a completely UPDATED EN-SUITE bathroom! The secondary bedroom offers a true WALK-IN CLOSET and a charming BOX BAY WINDOW with an adjacent guest bathroom that has been updated DESIGNER-STYLE as well! The BEACHY-VIBE kitchen showcases smooth tile countertops and abundant cabinetry in soft ocean blue hues, a NEW REFRIGERATOR and microwave, and an oversized open pass through space overlooking the Florida Room! Indoor laundry room for added convenience! The backyard oasis is private, partially fenced, a paver deck, storage shed and an existing PERGOLA ~ ready for entertaining and relaxing! COMMUNITY AMENITIES include two SWIMMING POOLS (one heated), a recreation/fitness center, tennis court (pickelball-ready), shuffleboard, basketball, indoor game room with pool tables, air hockey, card tables and more ~ resort style living with UNDERGROUND UTILITIES, city water/sewer and pedestrian friendly sidewalks. This UNBEATABLE LOCATION is situated between Port Charlotte and Englewood ~ minutes from PRISTINE GULF BEACHES to soak up the sun and surf and enjoy our breathtaking cotton candy SUNSETS ~ multiple boat ramps, fishing piers and golf courses nearby as well! In addition, there are a multitude of restaurants, grocery, farmer's markets and shopping including Dearborn Street and Downtown Punta Gorda where you can enjoy cultural events, live entertainment and fine dining! Close proximity to local and regional airports! Small town feel but if you need a dose of big city life, Sarasota and Ft Myers are a 45 min drive in either direction! What are you waiting for? Come and enjoy the Florida lifestyle today!
Listing Information
Property Type: Residential, Single Family Residence
Status: Active
Bedrooms: 2
Bathrooms: 2
Lot Size: 0.17 Acres
Square Feet: 1,512 sq ft
Year Built: 1975
Stories: 1 Story
Construction: Stucco,Wood Frame
Subdivision: Port Charlotte Sec 066
Foundation: Slab
County: Charlotte
School Information
Elementary: Myakka River Elementary
Middle: L.A. Ainger Middle
High: Lemon Bay High
Room Information
Main Floor
Kitchen: 8x12
Florida Room: 14x23
Living Room: 11x20
Bedroom 2: 9x12
Primary Bedroom: 12x14
Bathrooms
Full Baths: 2
Additonal Room Information
Laundry: Inside, Laundry Room
Interior Features
Appliances: Electric Water Heater, Washer, Range, Refrigerator, Dishwasher, Disposal, Dryer, Microwave
Flooring: Ceramic Tile,Laminate
Accessibility: Accessibility Features
Additional Interior Features: Ceiling Fan(s), Eat-In Kitchen, Chair Rail
Utilities
Water: Public
Sewer: Public Sewer
Other Utilities: Cable Connected,Electricity Connected,High Speed Internet Available,Municipal Utilities,Sewer Connected,Underground Utilities,Water Connected
Cooling: Ceiling Fan(s), Central Air
Heating: Central, Electric
Exterior / Lot Features
Parking Description: driveway
Roof: Shingle
Pool: Community, Association
Lot View: Garden
Additional Exterior/Lot Features: Rain Gutters, Lighting, Other, Landscaped, Buyer Approval Required
Out Buildings: Shed(s)
Community Features
Community Features: Fitness, Recreation Area, Pool, Tennis Court(s), Sidewalks, Clubhouse, Street Lights
Association Amenities: Shuffleboard Court, Pickleball, Recreation Facilities, Fitness Center, Clubhouse, Tennis Court(s), Pool
HOA Dues Include: Recreation Facilities, Pool(s)
Homeowners Association: Yes
HOA Dues: $470 / Annually
Driving Directions
776 driving East, take left on Coliseum next to McDonalds and then right on Overton, left on La Porte, right on Isabel and home will be on your left.
Financial Considerations
Terms: Cash,Conventional,FHA,VA Loan
Tax/Property ID: 412105279005
Tax Amount: 3738.26
Tax Year: 2025
A broker reciprocity listing courtesy: RE/MAX ALLIANCE GROUP
Based on information provided by Stellar MLS as distributed by the MLS GRID. Information from the Internet Data Exchange is provided exclusively for consumers’ personal, non-commercial use, and such information may not be used for any purpose other than to identify prospective properties consumers may be interested in purchasing. This data is deemed reliable but is not guaranteed to be accurate by Edina Realty, Inc., or by the MLS. Edina Realty, Inc., is not a multiple listing service (MLS), nor does it offer MLS access.
Copyright 2026 Stellar MLS as distributed by the MLS GRID. All Rights Reserved.
Payment Calculator
Interest rate and annual percentage rate (APR) are based on current market conditions, are for informational purposes only, are subject to change without notice and may be subject to pricing add-ons related to property type, loan amount, loan-to-value, credit score and other variables. Estimated closing costs used in the APR calculation are assumed to be paid by the borrower at closing. If the closing costs are financed, the loan, APR and payment amounts will be higher. If the down payment is less than 20%, mortgage insurance may be required and could increase the monthly payment and APR. Contact us for details. Additional loan programs may be available. Accuracy is not guaranteed, and all products may not be available in all borrower's geographical areas and are based on their individual situation. This is not a credit decision or a commitment to lend.
Sales History & Tax Summary for 13512 Isabell Avenue
Sales History
| Date | Price | |
|---|---|---|
| Currently not available. | ||
Tax Summary
| Tax Year | Estimated Market Value | Total Tax |
|---|---|---|
| Currently not available. | ||
Data powered by ATTOM Data Solutions. Copyright© 2026. Information deemed reliable but not guaranteed.
Schools
Schools nearby 13512 Isabell Avenue
| Schools in attendance boundaries | Grades | Distance | Rating |
|---|---|---|---|
| Loading... | |||
| Schools nearby | Grades | Distance | Rating |
|---|---|---|---|
| Loading... | |||
Data powered by ATTOM Data Solutions. Copyright© 2026. Information deemed reliable but not guaranteed.
The schools shown represent both the assigned schools and schools by distance based on local school and district attendance boundaries. Attendance boundaries change based on various factors and proximity does not guarantee enrollment eligibility. Please consult your real estate agent and/or the school district to confirm the schools this property is zoned to attend. Information is deemed reliable but not guaranteed.
SchoolDigger ® Rating
The SchoolDigger rating system is a 1-5 scale with 5 as the highest rating. SchoolDigger ranks schools based on test scores supplied by each state's Department of Education. They calculate an average standard score by normalizing and averaging each school's test scores across all tests and grades.
Coming soon properties will soon be on the market, but are not yet available for showings.