13524 Turtle Marsh Loop #621 Orlando, FL 32837
For Sale MLS# O6342159
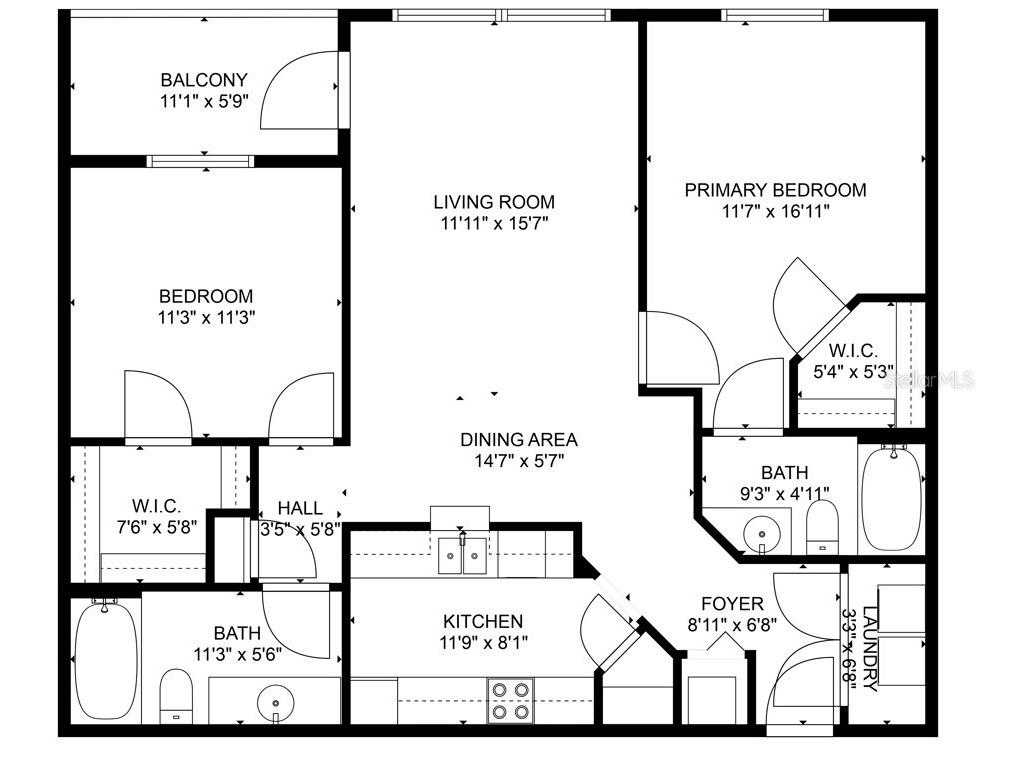
2 beds 2 baths 1,116 sq ft Condo
Details for 13524 Turtle Marsh Loop #621
MLS# O6342159
Description for 13524 Turtle Marsh Loop #621, Orlando, FL, 32837
NEWLY updated(paint, flooring, dishwasher) with highly rated schools, and move in ready! This spacious 2-bedroom, 2-bath condominium is located in the highly desirable gated community of Hunter’s Creek, one of Orlando’s premier master-planned neighborhoods. With brand-new interior paint, new luxury vinyl plank flooring in both bedrooms, and a new dishwasher, this home offers a private screened in balcony and assigned parking spaces. Step inside to an open-concept floor plan filled with natural light from large windows throughout. The living room and kitchen feature sleek tile flooring, while the bedrooms boast durable, waterproof, scratch-resistant LVP flooring. Enjoy your morning coffee or evening wind-down on the private screened-in balcony—a perfect spot to relax and catch the sunset overlooking the adjacent golf course. Additional highlights include: In-unit washer and dryer, large community pool, miles of walking trails & fitness center Conveniently located with easy access to 417 and the Turnpike, plus shopping and dining just minutes away: Publix (walking distance), Target, Walmart, Lowe’s, Osceola Village, and more all within a 5-minute drive. Within 20 minutes there are world class entertainment options such as the new Epic Universe, Universal studios, Disney's Magic Kingdom, Animal Kingdom, Epcot and Hollywood studios. For nature lovers Southeast of Hunter's creek there are Gator Airboat Rides at Lake Tohopekaliga, Florida Trail Lakefront Park, camping at Shingle Creek Regional Park, Twin Oaks conservation area, split oak Forest and much more!
Listing Information
Property Type: Residential, Condominium
Status: Active
Bedrooms: 2
Bathrooms: 2
Lot Size: 0.37 Acres
Square Feet: 1,116 sq ft
Year Built: 2000
Stories: 1 Story
Construction: Block,Stucco
Construction Display: New Construction
Subdivision: Golfview At Hunters Creek Ph 01
Foundation: Block
County: Orange
Construction Status: New Construction
School Information
Elementary: Endeavor Elem
Middle: Hunter's Creek Middle
High: Freedom-Hb
Room Information
Main Floor
Kitchen: 8x12
Living Room: 13x16
Bedroom 2: 10x12
Primary Bedroom: 12x14
Bathrooms
Full Baths: 2
Additonal Room Information
Laundry: Inside, Washer Hookup, Electric Dryer Hookup
Interior Features
Appliances: Range Hood, Electric Water Heater, Washer, Freezer, Microwave, Refrigerator, Dishwasher, Disposal, Dryer
Flooring: Luxury Vinyl,Tile
Doors/Windows: Window Treatments
Fireplaces: Family Room
Additional Interior Features: Ceiling Fan(s), Split Bedrooms, Walk-In Closet(s), Window Treatments, Main Level Primary, Kitchen/Family Room Combo, Open Floorplan
Utilities
Water: Public
Sewer: Public Sewer
Other Utilities: Cable Available,Electricity Available,Electricity Connected,High Speed Internet Available,Municipal Utilities,Sewer Available,Sewer Connected
Cooling: Ceiling Fan(s), Central Air
Heating: Electric, Central
Exterior / Lot Features
Roof: Shingle
Pool: Association, Community
Lot View: City,Park/Greenbelt,Trees/Woods
Additional Exterior/Lot Features: Balcony, Balcony, City Lot, Outside City Limits
Community Features
Community Features: Fitness, Gated, Sidewalks, Pool
Security Features: Gated Community
Association Amenities: Fitness Center, Park, Gated, Pool
HOA Dues Include: Pool(s), Water, Security, Sewer
Homeowners Association: Yes
Driving Directions
Head south on US-17 S/US-441 S/US-92 W/S Orange Blossom Trl 2.7 mi Turn right onto Town Center Blvd 0.1 mi Turn left onto Turtle Marsh Loop Turn right to stay on Turtle Marsh Loop
Financial Considerations
Terms: Cash,Conventional,FHA,VA Loan
Tax/Property ID: 27-24-29-3050-08-120
Tax Amount: 3025.15
Tax Year: 2024
A broker reciprocity listing courtesy: EXP REALTY LLC
Based on information provided by Stellar MLS as distributed by the MLS GRID. Information from the Internet Data Exchange is provided exclusively for consumers’ personal, non-commercial use, and such information may not be used for any purpose other than to identify prospective properties consumers may be interested in purchasing. This data is deemed reliable but is not guaranteed to be accurate by Edina Realty, Inc., or by the MLS. Edina Realty, Inc., is not a multiple listing service (MLS), nor does it offer MLS access.
Copyright 2025 Stellar MLS as distributed by the MLS GRID. All Rights Reserved.
Payment Calculator
Interest rate and annual percentage rate (APR) are based on current market conditions, are for informational purposes only, are subject to change without notice and may be subject to pricing add-ons related to property type, loan amount, loan-to-value, credit score and other variables. Estimated closing costs used in the APR calculation are assumed to be paid by the borrower at closing. If the closing costs are financed, the loan, APR and payment amounts will be higher. If the down payment is less than 20%, mortgage insurance may be required and could increase the monthly payment and APR. Contact us for details. Additional loan programs may be available. Accuracy is not guaranteed, and all products may not be available in all borrower's geographical areas and are based on their individual situation. This is not a credit decision or a commitment to lend.
Sales History & Tax Summary for 13524 Turtle Marsh Loop #621
Sales History
| Date | Price | Change |
|---|---|---|
| Currently not available. | ||
Tax Summary
| Tax Year | Estimated Market Value | Total Tax |
|---|---|---|
| Currently not available. | ||
Data powered by ATTOM Data Solutions. Copyright© 2025. Information deemed reliable but not guaranteed.
Schools
Schools nearby 13524 Turtle Marsh Loop #621
| Schools in attendance boundaries | Grades | Distance | Rating |
|---|---|---|---|
| Loading... | |||
| Schools nearby | Grades | Distance | Rating |
|---|---|---|---|
| Loading... | |||
Data powered by ATTOM Data Solutions. Copyright© 2025. Information deemed reliable but not guaranteed.
The schools shown represent both the assigned schools and schools by distance based on local school and district attendance boundaries. Attendance boundaries change based on various factors and proximity does not guarantee enrollment eligibility. Please consult your real estate agent and/or the school district to confirm the schools this property is zoned to attend. Information is deemed reliable but not guaranteed.
SchoolDigger ® Rating
The SchoolDigger rating system is a 1-5 scale with 5 as the highest rating. SchoolDigger ranks schools based on test scores supplied by each state's Department of Education. They calculate an average standard score by normalizing and averaging each school's test scores across all tests and grades.
Coming soon properties will soon be on the market, but are not yet available for showings.