1356 Rio De Janeiro Avenue #107 Punta Gorda, FL 33983
For Sale MLS# C7505826
2 beds 2 baths 1,023 sq ft Condo
Details for 1356 Rio De Janeiro Avenue #107
MLS# C7505826
Description for 1356 Rio De Janeiro Avenue #107, Punta Gorda, FL, 33983
This stunning 2-bedroom, 2-bathroom FIRST-FLOOR condo located in Serenity at Deep Creek offers an inviting open-concept layout that seamlessly blends comfort and style. As you enter, you're greeted by an expansive living area with large sliders that flood the space with natural light. The soft neutral tones and modern finishes create a warm, welcoming atmosphere. The kitchen, featuring sleek stainless steel appliances, upgraded fixtures, granite countertops, and a breakfast bar perfect for casual dining. It flows effortlessly into the beautifully tiled dining and living areas, making it ideal for entertaining guests or relaxing with family. The living space opens up to a private, screened-in patio where you can unwind while enjoying the long tranquil golf course views. The master bedroom is spacious, with plenty of closet space and an en-suite bathroom that boasts a newly updated walk-in shower. The second bedroom is equally charming, with ample space and access to the second bathroom, which is equally well-appointed with updated finishes. Outside, the condo is surrounded by lush greenery and the gentle hum of golf course life, with no rear neighbors to block your view. Located in a well-maintained community, residents have access to a variety of amenities, such as a park, tennis courts and walking paths. The condo also offers convenient access to local shops, restaurants, and, of course, the gorgeous Florida beaches. This condo is a perfect blend of elegance, relaxation, and functionality, making it an ideal spot to enjoy the best of Florida living. Worried about insurance cost? Well you'll only find peace here in knowing that this property is located in an X Flood zone, so no flood insurance required here. The building was recently refreshed with a New Roof, exterior paint and more. This meticulously maintained unit is MOVE IN READY, so don't let your dream condo become someone else's address. Setup your showing today! ** CHECK OUT THE VIRTUAL TOUR AND FLY THROUGH VIDEO **
Listing Information
Property Type: Residential, Condominium
Status: Active
Bedrooms: 2
Bathrooms: 2
Square Feet: 1,023 sq ft
Year Built: 2006
Stories: 1 Story
Construction: Block
Subdivision: Serenity/Deep Crk
Foundation: Slab
County: Charlotte
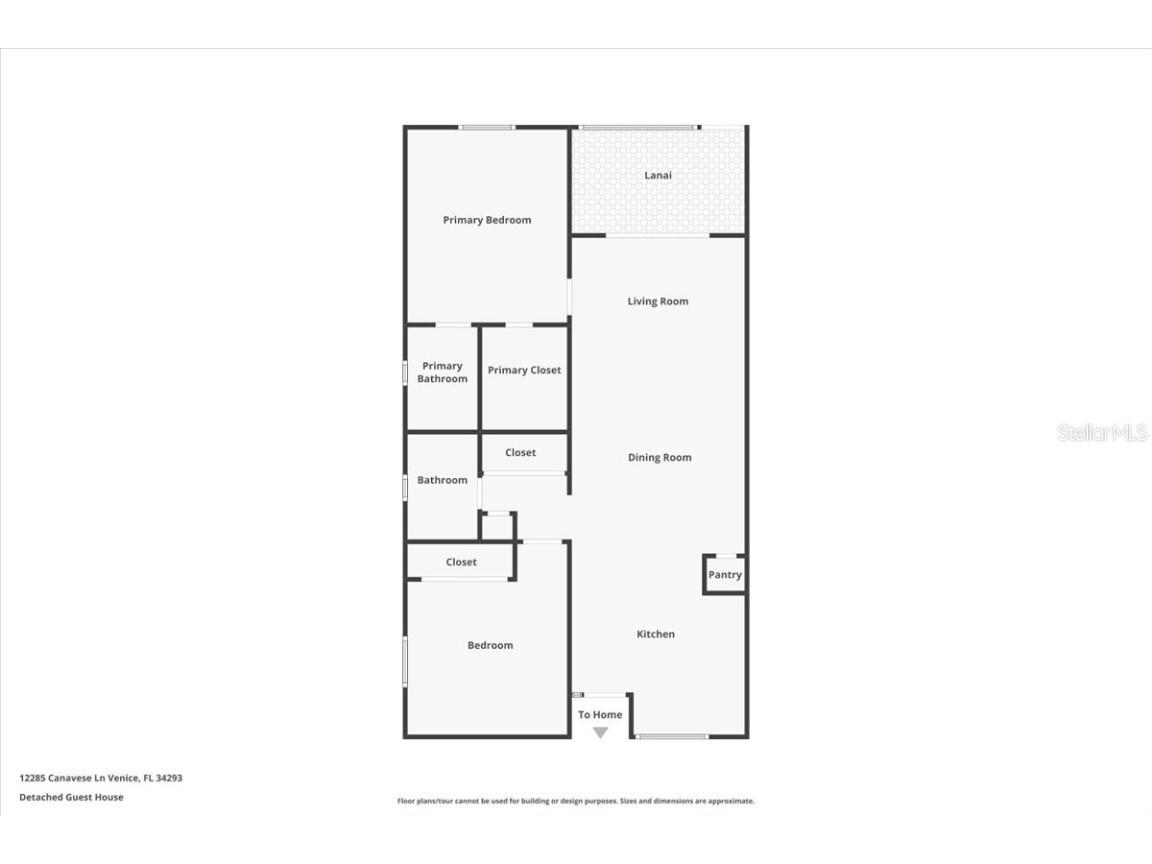
Room Information
Main Floor
Porch: 12x8
Bathroom 2: 8x5
Kitchen: 12x11
Living Room: 12x15
Dining Room: 12x8
Bedroom 2: 11x11
Primary Bathroom: 8x5
Primary Bedroom: 12x14
Bathrooms
Full Baths: 2
Additonal Room Information
Laundry: Laundry Closet
Interior Features
Appliances: Electric Water Heater, Range, Refrigerator, Microwave, Dishwasher, Disposal
Flooring: Tile
Additional Interior Features: Eat-In Kitchen, Ceiling Fan(s), Walk-In Closet(s), Living/Dining Room, Stone Counters
Utilities
Water: Public
Sewer: Public Sewer
Other Utilities: Cable Available,Electricity Connected,High Speed Internet Available,Phone Available,Sewer Connected,Water Available
Cooling: Ceiling Fan(s), Central Air
Heating: Central
Exterior / Lot Features
Parking Description: Guest, driveway, Covered
Roof: Shingle
Lot View: Golf Course
Additional Exterior/Lot Features: Sprinkler/Irrigation, Rain Gutters, Lighting, Enclosed, Screened, Rear Porch, Flat, Level, On Golf Course
Community Features
Community Features: Sidewalks, Tennis Court(s), Playground, Golf, Street Lights, Park
HOA Dues Include: Maintenance Structure, Insurance, Maintenance Grounds
Driving Directions
US 41 NORTH......RIGHT ON MELBOURNE.....RIGHT ON HARBORVIEW....LEFT ON RIO DE JANEIRO ....GO 1.6 MILES TO 1356 RIO DE JANEIRO ON THE RIGHT
Financial Considerations
Terms: Cash,Conventional,FHA,VA Loan
Tax/Property ID: 402309727001
Tax Amount: 2494
Tax Year: 2024
A broker reciprocity listing courtesy: RE/MAX PALM REALTY
Based on information provided by Stellar MLS as distributed by the MLS GRID. Information from the Internet Data Exchange is provided exclusively for consumers’ personal, non-commercial use, and such information may not be used for any purpose other than to identify prospective properties consumers may be interested in purchasing. This data is deemed reliable but is not guaranteed to be accurate by Edina Realty, Inc., or by the MLS. Edina Realty, Inc., is not a multiple listing service (MLS), nor does it offer MLS access.
Copyright 2025 Stellar MLS as distributed by the MLS GRID. All Rights Reserved.
Payment Calculator
Interest rate and annual percentage rate (APR) are based on current market conditions, are for informational purposes only, are subject to change without notice and may be subject to pricing add-ons related to property type, loan amount, loan-to-value, credit score and other variables. Estimated closing costs used in the APR calculation are assumed to be paid by the borrower at closing. If the closing costs are financed, the loan, APR and payment amounts will be higher. If the down payment is less than 20%, mortgage insurance may be required and could increase the monthly payment and APR. Contact us for details. Additional loan programs may be available. Accuracy is not guaranteed, and all products may not be available in all borrower's geographical areas and are based on their individual situation. This is not a credit decision or a commitment to lend.
Sales History & Tax Summary for 1356 Rio De Janeiro Avenue #107
Sales History
| Date | Price | Change |
|---|---|---|
| Currently not available. | ||
Tax Summary
| Tax Year | Estimated Market Value | Total Tax |
|---|---|---|
| Currently not available. | ||
Data powered by ATTOM Data Solutions. Copyright© 2025. Information deemed reliable but not guaranteed.
Schools
Schools nearby 1356 Rio De Janeiro Avenue #107
| Schools in attendance boundaries | Grades | Distance | Rating |
|---|---|---|---|
| Loading... | |||
| Schools nearby | Grades | Distance | Rating |
|---|---|---|---|
| Loading... | |||
Data powered by ATTOM Data Solutions. Copyright© 2025. Information deemed reliable but not guaranteed.
The schools shown represent both the assigned schools and schools by distance based on local school and district attendance boundaries. Attendance boundaries change based on various factors and proximity does not guarantee enrollment eligibility. Please consult your real estate agent and/or the school district to confirm the schools this property is zoned to attend. Information is deemed reliable but not guaranteed.
SchoolDigger ® Rating
The SchoolDigger rating system is a 1-5 scale with 5 as the highest rating. SchoolDigger ranks schools based on test scores supplied by each state's Department of Education. They calculate an average standard score by normalizing and averaging each school's test scores across all tests and grades.
Coming soon properties will soon be on the market, but are not yet available for showings.