$385,000
13601 Frigate Court #106M Clearwater, FL 33762
For Sale MLS# TB8449517
3 beds 3 baths 1,720 sq ft Condo
Details for 13601 Frigate Court #106M
MLS# TB8449517
Description for 13601 Frigate Court #106M, Clearwater, FL, 33762
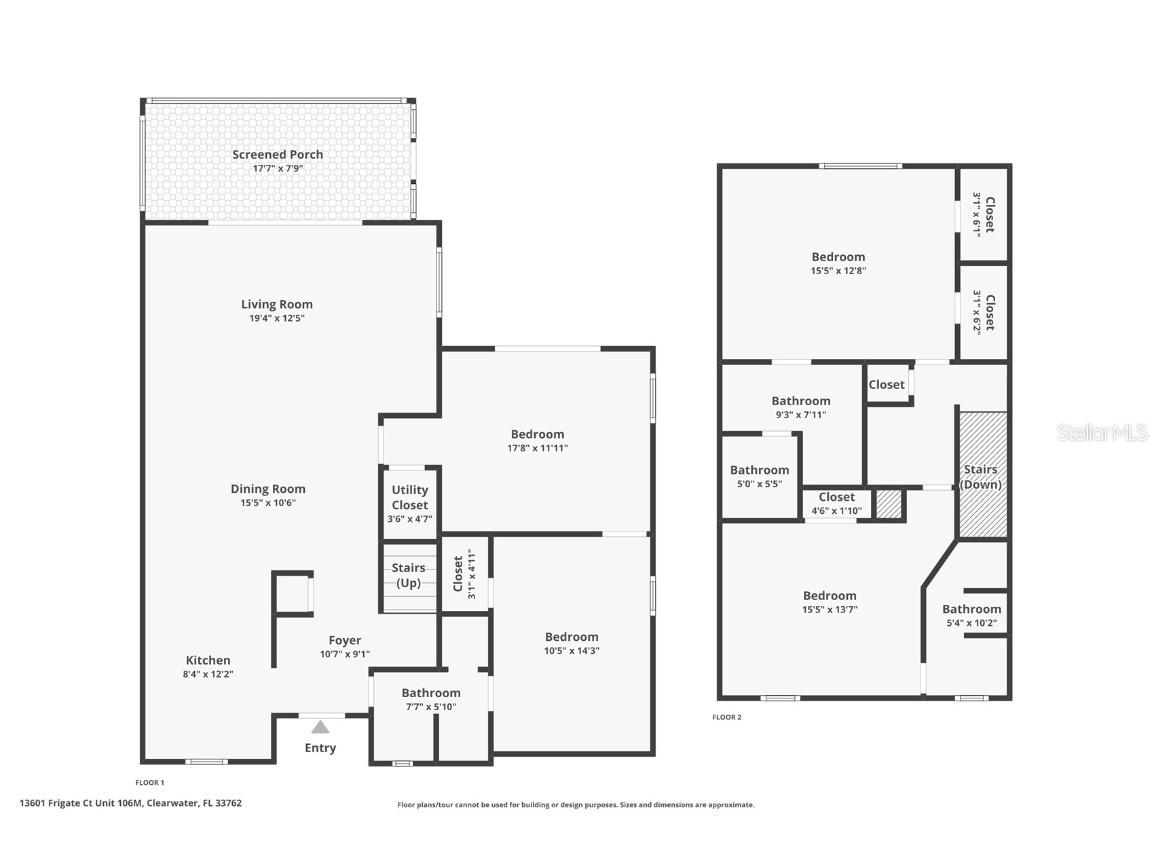
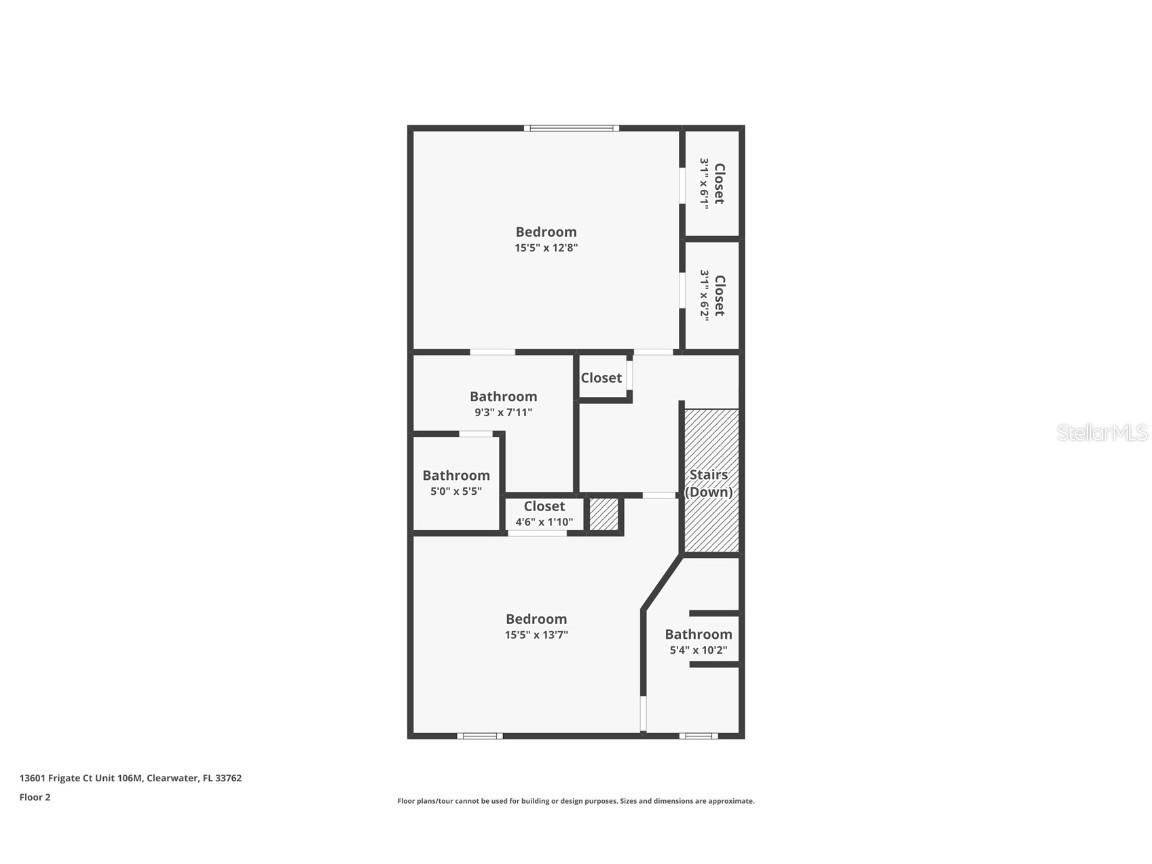
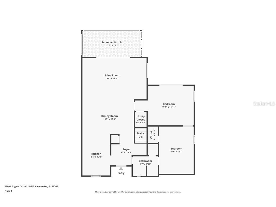
One or more photo(s) has been virtually staged. Looking for the perfect multi-generational or flexible living opportunity? Look no further. Rarely available 3-bedroom, 3-bath corner townhome in the desirable Bordeaux Village of Feather Sound, offering one of the largest floor plans in the community. This spacious end unit features a highly versatile layout with three en-suite bedrooms—two upstairs and one downstairs—plus a ground-floor bonus room ideal for a den, home office, gym, or guest space. The downstairs bathroom was completely renovated. The open living and dining areas are enhanced by crown molding, brand-new luxury vinyl plank flooring (2025) , abundant natural light, and a freshly repainted interior (downstairs painted within the last 4 months). The fully remodeled kitchen showcases stainless steel appliances, wood cabinetry, granite countertops, a farmhouse sink, glass-front display cabinets, custom backsplash, and updated lighting. New dishwasher (2025) and garbage disposal (2017) add peace of mind. Upstairs, the primary suite offers his-and-her walk-in closets, dual vanities, a separate walk-in shower, and a soaking tub and brand new vinyl simulated tile flooring. The second upstairs bedroom also features a private en-suite bath. All three full bathrooms have been updated. The upstairs level has been completely repainted and features brand-new carpet, along with a convenient laundry area with full-size washer and dryer. New insulation was added to the attic. So that's helpful for the summer months in FL. Enjoy two outdoor living spaces—a screened patio and an open patio with an adjacent private side yard. Additional highlights include covered carport parking, guest parking, extra storage, and two attic spaces (one has pull-down stairs). So plenty of storage is a huge plus!! Major updates include a new A/C (2025), hot water heater (2025), and roof replaced in 2017—all major systems have been addressed. Washer and Dryer are staying with the property (washer 2010 dryer 2024) The Feather Sound community offers a neighborhood park, playground, basketball court, and green space. Centrally located near I-275, Tampa and St. Petersburg airports, downtown Tampa, downtown St. Petersburg, and the Gulf beaches. Walk to Starbucks, banking, and restaurants.
Listing Information
Property Type: Residential, Condominium
Status: Active
Bedrooms: 3
Bathrooms: 3
Lot Size: 0.74 Acres
Square Feet: 1,720 sq ft
Year Built: 1981
Stories: 2 Story
Construction: Block,Stucco
Subdivision: Bordeaux Village
Foundation: Slab
County: Pinellas
School Information
Elementary: High Point Elementary-Pn
Middle: Fitzgerald Middle-Pn
High: Pinellas Park High-Pn
Room Information
Main Floor
Bedroom 3:
Kitchen:
Dining Room:
Living Room:
Upper Floor
Bedroom 2:
Primary Bedroom:
Bathrooms
Full Baths: 3
Additonal Room Information
Laundry: Inside, Upper Level
Interior Features
Appliances: Washer, Dishwasher, Disposal, Dryer, Microwave, Range, Refrigerator
Flooring: Laminate,Luxury Vinyl
Additional Interior Features: Ceiling Fan(s), Living/Dining Room, Open Floorplan, Stone Counters, Upper Level Primary
Utilities
Water: Public
Sewer: Public Sewer
Other Utilities: Cable Available,Electricity Connected,Water Connected
Cooling: Central Air, Ceiling Fan(s)
Heating: Central
Exterior / Lot Features
Roof: Shingle
Additional Exterior/Lot Features: Sprinkler/Irrigation, Storage, Buyer Approval Required
Community Features
Community Features: Community Mailbox, Park, Sidewalks, Playground
HOA Dues Include: Trash, Water, Sewer, Maintenance Structure, Insurance, Maintenance Grounds, Reserve Fund
Driving Directions
From Ulmerton Rd (FL-688): Turn south onto Egret Blvd. Take the first left onto Frigate Ct. Follow the road to 13601 Frigate Ct, Unit M-106.
Financial Considerations
Terms: Cash,Conventional,VA Loan
Tax/Property ID: 02-30-16-10347-013-1060
Tax Amount: 6406.88
Tax Year: 2024
A broker reciprocity listing courtesy: RE/MAX COLLECTIVE
Based on information provided by Stellar MLS as distributed by the MLS GRID. Information from the Internet Data Exchange is provided exclusively for consumers’ personal, non-commercial use, and such information may not be used for any purpose other than to identify prospective properties consumers may be interested in purchasing. This data is deemed reliable but is not guaranteed to be accurate by Edina Realty, Inc., or by the MLS. Edina Realty, Inc., is not a multiple listing service (MLS), nor does it offer MLS access.
Copyright 2025 Stellar MLS as distributed by the MLS GRID. All Rights Reserved.
Payment Calculator
Interest rate and annual percentage rate (APR) are based on current market conditions, are for informational purposes only, are subject to change without notice and may be subject to pricing add-ons related to property type, loan amount, loan-to-value, credit score and other variables. Estimated closing costs used in the APR calculation are assumed to be paid by the borrower at closing. If the closing costs are financed, the loan, APR and payment amounts will be higher. If the down payment is less than 20%, mortgage insurance may be required and could increase the monthly payment and APR. Contact us for details. Additional loan programs may be available. Accuracy is not guaranteed, and all products may not be available in all borrower's geographical areas and are based on their individual situation. This is not a credit decision or a commitment to lend.
Sales History & Tax Summary for 13601 Frigate Court #106M
Sales History
| Date | Price | Change |
|---|---|---|
| Currently not available. | ||
Tax Summary
| Tax Year | Estimated Market Value | Total Tax |
|---|---|---|
| Currently not available. | ||
Data powered by ATTOM Data Solutions. Copyright© 2025. Information deemed reliable but not guaranteed.
Schools
Schools nearby 13601 Frigate Court #106M
| Schools in attendance boundaries | Grades | Distance | Rating |
|---|---|---|---|
| Loading... | |||
| Schools nearby | Grades | Distance | Rating |
|---|---|---|---|
| Loading... | |||
Data powered by ATTOM Data Solutions. Copyright© 2025. Information deemed reliable but not guaranteed.
The schools shown represent both the assigned schools and schools by distance based on local school and district attendance boundaries. Attendance boundaries change based on various factors and proximity does not guarantee enrollment eligibility. Please consult your real estate agent and/or the school district to confirm the schools this property is zoned to attend. Information is deemed reliable but not guaranteed.
SchoolDigger ® Rating
The SchoolDigger rating system is a 1-5 scale with 5 as the highest rating. SchoolDigger ranks schools based on test scores supplied by each state's Department of Education. They calculate an average standard score by normalizing and averaging each school's test scores across all tests and grades.
Coming soon properties will soon be on the market, but are not yet available for showings.