$680,000
13609 Heritage Way Tampa, FL 33613
For Sale MLS# W7880272
4 beds 3 baths 2,307 sq ft Single Family
Details for 13609 Heritage Way
MLS# W7880272
Description for 13609 Heritage Way, Tampa, FL, 33613
Modern comfort meets everyday Florida living in this beautifully updated 4-bedroom, 3-bath home nestled in the desirable Daneli subdivision — with no HOA. Set on a spacious .26-acre corner lot, this residence blends fresh design, function, and lifestyle in one inviting package. Step inside to discover an open-concept layout featuring luxury vinyl plank flooring (2025) and a remodeled kitchen (2023) with modern appliances, sleek cabinetry, and generous workspace — perfect for home cooks and entertainers alike. The living room’s electric fireplace wall creates a stunning focal point and flows seamlessly to the screen-enclosed pool area, ideal for relaxing or hosting weekend gatherings. The primary suite offers a peaceful retreat with private lanai access overlooking the pool, while the updated baths deliver spa-like style and finishes. Outside, enjoy an oversized driveway, a garage with epoxy flooring, and a fenced backyard oasis with sparkling pool and electric one-person spa — your personal sanctuary for year-round enjoyment. Additional highlights include interior paint (2022) and solar power for energy efficiency. Located minutes from shopping, dining, and major routes, this home combines modern updates with timeless Florida charm in a quiet, established neighborhood.
Listing Information
Property Type: Residential, Single Family Residence
Status: Active
Bedrooms: 4
Bathrooms: 3
Lot Size: 0.26 Acres
Square Feet: 2,307 sq ft
Year Built: 1980
Garage: Yes
Stories: 2 Story
Construction: Block,Stucco,Wood Frame
Subdivision: Daneli
Foundation: Slab
County: Hillsborough
School Information
Elementary: Lake Magdalene-Hb
Middle: Buchanan-Hb
High: Gaither-Hb
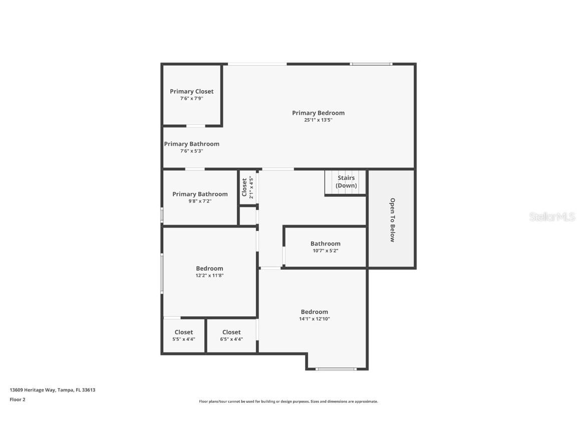
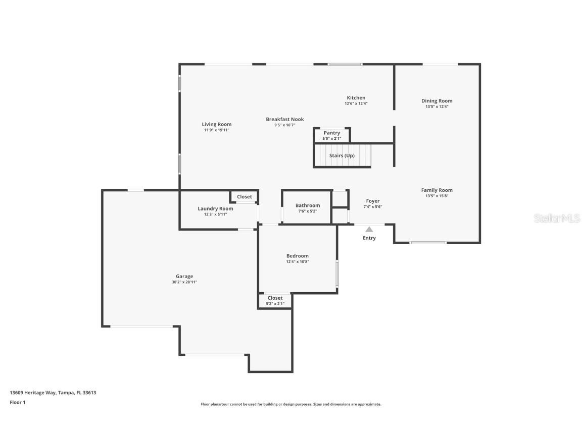
Room Information
Main Floor
Dinette: 16x9
Living Room: 20x12
Dining Room: 12x13
Family Room: 15x13
Bathroom 2: 11x12
Laundry: 6x12
Bathroom 2: 5x7
Kitchen: 12x13
Upper Floor
Bathroom 3: 5x10
Bedroom 4: 13x14
Bedroom 3: 12x12
Primary Bathroom: 5x7
Primary Bedroom: 13x25
Bathrooms
Full Baths: 3
Additonal Room Information
Laundry: Inside
Interior Features
Appliances: Washer, Dishwasher, Disposal, Dryer, Microwave, Range, Refrigerator
Flooring: Tile,Vinyl
Doors/Windows: Double Pane Windows
Fireplaces: Electric
Additional Interior Features: Ceiling Fan(s), Eat-In Kitchen, Living/Dining Room, Split Bedrooms, Walk-In Closet(s), Kitchen/Family Room Combo, Stone Counters, Upper Level Primary
Utilities
Water: Public
Sewer: Public Sewer
Other Utilities: Cable Available,Electricity Connected,Fiber Optic Available,Municipal Utilities,Phone Available,Sewer Connected,Underground Utilities,Water Connected
Cooling: Central Air, Ceiling Fan(s)
Heating: Electric, Central
Exterior / Lot Features
Attached Garage: Attached Garage
Garage Spaces: 2
Roof: Shingle
Pool: In Ground, Screen Enclosure, Gunite
Fencing: Wood
Additional Exterior/Lot Features: Sprinkler/Irrigation, Lighting, Screened, Rear Porch, Corner Lot, Landscaped
Community Features
Community Features: Sidewalks
Driving Directions
From I-275 N, take Exit 53 for Bearss Avenue. Head west on E Bearss Ave for approximately 2 miles. Turn right onto Lake Magdalene Boulevard, then left onto Heritage Way. The property will be on the right.
Financial Considerations
Terms: Cash,Conventional,VA Loan
Tax/Property ID: U-02-28-18-0U3-000001-00003.0
Tax Amount: 7376.46
Tax Year: 2024
A broker reciprocity listing courtesy: EXP REALTY, LLC
Based on information provided by Stellar MLS as distributed by the MLS GRID. Information from the Internet Data Exchange is provided exclusively for consumers’ personal, non-commercial use, and such information may not be used for any purpose other than to identify prospective properties consumers may be interested in purchasing. This data is deemed reliable but is not guaranteed to be accurate by Edina Realty, Inc., or by the MLS. Edina Realty, Inc., is not a multiple listing service (MLS), nor does it offer MLS access.
Copyright 2025 Stellar MLS as distributed by the MLS GRID. All Rights Reserved.
Payment Calculator
Interest rate and annual percentage rate (APR) are based on current market conditions, are for informational purposes only, are subject to change without notice and may be subject to pricing add-ons related to property type, loan amount, loan-to-value, credit score and other variables. Estimated closing costs used in the APR calculation are assumed to be paid by the borrower at closing. If the closing costs are financed, the loan, APR and payment amounts will be higher. If the down payment is less than 20%, mortgage insurance may be required and could increase the monthly payment and APR. Contact us for details. Additional loan programs may be available. Accuracy is not guaranteed, and all products may not be available in all borrower's geographical areas and are based on their individual situation. This is not a credit decision or a commitment to lend.
Sales History & Tax Summary for 13609 Heritage Way
Sales History
| Date | Price | Change |
|---|---|---|
| Currently not available. | ||
Tax Summary
| Tax Year | Estimated Market Value | Total Tax |
|---|---|---|
| Currently not available. | ||
Data powered by ATTOM Data Solutions. Copyright© 2025. Information deemed reliable but not guaranteed.
Schools
Schools nearby 13609 Heritage Way
| Schools in attendance boundaries | Grades | Distance | Rating |
|---|---|---|---|
| Loading... | |||
| Schools nearby | Grades | Distance | Rating |
|---|---|---|---|
| Loading... | |||
Data powered by ATTOM Data Solutions. Copyright© 2025. Information deemed reliable but not guaranteed.
The schools shown represent both the assigned schools and schools by distance based on local school and district attendance boundaries. Attendance boundaries change based on various factors and proximity does not guarantee enrollment eligibility. Please consult your real estate agent and/or the school district to confirm the schools this property is zoned to attend. Information is deemed reliable but not guaranteed.
SchoolDigger ® Rating
The SchoolDigger rating system is a 1-5 scale with 5 as the highest rating. SchoolDigger ranks schools based on test scores supplied by each state's Department of Education. They calculate an average standard score by normalizing and averaging each school's test scores across all tests and grades.
Coming soon properties will soon be on the market, but are not yet available for showings.