137 Franklin Avenue Pomona Park, FL 32181
For Sale MLS# OM692634
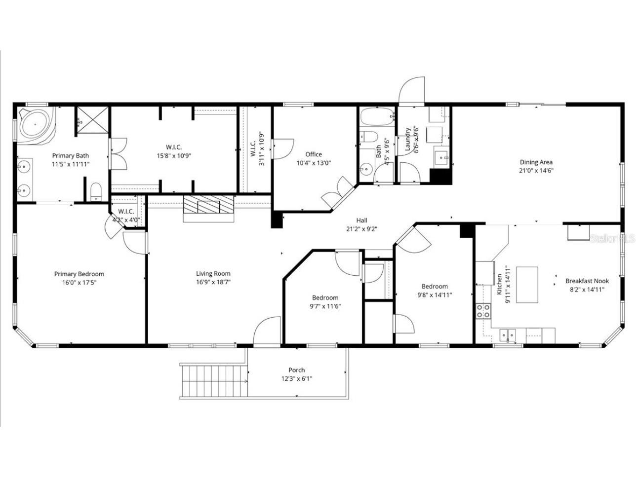
4 beds 2 baths 2,280 sq ft Single Family
Details for 137 Franklin Avenue
MLS# OM692634
Description for 137 Franklin Avenue, Pomona Park, FL, 32181
SELLER FINANCING AVAILABLE, CONTACT AGENT FOR ADDITIONAL INFORMATION! No HOA or Deed Restrictions! This spacious 4-bedroom, 2-bath modular home offers 2,280 Sq.Ft. of comfortable living space, situated on a peaceful 1.41-acre lot in a quiet and safe area. The open floor plan creates a welcoming atmosphere with new waterproof tile flooring in the main living areas, split floor plan, bay windows, skylights and a cozy wood-burning fireplace, perfect for relaxing evenings. Large primary bedroom with an en-suite bathroom and an oversized walk-in closet, providing ample storage and convenience. Outside the partially fenced yard offers plenty of space for outdoor activities or your furry family members. Recent upgrades include a new metal roof & HVAC, ensuring durability and comfort for years to come. The property also boasts new appliances, faucets and two sets of newly installed back porch steps, water filtration system (2025) adding to its modern appeal. As an added bonus the home will also include a 1-year warranty at closing, giving the buyer added protection and peace of mind from day one. Located just 0.6 miles from Broward Lake, 13-miles from Lake George, and 6-miles from Crescent Lake, this home is ideally situated for those who enjoy fishing and outdoor recreation. With Crescent Lake hosting renowned bass fishing tournaments, this property is perfect for anyone seeking a tranquil lifestyle with convenient access to nearby lakes and nature. Schedule your private showing today!
Listing Information
Property Type: Residential, Manufactured Home
Status: Active
Bedrooms: 4
Bathrooms: 2
Lot Size: 1.41 Acres
Square Feet: 2,280 sq ft
Year Built: 2007
Stories: 1 Story
Construction: Vinyl Siding,Wood Frame
Subdivision: Metes & Bounds
Foundation: Pillar/Post/Pier
County: Putnam
School Information
Elementary: Middleton-Burney Elementary School
Middle: Crescent City Jr/Sr High School
High: Crescent City Jr/Sr High School
Room Information
Main Floor
Bedroom 4: 13x10.4
Bedroom 3: 14.11x9.8
Bedroom 2: 11.6x9.7
Primary Bedroom: 17.5x16
Family Room: 21x14.6
Kitchen: 14.11x9.11
Living Room: 18.7x16.9
Bathrooms
Full Baths: 2
Additonal Room Information
Laundry: Washer Hookup, Laundry Room, Electric Dryer Hookup
Interior Features
Appliances: Electric Water Heater, Microwave, Range, Refrigerator, Dishwasher
Flooring: Carpet,Luxury Vinyl,Tile
Fireplaces: Wood Burning
Additional Interior Features: Built-in Features, Walk-In Closet(s), Ceiling Fan(s), Vaulted Ceiling(s), Split Bedrooms, Open Floorplan, Wood Cabinets, Main Level Primary
Utilities
Water: Well
Sewer: Septic Tank
Other Utilities: Cable Connected,Electricity Connected,High Speed Internet Available,Sewer Connected,Underground Utilities,Water Connected
Cooling: Ceiling Fan(s), Central Air
Heating: Central
Exterior / Lot Features
Roof: Shingle
Fencing: fenced
Additional Exterior/Lot Features: Storage, Flat, Level, Cleared
Driving Directions
Go SW on lake st for 18-miles, turn left onto Franklin ave in 0.8miles. Then the destination will be on your left in 0.4 miles.
Financial Considerations
Terms: Cash,Conventional,FHA,Owner May Carry,VA Loan
Tax/Property ID: 30-11-27-0000-0120-0030
Tax Amount: 2347.69
Tax Year: 2023
A broker reciprocity listing courtesy: KELLER WILLIAMS CORNERSTONE RE
Based on information provided by Stellar MLS as distributed by the MLS GRID. Information from the Internet Data Exchange is provided exclusively for consumers’ personal, non-commercial use, and such information may not be used for any purpose other than to identify prospective properties consumers may be interested in purchasing. This data is deemed reliable but is not guaranteed to be accurate by Edina Realty, Inc., or by the MLS. Edina Realty, Inc., is not a multiple listing service (MLS), nor does it offer MLS access.
Copyright 2026 Stellar MLS as distributed by the MLS GRID. All Rights Reserved.
Payment Calculator
Interest rate and annual percentage rate (APR) are based on current market conditions, are for informational purposes only, are subject to change without notice and may be subject to pricing add-ons related to property type, loan amount, loan-to-value, credit score and other variables. Estimated closing costs used in the APR calculation are assumed to be paid by the borrower at closing. If the closing costs are financed, the loan, APR and payment amounts will be higher. If the down payment is less than 20%, mortgage insurance may be required and could increase the monthly payment and APR. Contact us for details. Additional loan programs may be available. Accuracy is not guaranteed, and all products may not be available in all borrower's geographical areas and are based on their individual situation. This is not a credit decision or a commitment to lend.
Sales History & Tax Summary for 137 Franklin Avenue
Sales History
| Date | Price | |
|---|---|---|
| Currently not available. | ||
Tax Summary
| Tax Year | Estimated Market Value | Total Tax |
|---|---|---|
| Currently not available. | ||
Data powered by ATTOM Data Solutions. Copyright© 2026. Information deemed reliable but not guaranteed.
Schools
Schools nearby 137 Franklin Avenue
| Schools in attendance boundaries | Grades | Distance | Rating |
|---|---|---|---|
| Loading... | |||
| Schools nearby | Grades | Distance | Rating |
|---|---|---|---|
| Loading... | |||
Data powered by ATTOM Data Solutions. Copyright© 2026. Information deemed reliable but not guaranteed.
The schools shown represent both the assigned schools and schools by distance based on local school and district attendance boundaries. Attendance boundaries change based on various factors and proximity does not guarantee enrollment eligibility. Please consult your real estate agent and/or the school district to confirm the schools this property is zoned to attend. Information is deemed reliable but not guaranteed.
SchoolDigger ® Rating
The SchoolDigger rating system is a 1-5 scale with 5 as the highest rating. SchoolDigger ranks schools based on test scores supplied by each state's Department of Education. They calculate an average standard score by normalizing and averaging each school's test scores across all tests and grades.
Coming soon properties will soon be on the market, but are not yet available for showings.