138 Leland Street SE Port Charlotte, FL 33952 - CLIPPER WATERWAY
For Sale MLS# C7516259
2 beds 2 baths 1,621 sq ft Single Family
Details for 138 Leland Street SE
MLS# C7516259
Description for 138 Leland Street SE, Port Charlotte, FL, 33952 - CLIPPER WATERWAY
Welcome to 138 Leland St SE! This stunning waterfront Gulf-access home with no bridges to the harbor has been completely renovated and is ready for you to move right in! This beautifully updated 2-bedroom, 1.5-bath home offers a functional layout featuring a spacious living room, dining area, family room, and indoor laundry. The gorgeous kitchen is sure to impress with granite countertops, new cabinets, new appliances, a pantry, and a generous dining area perfect for everyday meals or entertaining guests. The large primary bedroom offers en suite access to the main bathroom and includes a walk-in closet. The fully remodeled bathroom features dual sinks with granite countertops, new cabinets, a private water closet, and a luxurious walk-in shower accented by a glass block window that fills the space with natural light. The updated half bath also includes new cabinets and granite counters for a cohesive, modern look. Enjoy peace of mind with numerous recent upgrades: ~New IMPACT WINDOWS (2025) in all rooms except the living and family rooms ~Updated electrical panel (2025) ~New luxury vinyl flooring (2025) in the living room, bedrooms, and hall ~Fully re-plumbed with PEX piping (2025) ~Metal roof (2022) and AC system (2022) ~Freshly painted interior Step outside and relax as you take in the peaceful water views—fish right from your private dock, unwind with a book, or simply enjoy the Florida sunshine. The one-car garage has been refreshed with new vinyl siding from front to back and includes a full-length storage area to accommodate all your outdoor essentials. Sports fans will love being just 15 minutes from Charlotte Sports Park, the spring training home of the Tampa Bay Rays. For those who enjoy resort-style entertainment, dining, and waterfront leisure, the Sunseeker Resort is just minutes away—offering restaurants, rooftop bars, shops, and stunning harbor views. For boating and fishing enthusiasts, this property features sailboat access to Charlotte Harbor and the Gulf, and you can also launch your boat with public boat ramps conveniently located at Spring Lake Park and Charlotte Beach Park, both about five minutes away. Each provides direct access to the Peace River, Charlotte Harbor, and out to the Gulf, where world-class fishing and boating adventures await! You’ll also love being close to historic downtown Punta Gorda and Fishermen’s Village, home to locally owned restaurants, boutique shopping, waterfront dining, parks, and scenic walking and biking paths along the Harborwalk. Located near I-75 and the Punta Gorda Airport, travel and commuting are effortless, making this the ideal spot for full-time residents or seasonal visitors alike. Take advantage of an opportunity to own this beautifully updated waterfront home and live the Florida lifestyle! What are you waiting for? Don't just dream or visit, live it! Schedule your showing today.
Listing Information
Property Type: Residential, Single Family Residence
Status: Active
Bedrooms: 2
Bathrooms: 2
Lot Size: 0.23 Acres
Square Feet: 1,621 sq ft
Year Built: 1961
Garage: Yes
Stories: 1 Story
Construction: Concrete,Vinyl Siding
Construction Display: New Construction
Subdivision: Port Charlotte Sec 039
Foundation: Slab
County: Charlotte
Construction Status: New Construction
School Information
Elementary: Peace River Elementary
Middle: Port Charlotte Middle
High: Charlotte High
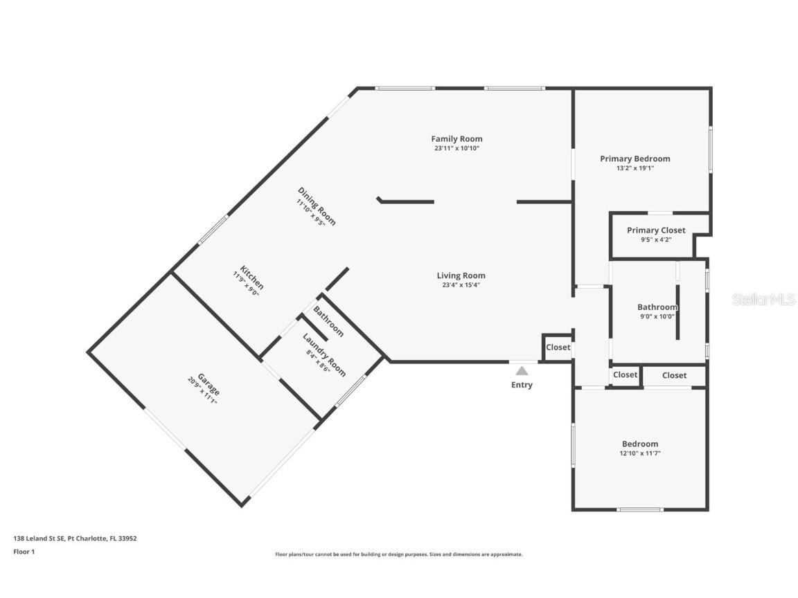
Room Information
Main Floor
Bedroom 2: 13x12
Bathroom 2: 10x9
Primary Bedroom: 20x13
Bathroom 1: 3x5
Laundry: 8x8
Kitchen: 9x12
Dining Room: 10x12
Family Room: 11x23
Living Room: 15x23
Bathrooms
Full Baths: 1
1/2 Baths: 1
Additonal Room Information
Laundry: Inside
Interior Features
Appliances: Microwave, Range, Refrigerator, Dishwasher, Electric Water Heater
Flooring: Luxury Vinyl,Tile
Doors/Windows: Blinds, Storm Window(s)
Additional Interior Features: Ceiling Fan(s), Walk-In Closet(s), Stone Counters
Utilities
Water: Public
Sewer: Public Sewer
Other Utilities: Cable Available,Electricity Connected,High Speed Internet Available,Sewer Connected,Water Connected
Cooling: Central Air, Ceiling Fan(s)
Heating: Central
Exterior / Lot Features
Attached Garage: Attached Garage
Garage Spaces: 1
Parking Description: Parking Pad, Garage Door Opener, Garage, driveway
Roof: Metal
Lot View: Canal,Water
Lot Dimensions: 81.2x125x80x125
Additional Exterior/Lot Features: Rain Gutters, Storage, Landscaped, Cul-de-Sac, Dead End, Outside City Limits
Waterfront Details
Standard Water Body: CLIPPER WATERWAY
Water Front Features: Gulf Access, Canal Access
Driving Directions
FROM US-41S: Head east on US-41S/S Tamiami Tr. Turn right onto Port Charlotte Blvd. At the traffic circle, take the 3rd exit onto Edgewater Dr. Turn right onto Harbor Blvd. Turn left onto Leland St SE. Property is near to end on the left. FROM I-75S: Head east on I-75S. Take Exit 167 towards Port Charlotte/Charlotte Harbor. Merge onto Harborview Rd. Continue onto Edgewater Dr. Turn left onto Harbor Blvd. Turn left onto Leland St SE. Property is near the end on the left.
Financial Considerations
Terms: Cash,Conventional,FHA,VA Loan
Tax/Property ID: 402227328002
Tax Amount: 6481.76
Tax Year: 2024
A broker reciprocity listing courtesy: ERA ADVANTAGE REALTY, INC.
Based on information provided by Stellar MLS as distributed by the MLS GRID. Information from the Internet Data Exchange is provided exclusively for consumers’ personal, non-commercial use, and such information may not be used for any purpose other than to identify prospective properties consumers may be interested in purchasing. This data is deemed reliable but is not guaranteed to be accurate by Edina Realty, Inc., or by the MLS. Edina Realty, Inc., is not a multiple listing service (MLS), nor does it offer MLS access.
Copyright 2025 Stellar MLS as distributed by the MLS GRID. All Rights Reserved.
Payment Calculator
Interest rate and annual percentage rate (APR) are based on current market conditions, are for informational purposes only, are subject to change without notice and may be subject to pricing add-ons related to property type, loan amount, loan-to-value, credit score and other variables. Estimated closing costs used in the APR calculation are assumed to be paid by the borrower at closing. If the closing costs are financed, the loan, APR and payment amounts will be higher. If the down payment is less than 20%, mortgage insurance may be required and could increase the monthly payment and APR. Contact us for details. Additional loan programs may be available. Accuracy is not guaranteed, and all products may not be available in all borrower's geographical areas and are based on their individual situation. This is not a credit decision or a commitment to lend.
Sales History & Tax Summary for 138 Leland Street SE
Sales History
| Date | Price | Change |
|---|---|---|
| Currently not available. | ||
Tax Summary
| Tax Year | Estimated Market Value | Total Tax |
|---|---|---|
| Currently not available. | ||
Data powered by ATTOM Data Solutions. Copyright© 2025. Information deemed reliable but not guaranteed.
Schools
Schools nearby 138 Leland Street SE
| Schools in attendance boundaries | Grades | Distance | Rating |
|---|---|---|---|
| Loading... | |||
| Schools nearby | Grades | Distance | Rating |
|---|---|---|---|
| Loading... | |||
Data powered by ATTOM Data Solutions. Copyright© 2025. Information deemed reliable but not guaranteed.
The schools shown represent both the assigned schools and schools by distance based on local school and district attendance boundaries. Attendance boundaries change based on various factors and proximity does not guarantee enrollment eligibility. Please consult your real estate agent and/or the school district to confirm the schools this property is zoned to attend. Information is deemed reliable but not guaranteed.
SchoolDigger ® Rating
The SchoolDigger rating system is a 1-5 scale with 5 as the highest rating. SchoolDigger ranks schools based on test scores supplied by each state's Department of Education. They calculate an average standard score by normalizing and averaging each school's test scores across all tests and grades.
Coming soon properties will soon be on the market, but are not yet available for showings.