13806 San Juan Avenue Hudson, FL 34667
For Sale MLS# TB8430586
3 beds 2 baths 1,716 sq ft Single Family
Details for 13806 San Juan Avenue
MLS# TB8430586
Description for 13806 San Juan Avenue, Hudson, FL, 34667
MOTIVATED SELLER! HUGE PRICE DROP! Welcome to this beautifully updated 3-bedroom, 2-bathroom Hudson home, perfectly situated on a gulf access canal with stunning water views. Enjoy the peace of mind of a newer seawall and your very own private dock, making it ideal for boating, fishing, or simply soaking in the Florida lifestyle. Comes Furnished or Unfurnished with a huge Swim Spa! Inside, the home boasts newly renovated bathrooms and upgraded flooring throughout, creating a modern and comfortable living space. The indoor laundry room adds convenience, while the open layout makes entertaining a breeze. Step outside and embrace waterfront living at its finest—whether you’re heading out to the Gulf for the day or relaxing at sunset, this home offers the perfect balance of comfort and coastal charm. Don’t miss the chance to own your slice of paradise in Hudson!
Listing Information
Property Type: Residential, Single Family Residence
Status: Active
Bedrooms: 3
Bathrooms: 2
Lot Size: 0.13 Acres
Square Feet: 1,716 sq ft
Year Built: 1960
Stories: 1 Story
Construction: Block
Subdivision: Hudson Beach Estates
Foundation: Slab
County: Pasco
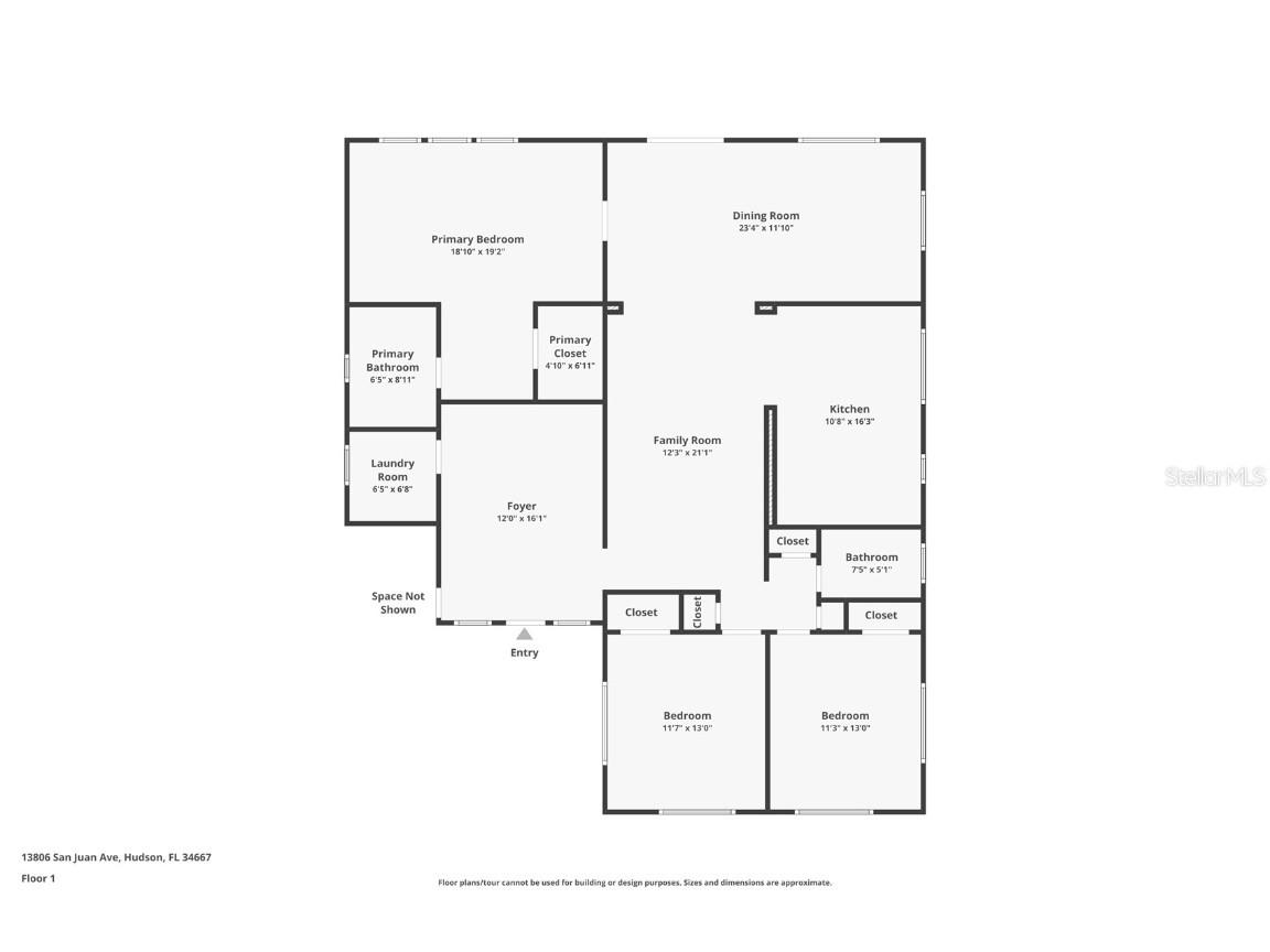
Room Information
Main Floor
Bedroom 3: 13x12
Bedroom 2: 13x12
Primary Bedroom: 19x18
Kitchen: 16x10
Dining Room: 11x23
Living Room: 21x12
Bathrooms
Full Baths: 2
Additonal Room Information
Laundry: Inside
Interior Features
Appliances: Built-In Oven, Cooktop, Dishwasher, Disposal, Microwave, Refrigerator
Flooring: Ceramic Tile,Luxury Vinyl
Additional Interior Features: Ceiling Fan(s)
Utilities
Water: Public
Sewer: Public Sewer
Other Utilities: Cable Connected,Electricity Connected,Sewer Connected
Cooling: Central Air, Ceiling Fan(s)
Heating: Central
Exterior / Lot Features
Roof: Membrane
Pool: Heated, Above Ground
Lot View: Canal,Water
Waterfront Details
Water Front Features: Canal Access
Community Features
Community Features: Sidewalks
Driving Directions
Right on San Juan
Financial Considerations
Terms: Cash,Conventional,FHA,VA Loan
Tax/Property ID: 16-24-33-004.0-00B.00-006.0
Tax Amount: 4817
Tax Year: 2024
A broker reciprocity listing courtesy: FUTURE HOME REALTY INC
Based on information provided by Stellar MLS as distributed by the MLS GRID. Information from the Internet Data Exchange is provided exclusively for consumers’ personal, non-commercial use, and such information may not be used for any purpose other than to identify prospective properties consumers may be interested in purchasing. This data is deemed reliable but is not guaranteed to be accurate by Edina Realty, Inc., or by the MLS. Edina Realty, Inc., is not a multiple listing service (MLS), nor does it offer MLS access.
Copyright 2025 Stellar MLS as distributed by the MLS GRID. All Rights Reserved.
Payment Calculator
Interest rate and annual percentage rate (APR) are based on current market conditions, are for informational purposes only, are subject to change without notice and may be subject to pricing add-ons related to property type, loan amount, loan-to-value, credit score and other variables. Estimated closing costs used in the APR calculation are assumed to be paid by the borrower at closing. If the closing costs are financed, the loan, APR and payment amounts will be higher. If the down payment is less than 20%, mortgage insurance may be required and could increase the monthly payment and APR. Contact us for details. Additional loan programs may be available. Accuracy is not guaranteed, and all products may not be available in all borrower's geographical areas and are based on their individual situation. This is not a credit decision or a commitment to lend.
Sales History & Tax Summary for 13806 San Juan Avenue
Sales History
| Date | Price | Change |
|---|---|---|
| Currently not available. | ||
Tax Summary
| Tax Year | Estimated Market Value | Total Tax |
|---|---|---|
| Currently not available. | ||
Data powered by ATTOM Data Solutions. Copyright© 2025. Information deemed reliable but not guaranteed.
Schools
Schools nearby 13806 San Juan Avenue
| Schools in attendance boundaries | Grades | Distance | Rating |
|---|---|---|---|
| Loading... | |||
| Schools nearby | Grades | Distance | Rating |
|---|---|---|---|
| Loading... | |||
Data powered by ATTOM Data Solutions. Copyright© 2025. Information deemed reliable but not guaranteed.
The schools shown represent both the assigned schools and schools by distance based on local school and district attendance boundaries. Attendance boundaries change based on various factors and proximity does not guarantee enrollment eligibility. Please consult your real estate agent and/or the school district to confirm the schools this property is zoned to attend. Information is deemed reliable but not guaranteed.
SchoolDigger ® Rating
The SchoolDigger rating system is a 1-5 scale with 5 as the highest rating. SchoolDigger ranks schools based on test scores supplied by each state's Department of Education. They calculate an average standard score by normalizing and averaging each school's test scores across all tests and grades.
Coming soon properties will soon be on the market, but are not yet available for showings.