13890 Kingfisher Glen Drive Lithia, FL 33547
For Sale MLS# TB8415702
2 beds 2 baths 1,612 sq ft Single Family
Details for 13890 Kingfisher Glen Drive
MLS# TB8415702
Description for 13890 Kingfisher Glen Drive, Lithia, FL, 33547
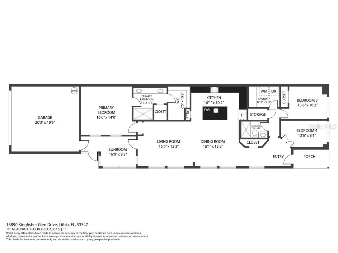
One or more photo(s) has been virtually staged. ***PRICE REDUCTION*** Welcome home to easy living and lasting comfort in Fishhawk’s gated Encore 55+ community by David Weekley Homes. This beautifully designed single-story villa combines thoughtful upgrades, open spaces, and a low-maintenance lifestyle. Sun-filled interiors with high ceilings and recessed lighting flow into a den with French doors and an open layout that connects the kitchen, dining, and family room. The gourmet kitchen features a large prep island with seating, a spacious pantry, 42-inch wood cabinets with soft-close drawers, granite countertops, stainless steel appliances, a gas range, and under-cabinet lighting. The primary suite offers a tray ceiling, dual vanities with granite tops, a walk-in shower, and an expansive closet. The split plan provides privacy, with a comfortable guest bedroom and full bath nearby. A large laundry room with LG washer and dryer, folding counter, and storage adds convenience. Freshly painted and landscaped, this home includes brick-paver walkways, smart lighting controls, designer fixtures, crown molding, new carpet, luxury vinyl plank flooring, and Sunburst Plantation Shutters. The fenced yard with mature landscaping is perfect for pets, and the screened patio connects to a two-car garage with built-in pest control and irrigation. HOA covers lawn care and exterior maintenance for worry-free living. Encore residents enjoy a full social calendar led by a Lifestyle Director and access to the Oasis Club’s many amenities—heated infinity pool, pickleball and bocce courts, BBQ patio, and more—creating a vibrant, connected way of life.
Listing Information
Property Type: Residential, Villa
Status: Active
Bedrooms: 2
Bathrooms: 2
Lot Size: 0.08 Acres
Square Feet: 1,612 sq ft
Year Built: 2020
Garage: Yes
Stories: 1 Story
Construction: Block
Subdivision: Fishhawk Ranch West Ph 3a
Foundation: Slab
County: Hillsborough
Room Information
Main Floor
Primary Bedroom:
Living Room:
Kitchen:
Bathrooms
Full Baths: 2
Additonal Room Information
Laundry: Inside, Laundry Room
Interior Features
Appliances: Electric Water Heater, Washer, Range, Refrigerator, Microwave, Dishwasher, Disposal, Dryer
Flooring: Carpet,Laminate,Tile
Doors/Windows: Shutters
Additional Interior Features: Eat-In Kitchen, Walk-In Closet(s), Ceiling Fan(s), High Ceilings, Main Level Primary, Open Floorplan, Coffered Ceiling(s), Kitchen/Family Room Combo, Solid Surface Counters, Stone Counters
Utilities
Water: Public
Sewer: Public Sewer
Other Utilities: Electricity Connected,Municipal Utilities,Sewer Connected,Underground Utilities,Water Connected
Cooling: Ceiling Fan(s), Central Air
Heating: Central, Electric
Exterior / Lot Features
Attached Garage: Attached Garage
Garage Spaces: 2
Parking Description: driveway, Garage, Covered, Garage Door Opener
Roof: Shingle
Pool: Association, Community
Lot View: Garden
Additional Exterior/Lot Features: Rain Gutters, Sprinkler/Irrigation, Lighting, Front Porch, Covered, Patio, Screened, Landscaped, Buyer Approval Required
Community Features
Community Features: Gated, Fitness, Pool, Clubhouse, Street Lights, Sidewalks
Security Features: Gated Community, Gated with Guard, Secured Garage/Parking
Association Amenities: Pool, Recreation Facilities, Basketball Court, Fitness Center, Clubhouse, Pickleball, Gated, Spa/Hot Tub
HOA Dues Include: Maintenance Grounds, Common Areas, Pool(s), Recreation Facilities, Taxes
Homeowners Association: Yes
HOA Dues: $541 / Monthly
Driving Directions
From I-75, exit 250 (Gibsonton-Riverview) and travel east approximately six miles on Gibsonton Drive/Boyette Road. Take a right onto Circa FishHawk Boulevard. At the roundabout, turn right onto Village Center Drive and then take a right on Watercolor Drive. The entrance to Encore at FIshHawk Ranch is on the left.
Financial Considerations
Terms: Cash,Conventional,FHA,VA Loan
Tax/Property ID: U-25-30-20-B6J-000070-0014A.0
Tax Amount: 6512.83
Tax Year: 2024
A broker reciprocity listing courtesy: REDFIN CORPORATION
Based on information provided by Stellar MLS as distributed by the MLS GRID. Information from the Internet Data Exchange is provided exclusively for consumers’ personal, non-commercial use, and such information may not be used for any purpose other than to identify prospective properties consumers may be interested in purchasing. This data is deemed reliable but is not guaranteed to be accurate by Edina Realty, Inc., or by the MLS. Edina Realty, Inc., is not a multiple listing service (MLS), nor does it offer MLS access.
Copyright 2025 Stellar MLS as distributed by the MLS GRID. All Rights Reserved.
Payment Calculator
Interest rate and annual percentage rate (APR) are based on current market conditions, are for informational purposes only, are subject to change without notice and may be subject to pricing add-ons related to property type, loan amount, loan-to-value, credit score and other variables. Estimated closing costs used in the APR calculation are assumed to be paid by the borrower at closing. If the closing costs are financed, the loan, APR and payment amounts will be higher. If the down payment is less than 20%, mortgage insurance may be required and could increase the monthly payment and APR. Contact us for details. Additional loan programs may be available. Accuracy is not guaranteed, and all products may not be available in all borrower's geographical areas and are based on their individual situation. This is not a credit decision or a commitment to lend.
Sales History & Tax Summary for 13890 Kingfisher Glen Drive
Sales History
| Date | Price | Change |
|---|---|---|
| Currently not available. | ||
Tax Summary
| Tax Year | Estimated Market Value | Total Tax |
|---|---|---|
| Currently not available. | ||
Data powered by ATTOM Data Solutions. Copyright© 2025. Information deemed reliable but not guaranteed.
Schools
Schools nearby 13890 Kingfisher Glen Drive
| Schools in attendance boundaries | Grades | Distance | Rating |
|---|---|---|---|
| Loading... | |||
| Schools nearby | Grades | Distance | Rating |
|---|---|---|---|
| Loading... | |||
Data powered by ATTOM Data Solutions. Copyright© 2025. Information deemed reliable but not guaranteed.
The schools shown represent both the assigned schools and schools by distance based on local school and district attendance boundaries. Attendance boundaries change based on various factors and proximity does not guarantee enrollment eligibility. Please consult your real estate agent and/or the school district to confirm the schools this property is zoned to attend. Information is deemed reliable but not guaranteed.
SchoolDigger ® Rating
The SchoolDigger rating system is a 1-5 scale with 5 as the highest rating. SchoolDigger ranks schools based on test scores supplied by each state's Department of Education. They calculate an average standard score by normalizing and averaging each school's test scores across all tests and grades.
Coming soon properties will soon be on the market, but are not yet available for showings.