$449,000
Off-Market Date: 02/04/2026139 18th Street NE Naples, FL 34120
Pending MLS# 226000625
4 beds 2 baths 1,445 sq ft Single Family
Details for 139 18th Street NE
MLS# 226000625
Description for 139 18th Street NE, Naples, FL, 34120
Wow, what you want & have been looking for. Multi-generational 4-bedroom home. All the upgrades you hoped for at a great price. Impact windows & doors and a newer roof, no flood zone for great insurance policy quotes. Brand new 2026 luxury vinyl flooring, brand new 2026 quartz counter, reverse osmosis, renovated baths, and kitchen. Newer appliances. Extended paver driveway with turnaround and extra spots. Pavers on lanai. Mature trees and cleared acreage. Extra storage building on a concrete pad, water treatment building. Take a peek before I’m gone.
Listing Information
Property Type: Residential, Single Family Residence
Status: Pending-Financing
Bedrooms: 4
Bathrooms: 2
Lot Size: 1.14 Acres
Square Feet: 1,445 sq ft
Year Built: 1990
Stories: 1 Story
Construction: Block,Concrete,Stucco
Subdivision: Golden Gate Estates
Furnished: Yes
County: Collier
Days On Market: 7
Construction Status: Resale
School Information
Elementary: Palmetto Elementary
Middle: Cypress Palm Middle
High: Gulf Coast High
Room Information
Bathrooms
Full Baths: 2
Additonal Room Information
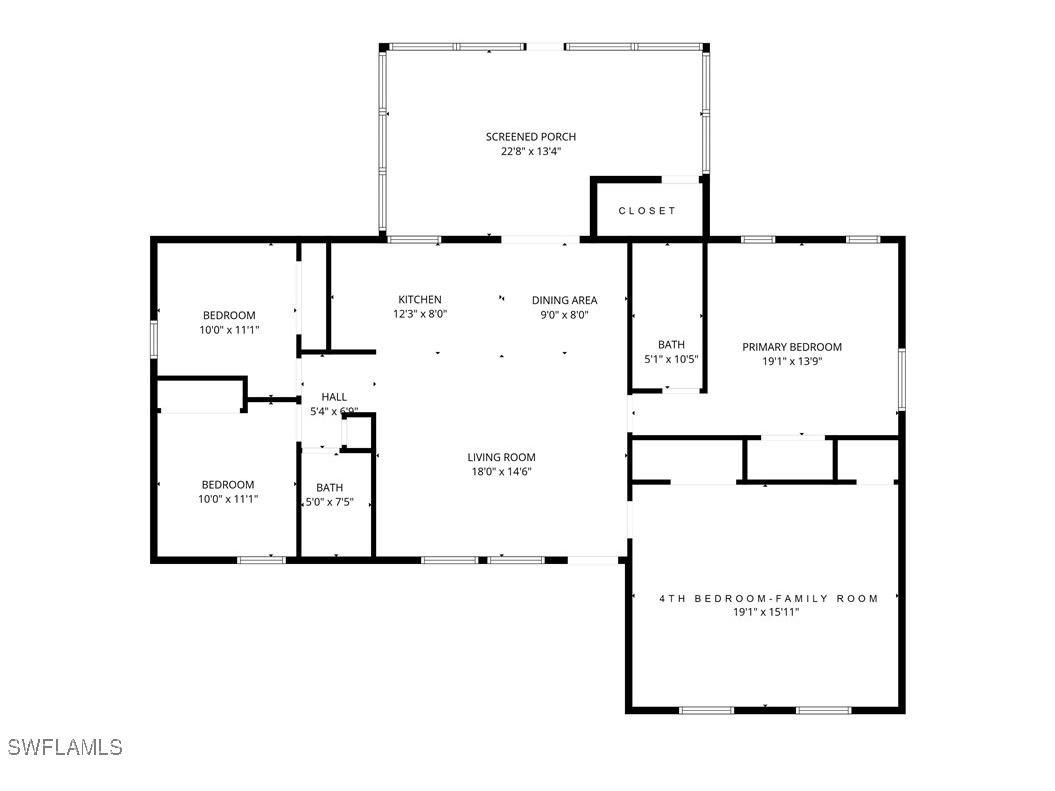
Other: Screened Porch (22.8x13.4), Kitchen (12.3x8), Living Room (18x14.6), Primary Bedroom (19.1x13.9), Bedroom (10x11.1), Bedroom (10x11.1), Family Room (19.1x15.11), Dining Room (9x8)
Laundry: Inside
Interior Features
Appliances: Self Cleaning Oven, Water Purifier, RefrigeratorWithIce Maker, Ice Maker, Dishwasher, Disposal, Dryer, Microwave, Range, Refrigerator, Washer
Flooring: Carpet,Tile,Vinyl
Doors/Windows: Window Coverings, Single Hung, Impact Glass
Additional Interior Features: Breakfast Bar, French Door(s)/Atrium Door(s), Window Treatments, High Speed Internet, Cable TV, Vaulted Ceiling(s), Main Level Primary, Living/Dining Room, Separate Shower, Shower Only
Utilities
Water: Well
Sewer: Septic Tank
Other Utilities: Cable Available,High Speed Internet Available
Cooling: Electric, Ceiling Fan(s), Central Air
Heating: Central, Electric
Exterior / Lot Features
Parking Description: Two Spaces, driveway, RV Access/Parking, Paved
Roof: Shingle
Lot View: Landscaped,Preserve
Lot Dimensions: 75 x 660 x 75 x 660
Additional Exterior/Lot Features: Room For Pool, Security/High Impact Doors, Storage, Screened, Porch, Lanai, Cul-de-Sac, Dead End
Out Buildings: Outbuilding
Community Features
Security Features: Smoke Detector(s)
Association Amenities: Other, Guest Suites, Storage, RV/Boat Storage
Driving Directions
From Collier Blvd heading South, turn left onto Golden Gate Blvd. Turn onto 18th St NE. 139 18th St NE will be on the left.
Financial Considerations
Terms: All Financing Considered,Cash
Tax/Property ID: 39323680000
Tax Amount: 1505.68
Tax Year: 2025
A broker reciprocity listing courtesy: Downing Frye Realty Inc.
Based on information provided by FGCMLS. Internet Data Exchange information is provided exclusively for consumers’ personal, non-commercial use, and such information may not be used for any purpose other than to identify prospective properties consumers may be interested in purchasing. This data is deemed reliable but is not guaranteed to be accurate by Edina Realty, Inc., or by the MLS. Edina Realty, Inc., is not a multiple listing service (MLS), nor does it offer MLS access.
Copyright 2026 FGCMLS. All Rights Reserved.
Sales History & Tax Summary for 139 18th Street NE
Sales History
| Date | Price | |
|---|---|---|
| Currently not available. | ||
Tax Summary
| Tax Year | Estimated Market Value | Total Tax |
|---|---|---|
| Currently not available. | ||
Data powered by ATTOM Data Solutions. Copyright© 2026. Information deemed reliable but not guaranteed.
Schools
Schools nearby 139 18th Street NE
| Schools in attendance boundaries | Grades | Distance | Rating |
|---|---|---|---|
| Loading... | |||
| Schools nearby | Grades | Distance | Rating |
|---|---|---|---|
| Loading... | |||
Data powered by ATTOM Data Solutions. Copyright© 2026. Information deemed reliable but not guaranteed.
The schools shown represent both the assigned schools and schools by distance based on local school and district attendance boundaries. Attendance boundaries change based on various factors and proximity does not guarantee enrollment eligibility. Please consult your real estate agent and/or the school district to confirm the schools this property is zoned to attend. Information is deemed reliable but not guaranteed.
SchoolDigger ® Rating
The SchoolDigger rating system is a 1-5 scale with 5 as the highest rating. SchoolDigger ranks schools based on test scores supplied by each state's Department of Education. They calculate an average standard score by normalizing and averaging each school's test scores across all tests and grades.
Coming soon properties will soon be on the market, but are not yet available for showings.