$204,900
Off-Market Date: 03/07/202613907 NE 180th Street Waldo, FL 32694
Pending MLS# GC537345
4 beds 2 baths 1,560 sq ft Single Family
Details for 13907 NE 180th Street
MLS# GC537345
Description for 13907 NE 180th Street, Waldo, FL, 32694
Under contract-accepting backup offers. Recently renovated mobil home on Almost an Acre close to Gainesville in Waldo. This home is well updated. Featuring Newly Updated Kitchen, Brand New Cabinets, Countertops, Hardware, Ceiling Fans, Paint, New Vanities and Toilet's in the Bathroom. The flooring is brand new Luxury Vinyl Plank Flooring throughout. The home is light and bright with curtains throughout. Located on a quiet paved street this home is exactly what you are looking for. There is a stunning Farm House kitchen, Large Family Room, and Open Layout. Brand New Stainless Steel Appliances with Refrigerator. The long driveway gives you plenty of parking. There is NO HOA. Enjoy the good life and come tour this property today.
Listing Information
Property Type: Residential, Manufactured Home
Status: Pending
Bedrooms: 4
Bathrooms: 2
Lot Size: 0.99 Acres
Square Feet: 1,560 sq ft
Year Built: 2002
Stories: 1 Story
Construction: Vinyl Siding
Subdivision: Lake Alto Estates Add 1
Foundation: Crawlspace
County: Alachua
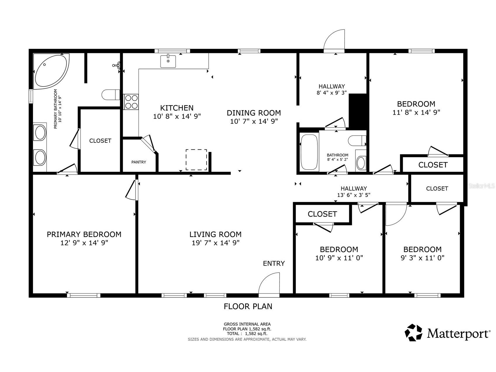
Room Information
Main Floor
Bedroom 4:
Foyer:
Bathroom 2:
Bathroom 2:
Bathroom 3:
Bedroom 2:
Primary Bathroom:
Primary Bedroom:
Living Room:
Kitchen:
Bathrooms
Full Baths: 2
Additonal Room Information
Laundry: Laundry Room
Interior Features
Appliances: Dishwasher, Microwave, Range, Refrigerator
Flooring: Vinyl
Basement: Crawl Space
Doors/Windows: Window Treatments
Additional Interior Features: Window Treatments, Open Floorplan, Solid Surface Counters, Ceiling Fan(s)
Utilities
Water: Well
Sewer: Septic Tank
Other Utilities: Municipal Utilities
Cooling: Ceiling Fan(s), Central Air
Heating: Heat Pump
Exterior / Lot Features
Roof: Shingle
Additional Exterior/Lot Features: Lighting
Driving Directions
From Gainesville get on 39th Ave heading towards Waldo Road. Take a left on NE Waldo Road Highway 24 go straight for 12 miles then take a right on Cole street and go 10 miles take a right on 301 then go 2.4 miles and take a left on NE 114th Ave, then take a left onto County Road 1469 go 600 feet then take a left on NE 136th Ave then take a right on NE 181st Street. Property will be on your right.
Financial Considerations
Tax/Property ID: 18378-003-022
Tax Amount: 1003.66
Tax Year: 2025
A broker reciprocity listing courtesy: THURMOND REALTY LLC
Based on information provided by Stellar MLS as distributed by the MLS GRID. Information from the Internet Data Exchange is provided exclusively for consumers’ personal, non-commercial use, and such information may not be used for any purpose other than to identify prospective properties consumers may be interested in purchasing. This data is deemed reliable but is not guaranteed to be accurate by Edina Realty, Inc., or by the MLS. Edina Realty, Inc., is not a multiple listing service (MLS), nor does it offer MLS access.
Copyright 2026 Stellar MLS as distributed by the MLS GRID. All Rights Reserved.
Sales History & Tax Summary for 13907 NE 180th Street
Sales History
| Date | Price | |
|---|---|---|
| Currently not available. | ||
Tax Summary
| Tax Year | Estimated Market Value | Total Tax |
|---|---|---|
| Currently not available. | ||
Data powered by ATTOM Data Solutions. Copyright© 2026. Information deemed reliable but not guaranteed.
Schools
Schools nearby 13907 NE 180th Street
| Schools in attendance boundaries | Grades | Distance | Rating |
|---|---|---|---|
| Loading... | |||
| Schools nearby | Grades | Distance | Rating |
|---|---|---|---|
| Loading... | |||
Data powered by ATTOM Data Solutions. Copyright© 2026. Information deemed reliable but not guaranteed.
The schools shown represent both the assigned schools and schools by distance based on local school and district attendance boundaries. Attendance boundaries change based on various factors and proximity does not guarantee enrollment eligibility. Please consult your real estate agent and/or the school district to confirm the schools this property is zoned to attend. Information is deemed reliable but not guaranteed.
SchoolDigger ® Rating
The SchoolDigger rating system is a 1-5 scale with 5 as the highest rating. SchoolDigger ranks schools based on test scores supplied by each state's Department of Education. They calculate an average standard score by normalizing and averaging each school's test scores across all tests and grades.
Coming soon properties will soon be on the market, but are not yet available for showings.