13921 Felix Will Road Riverview, FL 33579
For Sale MLS# TB8416105
5 beds 3 baths 3,510 sq ft Single Family
Details for 13921 Felix Will Road
MLS# TB8416105
Description for 13921 Felix Will Road, Riverview, FL, 33579
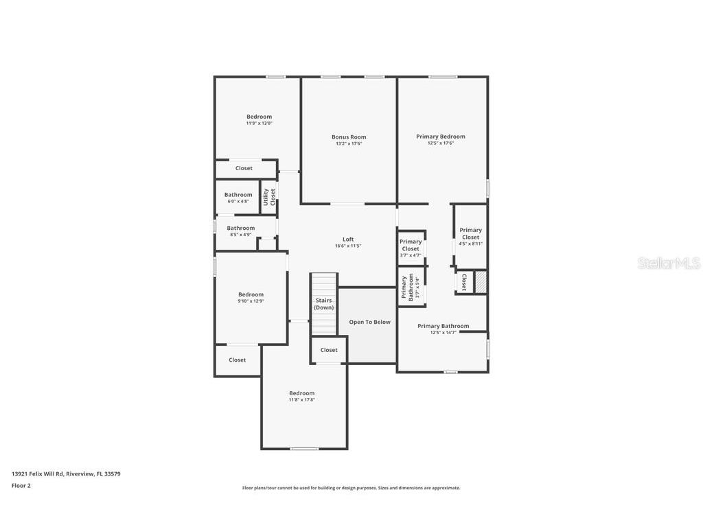
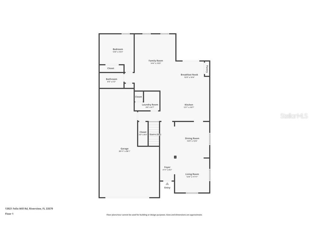
This expansive two-story residence spans an impressive 3,510 square feet, offering a thoughtfully designed layout that combines elegance and functionality. The home features five generously sized bedrooms, three well-appointed bathrooms, and a versatile bonus room and 3 car garage, providing ample space for relaxation and entertainment. The strategic floor plan situates 4 of the 5 bedrooms on the upper level, while the main living areas are conveniently located on the ground floor along with the 5th bedroom. This ensures privacy and ease of access. The spacious kitchen and breakfast nook are designed to maximize comfort and practicality. Adding a picturesque view of the fully paved patio and the fenced backyard. Just installed luxury laminate plank flooring with 5 year warranty. Gutters on the entire home. This seamless integration of indoor and outdoor living spaces creates an inviting atmosphere for gatherings and everyday enjoyment. In addition to its main living areas, the property includes a three-car garage, a screened-in lanai, and a family room, ensuring ample space for work, leisure, and storage. Community amenities further enhance the appeal of this home, with a clubhouse, pool, playground, and basketball courts available for recreation and social activities. Strategically located off 301 near I-75, this residence offers easy access to Tampa, the area’s beautiful beaches, shopping, hospital and MacDill Air Force Base, making it an excellent choice for commuters and families alike. To experience the exceptional features and lifestyle this home provides, contact us today to schedule your showing!
Listing Information
Property Type: Residential, Single Family Residence
Status: Active
Bedrooms: 5
Bathrooms: 3
Lot Size: 0.16 Acres
Square Feet: 3,510 sq ft
Year Built: 2016
Garage: Yes
Stories: 2 Story
Construction: Stucco
Subdivision: South Fork Tr N
Foundation: Block
County: Hillsborough
School Information
Elementary: Summerfield Crossing Elementary
Middle: Eisenhower-Hb
High: Sumner High School
Room Information
Main Floor
Kitchen: 10x13
Living Room: 19x14
Dining Room: 12x12
Upper Floor
Primary Bedroom: 18x13
Bathrooms
Full Baths: 3
Additonal Room Information
Laundry: Laundry Room
Interior Features
Appliances: Dishwasher, Disposal, Microwave, Range, Refrigerator
Flooring: Ceramic Tile,Laminate
Additional Interior Features: Ceiling Fan(s), High Ceilings, Open Floorplan, Solid Surface Counters
Utilities
Water: Public
Sewer: Public Sewer
Other Utilities: Electricity Connected,High Speed Internet Available,Sewer Connected,Water Connected
Cooling: Central Air, Ceiling Fan(s)
Heating: Central
Exterior / Lot Features
Attached Garage: Attached Garage
Garage Spaces: 3
Roof: Shingle
Lot Dimensions: 64.16x111.1
Additional Exterior/Lot Features: Storm/Security Shutters
Community Features
Community Features: Sidewalks
Homeowners Association: Yes
HOA Dues: $150 / Annually
Driving Directions
I-75 South or North to Exit 246 for Big Bend Road (CR 672)then east on Big Bend Rd Turn right onto Balm Riverview Rd turn left to Ambleside Blvd Turn right onto Clement Pride Blvd Turn left onto Felix Will Rd
Financial Considerations
Terms: Cash,Conventional,FHA,VA Loan
Tax/Property ID: U-16-31-20-9Y5-000000-00097.0
Tax Amount: 7819.19
Tax Year: 2024
A broker reciprocity listing courtesy: 27NORTH REALTY
Based on information provided by Stellar MLS as distributed by the MLS GRID. Information from the Internet Data Exchange is provided exclusively for consumers’ personal, non-commercial use, and such information may not be used for any purpose other than to identify prospective properties consumers may be interested in purchasing. This data is deemed reliable but is not guaranteed to be accurate by Edina Realty, Inc., or by the MLS. Edina Realty, Inc., is not a multiple listing service (MLS), nor does it offer MLS access.
Copyright 2026 Stellar MLS as distributed by the MLS GRID. All Rights Reserved.
Payment Calculator
Interest rate and annual percentage rate (APR) are based on current market conditions, are for informational purposes only, are subject to change without notice and may be subject to pricing add-ons related to property type, loan amount, loan-to-value, credit score and other variables. Estimated closing costs used in the APR calculation are assumed to be paid by the borrower at closing. If the closing costs are financed, the loan, APR and payment amounts will be higher. If the down payment is less than 20%, mortgage insurance may be required and could increase the monthly payment and APR. Contact us for details. Additional loan programs may be available. Accuracy is not guaranteed, and all products may not be available in all borrower's geographical areas and are based on their individual situation. This is not a credit decision or a commitment to lend.
Sales History & Tax Summary for 13921 Felix Will Road
Sales History
| Date | Price | |
|---|---|---|
| Currently not available. | ||
Tax Summary
| Tax Year | Estimated Market Value | Total Tax |
|---|---|---|
| Currently not available. | ||
Data powered by ATTOM Data Solutions. Copyright© 2026. Information deemed reliable but not guaranteed.
Schools
Schools nearby 13921 Felix Will Road
| Schools in attendance boundaries | Grades | Distance | Rating |
|---|---|---|---|
| Loading... | |||
| Schools nearby | Grades | Distance | Rating |
|---|---|---|---|
| Loading... | |||
Data powered by ATTOM Data Solutions. Copyright© 2026. Information deemed reliable but not guaranteed.
The schools shown represent both the assigned schools and schools by distance based on local school and district attendance boundaries. Attendance boundaries change based on various factors and proximity does not guarantee enrollment eligibility. Please consult your real estate agent and/or the school district to confirm the schools this property is zoned to attend. Information is deemed reliable but not guaranteed.
SchoolDigger ® Rating
The SchoolDigger rating system is a 1-5 scale with 5 as the highest rating. SchoolDigger ranks schools based on test scores supplied by each state's Department of Education. They calculate an average standard score by normalizing and averaging each school's test scores across all tests and grades.
Coming soon properties will soon be on the market, but are not yet available for showings.