1400 1st Avenue W #G1 Bradenton, FL 34205
For Sale MLS# TB8353931
2 beds 2 baths 1,280 sq ft Condo
Details for 1400 1st Avenue W #G1
MLS# TB8353931
Description for 1400 1st Avenue W #G1, Bradenton, FL, 34205
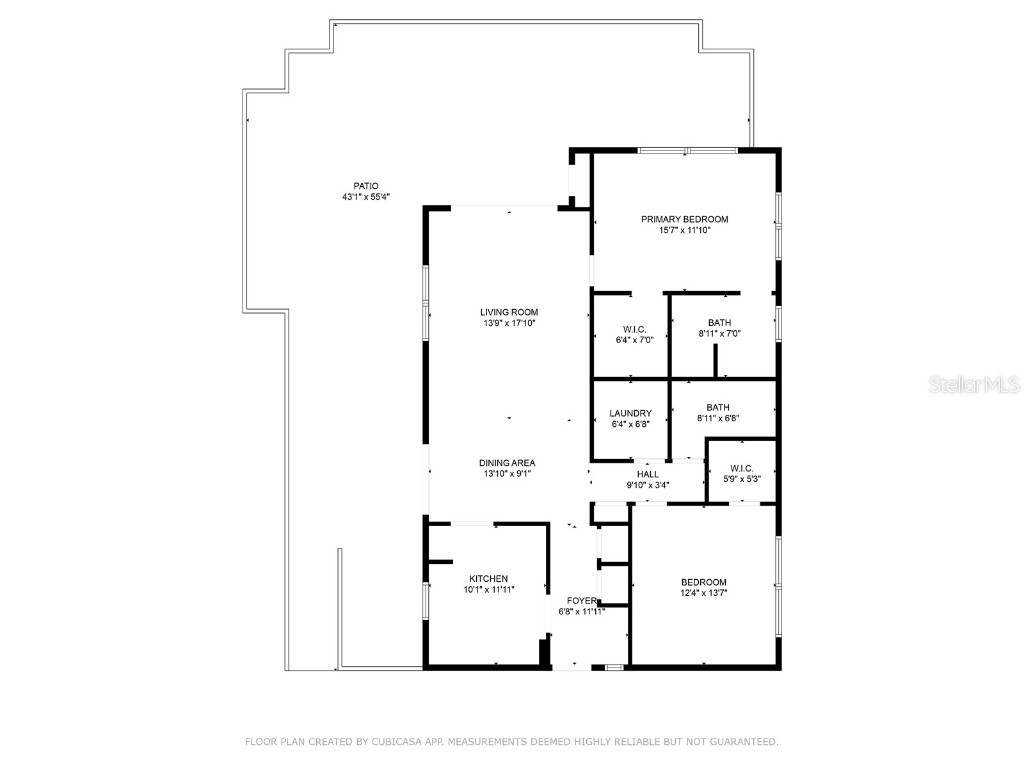
If you've ever wanted to live in a condo but can't give up your outdoor space - well this is the CONDO FOR YOU! NEARLY 800 SQ FT of private gated & walled outdoor corner patio with separate gated entrance. Welcome to RIVERVIEW condo - exactly as described this building is perfectly situated on the Manatee River overlooking the yacht basin in downtown Bradenton. The condo building is elevated and LOCATED OUT OF THE FLOOD ZONE - in ZONE X! Rarely offered, only 1 of 4 units in the building with a private gated large outdoor patio. Love to garden? This unit offers multiple planting beds on the patio to customize and enjoy. A foyer entry leads you into the unit where an open living floorplan includes the dining area and living room. Two sets of sliding doors and a wall of windows bring in lots of natural light. The kitchen was renovated in 2019 with white cabinetry, tiled backsplash and appliances. The two bedrooms are separated and both are spacious with walk in closets. An office is tucked into the hallway with built-in desk which can also be converted back to more storage within the unit. The windows in the main bedroom and living area were replaced with hurricane rated Simonton windows. Riverview condo is a 55+ / age restricted building with secure entry, a beautiful community room with a grand piano and gathering room with catering kitchen. The building did not sustain any damage from the 2024 storm season. No flooding, no wind damage nor water intrusion. The unit is being offered furnished, if desired. HVAC replaced 2024, water heater 2017. No pets allowed. Seller for assessments in full for a new elevator (not required for access to this unit), many building renovations recently completed and paid for. Ask for more information.
Listing Information
Property Type: Residential, Condominium
Status: Active
Bedrooms: 2
Bathrooms: 2
Lot Size: 0.98 Acres
Square Feet: 1,280 sq ft
Year Built: 1972
Stories: 1 Story
Construction: Block,Stucco
Subdivision: The Riverview
Foundation: Slab
County: Manatee
Room Information
Main Floor
Office:
Bedroom 2:
Primary Bedroom:
Kitchen:
Dining Room:
Living Room:
Bathrooms
Full Baths: 2
Additonal Room Information
Laundry: Common Area
Interior Features
Appliances: Electric Water Heater, Microwave, Range, Dishwasher
Flooring: Carpet,Laminate
Doors/Windows: Window Treatments, Shutters
Additional Interior Features: Ceiling Fan(s), Window Treatments, Walk-In Closet(s), Living/Dining Room
Utilities
Water: Public
Sewer: Public Sewer
Other Utilities: Cable Connected,Electricity Connected,Phone Available,Sewer Connected
Cooling: Ceiling Fan(s), Central Air
Heating: Central, Electric
Exterior / Lot Features
Parking Description: Open, Common
Roof: Built-Up
Fencing: Masonry
Additional Exterior/Lot Features: Courtyard, Patio, Wrap Around
Community Features
Community Features: Sidewalks, Clubhouse, Community Mailbox
Security Features: Lobby Secured, Key Card Entry
Association Amenities: Clubhouse, Cable TV, Elevator(s), Maintenance Grounds, Laundry
HOA Dues Include: Reserve Fund, Maintenance Structure, Maintenance Grounds, Sewer, Cable TV, Trash, Water
Driving Directions
Barcarrota Blvd is also known as 1st Av W. Unit is directly across from the library.
Financial Considerations
Terms: Cash,Conventional
Tax/Property ID: 3330110101
Tax Amount: 1085.48
Tax Year: 2024
A broker reciprocity listing courtesy: SMITH & ASSOCIATES REAL ESTATE
Based on information provided by Stellar MLS as distributed by the MLS GRID. Information from the Internet Data Exchange is provided exclusively for consumers’ personal, non-commercial use, and such information may not be used for any purpose other than to identify prospective properties consumers may be interested in purchasing. This data is deemed reliable but is not guaranteed to be accurate by Edina Realty, Inc., or by the MLS. Edina Realty, Inc., is not a multiple listing service (MLS), nor does it offer MLS access.
Copyright 2026 Stellar MLS as distributed by the MLS GRID. All Rights Reserved.
Payment Calculator
Interest rate and annual percentage rate (APR) are based on current market conditions, are for informational purposes only, are subject to change without notice and may be subject to pricing add-ons related to property type, loan amount, loan-to-value, credit score and other variables. Estimated closing costs used in the APR calculation are assumed to be paid by the borrower at closing. If the closing costs are financed, the loan, APR and payment amounts will be higher. If the down payment is less than 20%, mortgage insurance may be required and could increase the monthly payment and APR. Contact us for details. Additional loan programs may be available. Accuracy is not guaranteed, and all products may not be available in all borrower's geographical areas and are based on their individual situation. This is not a credit decision or a commitment to lend.
Sales History & Tax Summary for 1400 1st Avenue W #G1
Sales History
| Date | Price | |
|---|---|---|
| Currently not available. | ||
Tax Summary
| Tax Year | Estimated Market Value | Total Tax |
|---|---|---|
| Currently not available. | ||
Data powered by ATTOM Data Solutions. Copyright© 2026. Information deemed reliable but not guaranteed.
Schools
Schools nearby 1400 1st Avenue W #G1
| Schools in attendance boundaries | Grades | Distance | Rating |
|---|---|---|---|
| Loading... | |||
| Schools nearby | Grades | Distance | Rating |
|---|---|---|---|
| Loading... | |||
Data powered by ATTOM Data Solutions. Copyright© 2026. Information deemed reliable but not guaranteed.
The schools shown represent both the assigned schools and schools by distance based on local school and district attendance boundaries. Attendance boundaries change based on various factors and proximity does not guarantee enrollment eligibility. Please consult your real estate agent and/or the school district to confirm the schools this property is zoned to attend. Information is deemed reliable but not guaranteed.
SchoolDigger ® Rating
The SchoolDigger rating system is a 1-5 scale with 5 as the highest rating. SchoolDigger ranks schools based on test scores supplied by each state's Department of Education. They calculate an average standard score by normalizing and averaging each school's test scores across all tests and grades.
Coming soon properties will soon be on the market, but are not yet available for showings.