1400 Gulf Boulevard #804 Clearwater Beach, FL 33767
For Sale MLS# TB8384130
2 beds 2 baths 1,392 sq ft Condo
Details for 1400 Gulf Boulevard #804
MLS# TB8384130
Description for 1400 Gulf Boulevard #804, Clearwater Beach, FL, 33767
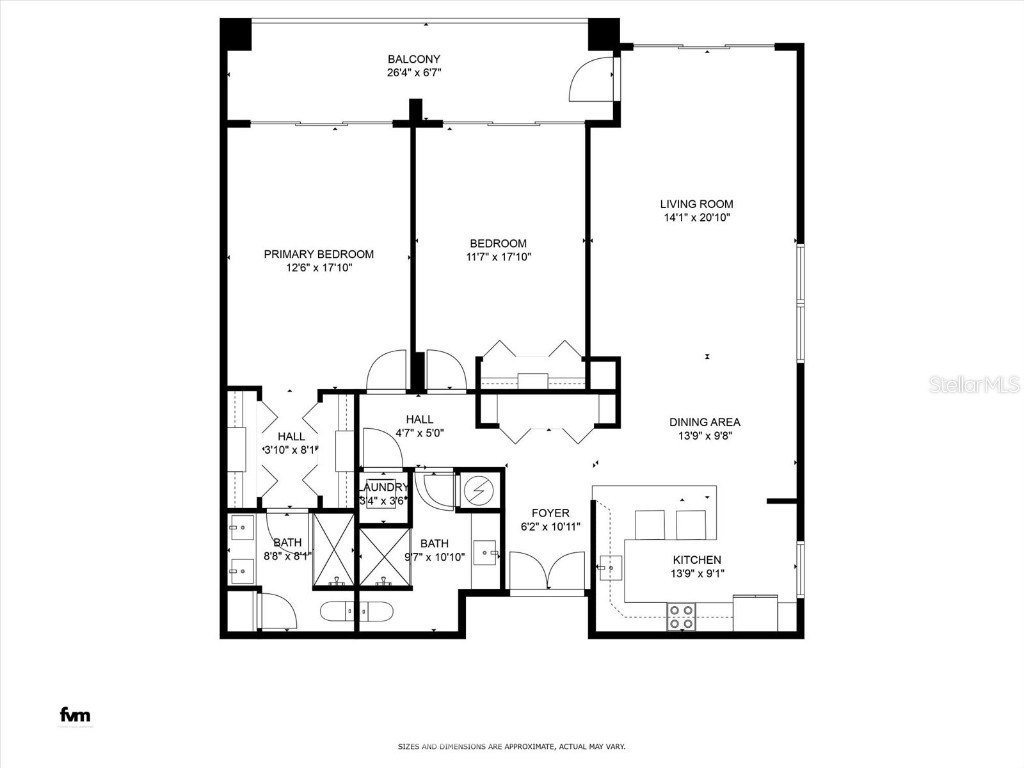
CORNER PENTHOUSE WITH AMAZING BAY & GULF VIEWS!!! This new custom design two bedroom, two bathroom condo has amazing views of the Intracoastal waterway & Gulf of Mexico. This condo sits along the white sand beaches of Sand Key. This unit is located on the top floor and offers an open floor plan. Once you enter, your eye catches the stunning porcelain flooring and custom baseboards that run throughout. This condo features ambient/atmospheric lighting to set the mood for entertaining. The open custom designed kitchen features top of the line Bosch appliances, Calacatta Cielo quartz counter with full backsplash, white shaker soft close cabinets with custom lighting. The bathrooms boast custom glass-enclosed showers with dual shower heads, lighted vanities, lighted mirrors, and a bidet. All rooms have sliding glass doors leading out to your balcony to relax while watching the sunsets over the water! This building is gated with a guard entry, and the actual building is secure with a keypad entry. The recreation room, lobby, and hallways have recently been updated. Additional features of this building are the heated pool that sits along the beach, a large Tiki Pavilion, along with Tiki's on the beach, and an outdoor grill area! This unit comes with an under-building parking space and storage locker. There is plenty of guest parking as well. Ride your bike or jump on a trolley to take you to Clearwater Beach and enjoy shopping, bars and restaurants, fishing charters, and water sports rentals. Become a member of the sailing center on Sand Key and sail into the sunset.
Listing Information
Property Type: Residential, Condominium
Status: Active
Bedrooms: 2
Bathrooms: 2
Lot Size: 0.07 Acres
Square Feet: 1,392 sq ft
Year Built: 1973
Stories: 1 Story
Construction: Block,Metal Frame,Concrete,Stucco
Subdivision: Sand Key Condo-South Beach 1
Foundation: Pillar/Post/Pier,Slab
County: Pinellas
Room Information
Main Floor
Primary Bedroom: 13x18
Living Room: 19x14
Kitchen: 7x14
Bathrooms
Full Baths: 2
Additonal Room Information
Laundry: Inside
Interior Features
Appliances: Washer, Microwave, Range, Refrigerator, Dishwasher, Disposal, Dryer, Ice Maker, Exhaust Fan, Wine Refrigerator
Flooring: Porcelain Tile
Additional Interior Features: Stone Counters, Open Floorplan
Utilities
Water: Public
Sewer: Public Sewer
Other Utilities: Cable Available,Electricity Available,Phone Available,Sewer Connected,Water Connected
Cooling: Central Air
Heating: Central
Exterior / Lot Features
Parking Description: Assigned, Covered
Roof: Built-Up
Pool: Community, In Ground, Association, Gunite, Solar Heat
Lot View: Bay,Beach,Intercoastal,Water
Additional Exterior/Lot Features: Sprinkler/Irrigation, Outdoor Shower, Lighting, Landscaped, Buyer Approval Required, Flood Zone
Out Buildings: Storage
Waterfront Details
Water Front Features: Beach Access
Community Features
Community Features: Fitness, Water Access, Pool, Sidewalks, Clubhouse, Waterfront, Gated
Security Features: Key Card Entry, Lobby Secured, Gated Community
Association Amenities: Pool, Elevator(s), Storage, Clubhouse, Security, Gated
HOA Dues Include: Insurance, Taxes, Cable TV, Internet, Reserve Fund, Common Areas, Pool(s)
Homeowners Association: Yes
HOA Dues: $1,148 / Monthly
Driving Directions
West Bay to North on Gulf Blvd to address.
Financial Considerations
Terms: Cash,Conventional
Tax/Property ID: 19-29-15-78638-000-8040
Tax Amount: 11455.19
Tax Year: 2024
A broker reciprocity listing courtesy: ENGEL & VOLKERS BELLEAIR
Based on information provided by Stellar MLS as distributed by the MLS GRID. Information from the Internet Data Exchange is provided exclusively for consumers’ personal, non-commercial use, and such information may not be used for any purpose other than to identify prospective properties consumers may be interested in purchasing. This data is deemed reliable but is not guaranteed to be accurate by Edina Realty, Inc., or by the MLS. Edina Realty, Inc., is not a multiple listing service (MLS), nor does it offer MLS access.
Copyright 2025 Stellar MLS as distributed by the MLS GRID. All Rights Reserved.
Payment Calculator
Interest rate and annual percentage rate (APR) are based on current market conditions, are for informational purposes only, are subject to change without notice and may be subject to pricing add-ons related to property type, loan amount, loan-to-value, credit score and other variables. Estimated closing costs used in the APR calculation are assumed to be paid by the borrower at closing. If the closing costs are financed, the loan, APR and payment amounts will be higher. If the down payment is less than 20%, mortgage insurance may be required and could increase the monthly payment and APR. Contact us for details. Additional loan programs may be available. Accuracy is not guaranteed, and all products may not be available in all borrower's geographical areas and are based on their individual situation. This is not a credit decision or a commitment to lend.
Sales History & Tax Summary for 1400 Gulf Boulevard #804
Sales History
| Date | Price | Change |
|---|---|---|
| Currently not available. | ||
Tax Summary
| Tax Year | Estimated Market Value | Total Tax |
|---|---|---|
| Currently not available. | ||
Data powered by ATTOM Data Solutions. Copyright© 2025. Information deemed reliable but not guaranteed.
Schools
Schools nearby 1400 Gulf Boulevard #804
| Schools in attendance boundaries | Grades | Distance | Rating |
|---|---|---|---|
| Loading... | |||
| Schools nearby | Grades | Distance | Rating |
|---|---|---|---|
| Loading... | |||
Data powered by ATTOM Data Solutions. Copyright© 2025. Information deemed reliable but not guaranteed.
The schools shown represent both the assigned schools and schools by distance based on local school and district attendance boundaries. Attendance boundaries change based on various factors and proximity does not guarantee enrollment eligibility. Please consult your real estate agent and/or the school district to confirm the schools this property is zoned to attend. Information is deemed reliable but not guaranteed.
SchoolDigger ® Rating
The SchoolDigger rating system is a 1-5 scale with 5 as the highest rating. SchoolDigger ranks schools based on test scores supplied by each state's Department of Education. They calculate an average standard score by normalizing and averaging each school's test scores across all tests and grades.
Coming soon properties will soon be on the market, but are not yet available for showings.