1406 Eden Drive Inverness, FL 34450
For Sale MLS# TB8370772
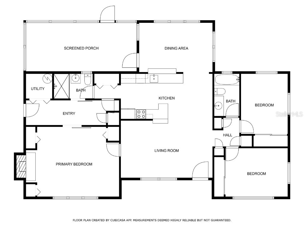
3 beds 2 baths 1,707 sq ft Single Family
Details for 1406 Eden Drive
MLS# TB8370772
Description for 1406 Eden Drive, Inverness, FL, 34450
Charming 3-Bedroom Home in the Heart of Inverness – 1406 Eden Dr - OUR PREFERRED LENDER WILL BUY DOWN BUYER’S INTEREST RATE AN ADDITIONAL 1 PCT FOR THE FIRST YEAR OF THE BUYER'S MORTGAGE! THIS WILL SAVE YOU THOUSANDS! - Welcome to your slice of Florida paradise! Nestled in a quiet, established neighborhood, this well maintained 3-bedroom, 2-bathroom home at 1406 Eden Dr offers comfort, convenience, and character all in one. Step inside to discover a warm and inviting layout featuring a spacious living area filled with natural light, perfect for both relaxing evenings and entertaining guests. The kitchen is well-equipped with ample counter space, a cozy breakfast nook, and views of the backyard—ideal for morning coffee or weekend brunches. The primary bedroom includes an en-suite bath and generous closet space, while two additional bedrooms offer flexibility for family, guests, or a home office. Both bathrooms have been tastefully updated for a fresh, modern feel. Outside, enjoy Florida living year-round with a large backyard surrounded by mature trees—perfect for barbecues, gardening, or simply unwinding. A covered patio area provides a shady retreat, and the attached garage offers extra storage or workspace potential. Located just minutes from downtown Inverness, you’ll be close to shopping, dining, parks, lakes, and the famous Withlacoochee State Trail for biking and outdoor adventures. Whether you're a first-time buyer, downsizing, or looking for your next family home, 1406 Eden Dr is ready to welcome you. Come see it today!
Listing Information
Property Type: Residential, Single Family Residence
Status: Active
Bedrooms: 3
Bathrooms: 2
Lot Size: 0.22 Acres
Square Feet: 1,707 sq ft
Year Built: 1973
Stories: 1 Story
Construction: Block,Stucco
Subdivision: Inverness Highlands South
Foundation: Slab
County: Citrus
Room Information
Main Floor
Bathroom 1:
Primary Bedroom:
Kitchen:
Living Room:
Bathrooms
Full Baths: 2
Interior Features
Appliances: Range, Refrigerator, Dishwasher, Microwave
Flooring: Vinyl
Fireplaces: Wood Burning
Additional Interior Features: Ceiling Fan(s)
Utilities
Water: Public
Sewer: Septic Tank
Other Utilities: Electricity Connected
Cooling: Central Air, Ceiling Fan(s)
Heating: Central
Exterior / Lot Features
Parking Description: driveway
Roof: Metal
Pool: In Ground
Additional Exterior/Lot Features: Lighting, Rain Gutters
Driving Directions
From Old Floral City Rd, drive West on Eden Dr. Home will be on your left.
Financial Considerations
Terms: Cash,Conventional
Tax/Property ID: 20E-19S-21-0020-02740-0590
Tax Amount: 4578
Tax Year: 2024
A broker reciprocity listing courtesy: NEXTHOME SOUTH POINTE
Based on information provided by Stellar MLS as distributed by the MLS GRID. Information from the Internet Data Exchange is provided exclusively for consumers’ personal, non-commercial use, and such information may not be used for any purpose other than to identify prospective properties consumers may be interested in purchasing. This data is deemed reliable but is not guaranteed to be accurate by Edina Realty, Inc., or by the MLS. Edina Realty, Inc., is not a multiple listing service (MLS), nor does it offer MLS access.
Copyright 2025 Stellar MLS as distributed by the MLS GRID. All Rights Reserved.
Payment Calculator
Interest rate and annual percentage rate (APR) are based on current market conditions, are for informational purposes only, are subject to change without notice and may be subject to pricing add-ons related to property type, loan amount, loan-to-value, credit score and other variables. Estimated closing costs used in the APR calculation are assumed to be paid by the borrower at closing. If the closing costs are financed, the loan, APR and payment amounts will be higher. If the down payment is less than 20%, mortgage insurance may be required and could increase the monthly payment and APR. Contact us for details. Additional loan programs may be available. Accuracy is not guaranteed, and all products may not be available in all borrower's geographical areas and are based on their individual situation. This is not a credit decision or a commitment to lend.
Sales History & Tax Summary for 1406 Eden Drive
Sales History
| Date | Price | Change |
|---|---|---|
| Currently not available. | ||
Tax Summary
| Tax Year | Estimated Market Value | Total Tax |
|---|---|---|
| Currently not available. | ||
Data powered by ATTOM Data Solutions. Copyright© 2025. Information deemed reliable but not guaranteed.
Schools
Schools nearby 1406 Eden Drive
| Schools in attendance boundaries | Grades | Distance | Rating |
|---|---|---|---|
| Loading... | |||
| Schools nearby | Grades | Distance | Rating |
|---|---|---|---|
| Loading... | |||
Data powered by ATTOM Data Solutions. Copyright© 2025. Information deemed reliable but not guaranteed.
The schools shown represent both the assigned schools and schools by distance based on local school and district attendance boundaries. Attendance boundaries change based on various factors and proximity does not guarantee enrollment eligibility. Please consult your real estate agent and/or the school district to confirm the schools this property is zoned to attend. Information is deemed reliable but not guaranteed.
SchoolDigger ® Rating
The SchoolDigger rating system is a 1-5 scale with 5 as the highest rating. SchoolDigger ranks schools based on test scores supplied by each state's Department of Education. They calculate an average standard score by normalizing and averaging each school's test scores across all tests and grades.
Coming soon properties will soon be on the market, but are not yet available for showings.