$315,000
1406 Teal Court Kissimmee, FL 34759
For Sale MLS# O6374988
4 beds 3 baths 1,941 sq ft Single Family
Details for 1406 Teal Court
MLS# O6374988
Description for 1406 Teal Court, Kissimmee, FL, 34759
Short Sale. What if home felt like living inside the kind of town you always imagined—where mornings start with lake walks, neighbors wave on lantern-lit porches, and evenings end under glowing oaks? Listing Copy: In Celebration, life moves at a different pace. Morning runs around the lake, friendly greetings on porches, and evenings that end with sunset strolls. It’s the kind of community where families feel secure, first-time buyers feel empowered, and everyday life feels meaningful. Residents enjoy exclusive access to the Artisan Park Club, a private clubhouse for gatherings and relaxation. The club features a family restaurant and bar, full fitness center, billiards room, conference spaces, and a scenic patio with BBQ areas. The geothermal-heated saltwater pool is open year-round, along with a hot tub and a dedicated activity area for youth. Beyond amenities, this is where neighbors connect—meeting for lunch, sharing stories, and celebrating life’s moments together. Parks, trails, lakes, and seasonal events make this lifestyle both peaceful and vibrant. Fully Renovated - new appliances -2 bedrooms 2 bathrooms
Listing Information
Property Type: Residential, Single Family Residence
Status: Active
Bedrooms: 4
Bathrooms: 3
Lot Size: 0.18 Acres
Square Feet: 1,941 sq ft
Year Built: 2022
Garage: Yes
Stories: 2 Story
Construction: Block
Subdivision: Poinciana Nbrhd 06 Village 03
Foundation: Slab
County: Polk
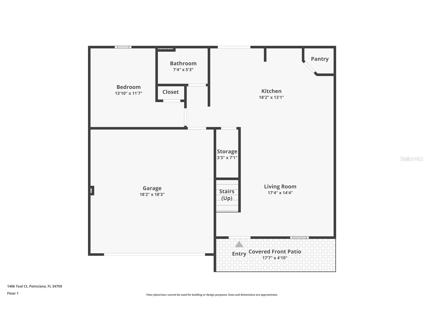
Room Information
Main Floor
Bedroom 2: 12x10
Kitchen: 10x8
Great Room: 15x13
Upper Floor
Bedroom 4: 14x10
Bedroom 3: 14x12
Primary Bathroom:
Primary Bedroom: 17x13
Laundry:
Bathrooms
Full Baths: 3
Additonal Room Information
Laundry: Laundry Room
Interior Features
Appliances: Electric Water Heater, Range, Refrigerator, Dishwasher
Flooring: Carpet,Vinyl
Fireplaces: Living Room, Electric
Additional Interior Features: Other, Walk-In Closet(s), Open Floorplan, Upper Level Primary
Utilities
Water: Public
Sewer: Public Sewer
Other Utilities: Electricity Available,Other,Sewer Connected,Water Connected
Cooling: Central Air
Heating: Heat Pump, Electric
Exterior / Lot Features
Attached Garage: Attached Garage
Garage Spaces: 2
Roof: Shingle
Pool: Association
Fencing: Vinyl, fenced
Additional Exterior/Lot Features: Other
Community Features
Association Amenities: Pool, Recreation Facilities, Playground, Park, Clubhouse, Fitness Center, Basketball Court
HOA Dues Include: Cable TV, Internet, Trash
Homeowners Association: Yes
HOA Dues: $100 / Monthly
Driving Directions
Take Country Club Rd to Tiger Rd in Polk County, Take Coyote Rd to marigold Ave, Turn left onto Marigold Ave, Continue on Sheldrake Rd. Drive to Teal Ct.
Financial Considerations
Terms: Cash,Conventional,FHA,VA Loan
Tax/Property ID: 28-27-35-934560-295030
Tax Amount: 3874.72
Tax Year: 2025
A broker reciprocity listing courtesy: EXP REALTY LLC
Based on information provided by Stellar MLS as distributed by the MLS GRID. Information from the Internet Data Exchange is provided exclusively for consumers’ personal, non-commercial use, and such information may not be used for any purpose other than to identify prospective properties consumers may be interested in purchasing. This data is deemed reliable but is not guaranteed to be accurate by Edina Realty, Inc., or by the MLS. Edina Realty, Inc., is not a multiple listing service (MLS), nor does it offer MLS access.
Copyright 2026 Stellar MLS as distributed by the MLS GRID. All Rights Reserved.
Payment Calculator
Interest rate and annual percentage rate (APR) are based on current market conditions, are for informational purposes only, are subject to change without notice and may be subject to pricing add-ons related to property type, loan amount, loan-to-value, credit score and other variables. Estimated closing costs used in the APR calculation are assumed to be paid by the borrower at closing. If the closing costs are financed, the loan, APR and payment amounts will be higher. If the down payment is less than 20%, mortgage insurance may be required and could increase the monthly payment and APR. Contact us for details. Additional loan programs may be available. Accuracy is not guaranteed, and all products may not be available in all borrower's geographical areas and are based on their individual situation. This is not a credit decision or a commitment to lend.
Sales History & Tax Summary for 1406 Teal Court
Sales History
| Date | Price | |
|---|---|---|
| Currently not available. | ||
Tax Summary
| Tax Year | Estimated Market Value | Total Tax |
|---|---|---|
| Currently not available. | ||
Data powered by ATTOM Data Solutions. Copyright© 2026. Information deemed reliable but not guaranteed.
Schools
Schools nearby 1406 Teal Court
| Schools in attendance boundaries | Grades | Distance | Rating |
|---|---|---|---|
| Loading... | |||
| Schools nearby | Grades | Distance | Rating |
|---|---|---|---|
| Loading... | |||
Data powered by ATTOM Data Solutions. Copyright© 2026. Information deemed reliable but not guaranteed.
The schools shown represent both the assigned schools and schools by distance based on local school and district attendance boundaries. Attendance boundaries change based on various factors and proximity does not guarantee enrollment eligibility. Please consult your real estate agent and/or the school district to confirm the schools this property is zoned to attend. Information is deemed reliable but not guaranteed.
SchoolDigger ® Rating
The SchoolDigger rating system is a 1-5 scale with 5 as the highest rating. SchoolDigger ranks schools based on test scores supplied by each state's Department of Education. They calculate an average standard score by normalizing and averaging each school's test scores across all tests and grades.
Coming soon properties will soon be on the market, but are not yet available for showings.