1407 Berwyn Road Orlando, FL 32806
For Sale MLS# O6341124
3 beds 2 baths 1,671 sq ft Single Family
Details for 1407 Berwyn Road
MLS# O6341124
Description for 1407 Berwyn Road, Orlando, FL, 32806
Discover the perfect blend of style, comfort, and leisure in this beautifully updated single-family home, offering 3 bedrooms, 2 baths, and a sparkling swimming pool in the highly sought-after Dover Shores neighborhood. Boasting an open-concept layout, this home is designed for modern living. Step inside to find laminate wood flooring throughout, creating a seamless flow between spaces, while the bathrooms feature sleek tile floors for a touch of sophistication. The kitchen, the heart of the home, dazzles with granite countertops, stainless steel appliances, and thoughtfully crafted cabinetry. The open living and dining areas are ideal for both entertaining and relaxation, with natural light streaming in to enhance the warm and inviting ambiance. The primary and guest bathrooms are equally impressive, offering granite vanities and stylish finishes. Outside, the private backyard oasis features a swimming pool perfect for cooling off or enjoying Florida’s sunny days. Situated in a prime location, this home provides convenient access to top-rated schools, shopping, dining, and all that Orlando has to offer. 18 Minute drive to Orlando International airport, 37 minutes to Disney, 19 minutes to University of Central Florida, 45 minutes to NASA. With its modern updates, timeless appeal, and fantastic outdoor amenities, this property is ready to welcome you home.
Listing Information
Property Type: Residential, Single Family Residence
Status: Active
Bedrooms: 3
Bathrooms: 2
Lot Size: 0.22 Acres
Square Feet: 1,671 sq ft
Year Built: 1957
Stories: 1 Story
Construction: Block,Concrete
Subdivision: Dover Shores Fifth Add
Foundation: Slab
County: Orange
School Information
Elementary: Lake Como Elem
Middle: Conway Middle
High: Boone High
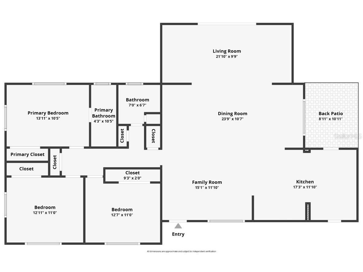
Room Information
Main Floor
Living Room: 9.9x21.1
Bedroom 2: 11x12.7
Bedroom 1: 11x12.11
Primary Bedroom: 10.5x13.11
Primary Bathroom: 10.5x4.3
Family Room: 11.1x15.1
Dining Room: 10.7x23.9
Kitchen: 11.1x17.3
Bathroom 1: 6.7x7
Bathrooms
Full Baths: 2
Additonal Room Information
Laundry: Other
Interior Features
Appliances: Dishwasher, Disposal, Dryer, Range, Refrigerator, Washer, Range Hood, Microwave, Electric Water Heater, Wine Refrigerator
Flooring: Laminate,Porcelain Tile
Doors/Windows: Window Treatments
Additional Interior Features: Ceiling Fan(s), Main Level Primary, Dry Bar, Stone Counters, Window Treatments, Cathedral Ceiling(s), High Ceilings
Utilities
Water: Public
Sewer: Public Sewer
Other Utilities: Electricity Connected,Sewer Connected,Water Connected
Cooling: Ceiling Fan(s), Central Air
Heating: Electric
Exterior / Lot Features
Roof: Built-Up, Other
Pool: In Ground
Additional Exterior/Lot Features: Storage, Enclosed
Driving Directions
From 408 E, take Exit 13 for Conway FL 15. Turn Right on Curry Ford Rd. Turn right on Berwyn Rd, house will be on the right.
Financial Considerations
Tax/Property ID: 32-22-30-2162-03-110
Tax Amount: 6868.97
Tax Year: 2024
A broker reciprocity listing courtesy: GLOBAL ENTERPRISE REALTY GROUP
Based on information provided by Stellar MLS as distributed by the MLS GRID. Information from the Internet Data Exchange is provided exclusively for consumers’ personal, non-commercial use, and such information may not be used for any purpose other than to identify prospective properties consumers may be interested in purchasing. This data is deemed reliable but is not guaranteed to be accurate by Edina Realty, Inc., or by the MLS. Edina Realty, Inc., is not a multiple listing service (MLS), nor does it offer MLS access.
Copyright 2026 Stellar MLS as distributed by the MLS GRID. All Rights Reserved.
Payment Calculator
Interest rate and annual percentage rate (APR) are based on current market conditions, are for informational purposes only, are subject to change without notice and may be subject to pricing add-ons related to property type, loan amount, loan-to-value, credit score and other variables. Estimated closing costs used in the APR calculation are assumed to be paid by the borrower at closing. If the closing costs are financed, the loan, APR and payment amounts will be higher. If the down payment is less than 20%, mortgage insurance may be required and could increase the monthly payment and APR. Contact us for details. Additional loan programs may be available. Accuracy is not guaranteed, and all products may not be available in all borrower's geographical areas and are based on their individual situation. This is not a credit decision or a commitment to lend.
Sales History & Tax Summary for 1407 Berwyn Road
Sales History
| Date | Price | |
|---|---|---|
| Currently not available. | ||
Tax Summary
| Tax Year | Estimated Market Value | Total Tax |
|---|---|---|
| Currently not available. | ||
Data powered by ATTOM Data Solutions. Copyright© 2026. Information deemed reliable but not guaranteed.
Schools
Schools nearby 1407 Berwyn Road
| Schools in attendance boundaries | Grades | Distance | Rating |
|---|---|---|---|
| Loading... | |||
| Schools nearby | Grades | Distance | Rating |
|---|---|---|---|
| Loading... | |||
Data powered by ATTOM Data Solutions. Copyright© 2026. Information deemed reliable but not guaranteed.
The schools shown represent both the assigned schools and schools by distance based on local school and district attendance boundaries. Attendance boundaries change based on various factors and proximity does not guarantee enrollment eligibility. Please consult your real estate agent and/or the school district to confirm the schools this property is zoned to attend. Information is deemed reliable but not guaranteed.
SchoolDigger ® Rating
The SchoolDigger rating system is a 1-5 scale with 5 as the highest rating. SchoolDigger ranks schools based on test scores supplied by each state's Department of Education. They calculate an average standard score by normalizing and averaging each school's test scores across all tests and grades.
Coming soon properties will soon be on the market, but are not yet available for showings.