14104 Inglewood Drive Baxter, MN 56425
For Sale MLS# 6815190
5 beds 2 baths 2,260 sq ft Single Family
Listed by: Edina Realty, Inc.
Details for 14104 Inglewood Drive
MLS# 6815190
Description for 14104 Inglewood Drive, Baxter, MN, 56425
Exceptional Baxter Property on 3.65 Acres!Discover comfort, space, and convenience with this beautifully updated 5BR/2BA home, perfectly situated near parks, schools, lakes, trails, shopping, and top-tier medical facilities. Outside, enjoy: Expansive 3.65-acre lot with mature trees and beautifully landscaped grounds. Large patio area ideal for entertaining. Paved driveway and fantastic curb appeal. Two storage sheds for all your extras. Additional storage under the sunroom/porch. Inside, you’ll love: A bright, updated kitchen with ample cabinetry, quartz countertops, and sleek black stainless appliances. Welcoming dining area and a cozy sunroom/porch space. Spacious main-level living room, hardwood floors and 6 panel doors. Three main-level bedrooms with a ¾ bath. Finished lower level with two additional bedrooms, a large family room, full bath, and dedicated laundry room. Convenient 2-car insulated/attached garage. With tons of recent updates inside and out, this property combines privacy, modern comfort, and an unbeatable Baxter location. A must-see—schedule your showing today!
Listing Information
Property Type: Residential, Single Family
Status: Active
Bedrooms: 5
Bathrooms: 2
Lot Size: 3.65 Acres
Square Feet: 2,260 sq ft
Year Built: 1965
Foundation: 1,264 sq ft
Garage: Yes
Stories: Split Entry (Bi-Level)
County: Crow Wing
Days On Market: 105
Construction Status: Previously Owned
School Information
District: 181 - Brainerd
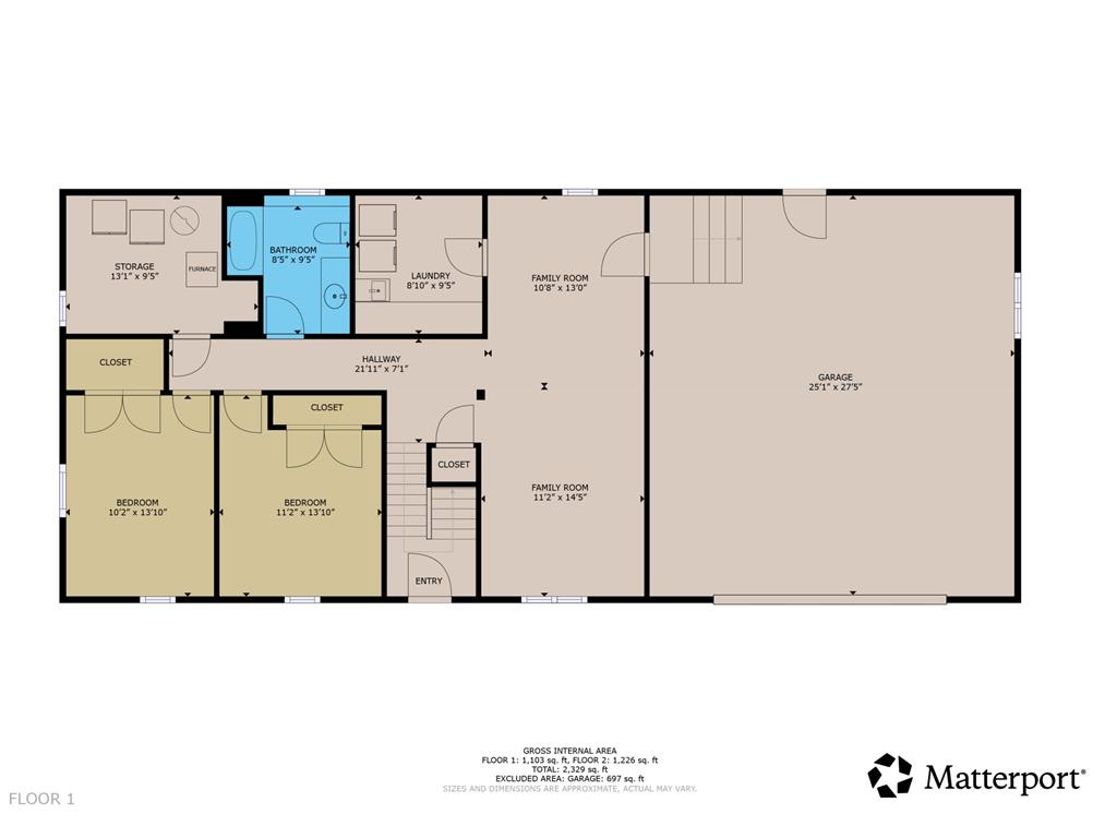
Room Information
Main Floor
Bedroom 1: 10'10x11'7
Bedroom 2: 10'3x11'7
Bedroom 3: 10'4x11'7
Dining Room: 9'9x9'9
Kitchen: 11'7x9'9
Living Room: 11'6x17'2
Sun Room: 11'3x11'10
Lower Floor
Bedroom 4: 10'2x13'10
Bedroom 5: 11'2x13'10
Family Room: 11'2x27'5
Laundry: 8'10x9'5
Bathrooms
Full Baths: 1
3/4 Baths: 1
Additonal Room Information
Family: Lower Level
Dining: Kitchen/Dining Room
Laundry: In Basement
Bath Description: Full Basement,Main Floor 3/4 Bath
Interior Features
Square Footage above: 1,264 sq ft
Square Footage below: 996 sq ft
Appliances: Microwave, Range, Refrigerator, Dishwasher
Basement: Finished (Livable), Full
Additional Interior Features: 3 BR on One Level, Washer/Dryer Hookup, Paneled Doors, Tile Floors, Hardwood Floors, Kitchen Window, Ceiling Fan(s)
Utilities
Water: City Water/Connected
Sewer: City Sewer/Connected
Heating: Baseboard, Boiler, Hot Water, Natural Gas
Exterior / Lot Features
Attached Garage: Attached Garage
Garage Spaces: 2
Parking Description: Insulated Garage, Attached Garage, Garage Dimensions - 25x28, Garage Sq Ft - 700.0
Exterior: Brick/Stone, Steel Siding
Roof: Pitched, Asphalt Shingles
Lot Dimensions: See Aerial Map
Zoning: Residential-Single Family
Additional Exterior/Lot Features: Deck, Patio, Tree Coverage - Medium, Road Frontage - Paved Streets, City
Out Buildings: Shed - Storage
Driving Directions
From the intersection of State Highway 371 and State Highway 210 go West on 210 to a right onto Inglewood Drive and follow to the property on the right located at 14104 Inglewood Drive.
Financial Considerations
Tax/Property ID: 40060506
Tax Amount: 3345
Tax Year: 2025
HomeStead Description: Homesteaded
The data relating to real estate for sale on this web site comes in part from the Broker Reciprocity℠ Program of the Regional Multiple Listing Service of Minnesota, Inc. Real estate listings held by brokerage firms other than Edina Realty, Inc. are marked with the Broker Reciprocity℠ logo or the Broker Reciprocity℠ thumbnail and detailed information about them includes the name of the listing brokers. Edina Realty, Inc. is not a Multiple Listing Service (MLS), nor does it offer MLS access. This website is a service of Edina Realty, Inc., a broker Participant of the Regional Multiple Listing Service of Minnesota, Inc. IDX information is provided exclusively for consumers personal, non-commercial use and may not be used for any purpose other than to identify prospective properties consumers may be interested in purchasing. Open House information is subject to change without notice. Information deemed reliable but not guaranteed.
Copyright 2026 Regional Multiple Listing Service of Minnesota, Inc. All Rights Reserved.
Payment Calculator
Interest rate and annual percentage rate (APR) are based on current market conditions, are for informational purposes only, are subject to change without notice and may be subject to pricing add-ons related to property type, loan amount, loan-to-value, credit score and other variables. Estimated closing costs used in the APR calculation are assumed to be paid by the borrower at closing. If the closing costs are financed, the loan, APR and payment amounts will be higher. If the down payment is less than 20%, mortgage insurance may be required and could increase the monthly payment and APR. Contact us for details. Additional loan programs may be available. Accuracy is not guaranteed, and all products may not be available in all borrower's geographical areas and are based on their individual situation. This is not a credit decision or a commitment to lend.
Sales History & Tax Summary for 14104 Inglewood Drive
Sales History
| Date | Price | |
|---|---|---|
| Currently not available. | ||
Tax Summary
| Tax Year | Estimated Market Value | Total Tax |
|---|---|---|
| Currently not available. | ||
Data powered by ATTOM Data Solutions. Copyright© 2026. Information deemed reliable but not guaranteed.
Schools
Schools nearby 14104 Inglewood Drive
| Schools in attendance boundaries | Grades | Distance | Rating |
|---|---|---|---|
| Loading... | |||
| Schools nearby | Grades | Distance | Rating |
|---|---|---|---|
| Loading... | |||
Data powered by ATTOM Data Solutions. Copyright© 2026. Information deemed reliable but not guaranteed.
The schools shown represent both the assigned schools and schools by distance based on local school and district attendance boundaries. Attendance boundaries change based on various factors and proximity does not guarantee enrollment eligibility. Please consult your real estate agent and/or the school district to confirm the schools this property is zoned to attend. Information is deemed reliable but not guaranteed.
SchoolDigger ® Rating
The SchoolDigger rating system is a 1-5 scale with 5 as the highest rating. SchoolDigger ranks schools based on test scores supplied by each state's Department of Education. They calculate an average standard score by normalizing and averaging each school's test scores across all tests and grades.
Coming soon properties will soon be on the market, but are not yet available for showings.