14121 Heritage Landing Boulevard #731 Punta Gorda, FL 33955
For Sale MLS# C7514764
3 beds 2 baths 1,407 sq ft Condo
Details for 14121 Heritage Landing Boulevard #731
MLS# C7514764
Description for 14121 Heritage Landing Boulevard #731, Punta Gorda, FL, 33955
Welcome to this stunning never-lived-in 3-bedroom, 2-bathroom END UNIT condo in the highly sought-after Heritage Landing Golf & Country Club. Offering 1,407 square feet of beautifully upgraded living space, this unit combines luxury, comfort, and resort-style living — all with a GOLF MEMBERSHIP included! Step inside to find elegant crown molding, plantation shutters, and custom California closets, adding a touch of sophistication and function throughout. The modern kitchen features stainless steel appliances, quartz countertops, and a spacious layout perfect for entertaining. The primary suite boasts two walk-in closets and a spa-like bathroom for your comfort and privacy. Relax at the end of the day on your lanai and take in the amazing sunsets. For additional storage, this unit comes with a large, secure storage closet just steps from the front door. Enjoy a wealth of fantastic amenities including: Championship 18-hole golf course, Tennis, pickleball, and bocce ball courts, resort-style pool with tiki bar, fitness center, on-site restaurants, clubhouse, and a full-service spa. Whether you're a golfer, an active lifestyle enthusiast, or just looking to relax in a vibrant community, this condo offers it all. Don’t miss the opportunity to own a piece of paradise in Heritage Landing!
Listing Information
Property Type: Residential, Condominium
Status: Active
Bedrooms: 3
Bathrooms: 2
Square Feet: 1,407 sq ft
Year Built: 2022
Stories: 1 Story
Construction: Block,Stucco
Subdivision: Heritage Landing
Builder: Lennar
Foundation: Slab
County: Charlotte
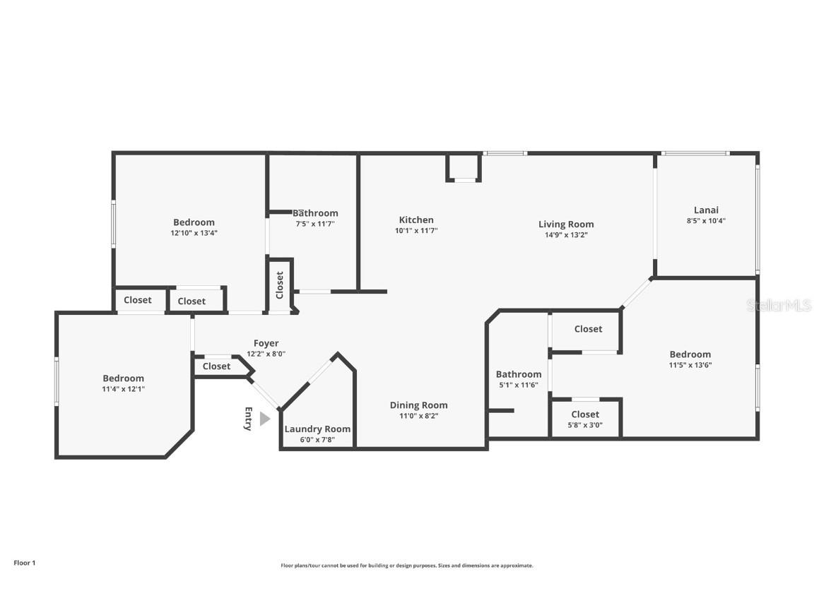
Room Information
Main Floor
Bedroom 3: 11x12
Bedroom 2: 12x11
Dining Room: 11x12
Kitchen:
Primary Bathroom:
Primary Bedroom: 12x14
Living Room: 13x16
Bathrooms
Full Baths: 2
Additonal Room Information
Laundry: Inside, Laundry Room
Interior Features
Appliances: Electric Water Heater, Washer, Microwave, Range, Refrigerator, Dishwasher, Disposal, Dryer
Flooring: Carpet,Ceramic Tile
Doors/Windows: Window Treatments
Additional Interior Features: Walk-In Closet(s), Window Treatments, Ceiling Fan(s), Elevator, Crown Molding, Open Floorplan
Utilities
Water: Public
Sewer: Public Sewer
Other Utilities: Cable Available,Electricity Connected,Municipal Utilities
Cooling: Ceiling Fan(s), Central Air
Heating: Central, Electric
Exterior / Lot Features
Parking Description: Covered, Guest
Roof: Shingle
Pool: Community
Additional Exterior/Lot Features: Sprinkler/Irrigation, Tennis Court(s), Lighting, Storage, Buyer Approval Required
Community Features
Community Features: Community Mailbox, Fitness, Golf Carts OK, Restaurant, Sidewalks, Pool, Tennis Court(s), Clubhouse, Golf, Gated
Security Features: Gated Community, Gated with Guard
HOA Dues Include: Association Management, Recreation Facilities, Security, Sewer, Trash, Water, Maintenance Structure, Pool(s), Insurance, Maintenance Grounds, Reserve Fund
Homeowners Association: Yes
HOA Dues: $578 / Quarterly
Driving Directions
South on Burnt Store Road from 41 turn right into the main entrance of Heritage Landing Golf & Country Club. Go thru security gate. Turn Right of first exit of roundabout onto Heritage Landing Blvd. 14121 Heritage Landing Blvd. will be on the right. Unit 731 is on the 3rd floor.
Financial Considerations
Terms: Cash,Conventional,FHA,VA Loan
Tax/Property ID: 422317502003
Tax Amount: 5270.71
Tax Year: 2024
A broker reciprocity listing courtesy: CALENDA REAL ESTATE GROUP,INC.
Based on information provided by Stellar MLS as distributed by the MLS GRID. Information from the Internet Data Exchange is provided exclusively for consumers’ personal, non-commercial use, and such information may not be used for any purpose other than to identify prospective properties consumers may be interested in purchasing. This data is deemed reliable but is not guaranteed to be accurate by Edina Realty, Inc., or by the MLS. Edina Realty, Inc., is not a multiple listing service (MLS), nor does it offer MLS access.
Copyright 2025 Stellar MLS as distributed by the MLS GRID. All Rights Reserved.
Payment Calculator
Interest rate and annual percentage rate (APR) are based on current market conditions, are for informational purposes only, are subject to change without notice and may be subject to pricing add-ons related to property type, loan amount, loan-to-value, credit score and other variables. Estimated closing costs used in the APR calculation are assumed to be paid by the borrower at closing. If the closing costs are financed, the loan, APR and payment amounts will be higher. If the down payment is less than 20%, mortgage insurance may be required and could increase the monthly payment and APR. Contact us for details. Additional loan programs may be available. Accuracy is not guaranteed, and all products may not be available in all borrower's geographical areas and are based on their individual situation. This is not a credit decision or a commitment to lend.
Sales History & Tax Summary for 14121 Heritage Landing Boulevard #731
Sales History
| Date | Price | Change |
|---|---|---|
| Currently not available. | ||
Tax Summary
| Tax Year | Estimated Market Value | Total Tax |
|---|---|---|
| Currently not available. | ||
Data powered by ATTOM Data Solutions. Copyright© 2025. Information deemed reliable but not guaranteed.
Schools
Schools nearby 14121 Heritage Landing Boulevard #731
| Schools in attendance boundaries | Grades | Distance | Rating |
|---|---|---|---|
| Loading... | |||
| Schools nearby | Grades | Distance | Rating |
|---|---|---|---|
| Loading... | |||
Data powered by ATTOM Data Solutions. Copyright© 2025. Information deemed reliable but not guaranteed.
The schools shown represent both the assigned schools and schools by distance based on local school and district attendance boundaries. Attendance boundaries change based on various factors and proximity does not guarantee enrollment eligibility. Please consult your real estate agent and/or the school district to confirm the schools this property is zoned to attend. Information is deemed reliable but not guaranteed.
SchoolDigger ® Rating
The SchoolDigger rating system is a 1-5 scale with 5 as the highest rating. SchoolDigger ranks schools based on test scores supplied by each state's Department of Education. They calculate an average standard score by normalizing and averaging each school's test scores across all tests and grades.
Coming soon properties will soon be on the market, but are not yet available for showings.