$665,000
1421 Gleneagles Drive Venice, FL 34292
For Sale MLS# N6143166
3 beds 2 baths 2,352 sq ft Single Family
Details for 1421 Gleneagles Drive
MLS# N6143166
Description for 1421 Gleneagles Drive, Venice, FL, 34292
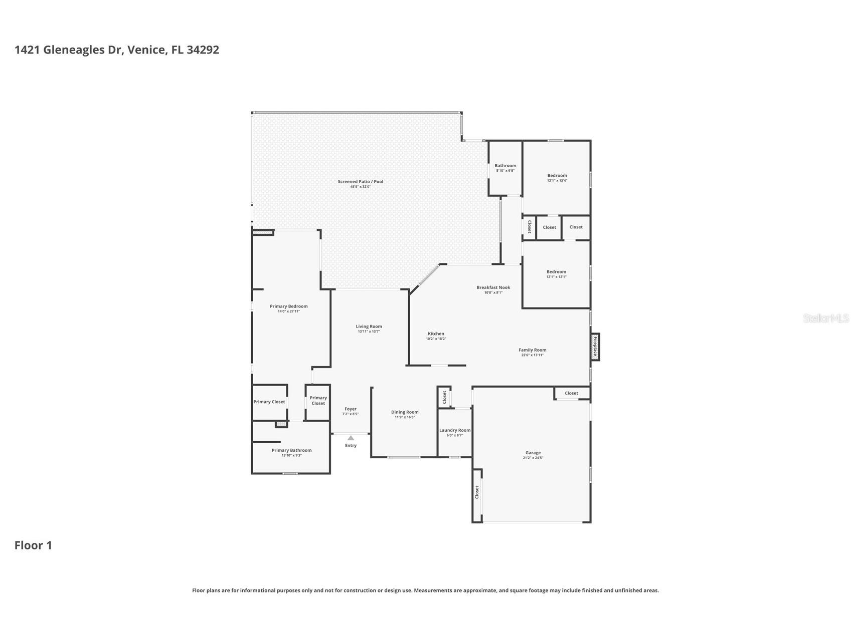
This truly stunning home offers soaring HIGH CEILINGS and PICTURESQUE LAKE VIEWS from the moment you enter and continue to nearly every room! You'll feel like you've just stepped into a spotlessly clean model home with coastal vibes and decor! The well-designed, split-bedroom floor plan offers 3 bedrooms, 2 bathrooms and 2,352 sq. ft. of living space. The gourmet chef's kitchen is open to the family room and features an island/breakfast bar, white cabinetry, granite countertops, a double oven, wine cooler and a large window providing amazing views. The family room has vaulted ceilings with wood beams and a gas fireplace. The tile flooring features a diagonal lay and flows consistently throughout the main living areas. The primary bedroom is spacious and offers plenty of room for a sitting area or office, 2 walk-in closets and sliding glass doors providing access to the lanai and pool. The primary bathroom is completely remodeled with dual sinks, a roomy walk-in shower, and extra cabinetry for additional storage. The "guest wing" of the home is where you'll find 2 bedrooms, both featuring walk-in closets, and the guest bathroom, which offers pool access. Large sliding glass doors from the living room, kitchen, primary bedroom, and "guest wing" hallway offer natural light, beautiful lake views and easy access to your outdoor living space! You'll want to be outside all the time with an expansive covered lanai to sit under, a huge heated pool surrounded by a beautiful brick paver patio, outdoor shower and unobstructed panoramic views of the serene lake paired with birdlife. Beautiful curb appeal and landscape surround the home. MOVE-IN READY with FURNITURE OFFERED SEPARATELY. Many recent updates include LANDSCAPE (2025), NEW RUUD HVAC (2025), POOL HEATER (2025), LAUNDRY ROOM SINK & FAUCET (2025), PRIMARY BATHROOM REMODEL (2024), INTERIOR PAINT (2024), PANORAMIC VIEW SCREEN ENCLOSURE (2023), EXTERIOR PAINT (2022), PLANTATION SHUTTERS AND REMOTE CONTROL BLINDS (2022) and HURRICANE PROTECTION (2018). Waterford is a well-established golf course community located in the heart of Venice! Golf membership is optional. The low HOA fee of $2,232 annually provides you with access to amazing amenities including a heated pool, lit Har-Tru tennis courts, pickleball, hot tub, social room with kitchen, dance floor and fitness center. The Waterford Golf Club offers 27 holes of golf, a driving range, putting green and a restaurant. Great location with easy access to Sarasota via I-75 or US 41, pristine beaches, excellent schools, parks, shopping, dining, medical, historic downtown Venice, the new Sarasota Memorial Hospital and so much more! No CDD fee here!
Listing Information
Property Type: Residential, Single Family Residence
Status: Active
Bedrooms: 3
Bathrooms: 2
Lot Size: 0.22 Acres
Square Feet: 2,352 sq ft
Year Built: 1990
Garage: Yes
Stories: 1 Story
Construction: Stucco
Subdivision: Waterford
Foundation: Slab
County: Sarasota
Room Information
Main Floor
Foyer: 7x8
Bedroom 3: 11x11
Bedroom 2: 12x12
Primary Bedroom: 26x13
Family Room: 14x21
Kitchen: 12x18
Dining Room: 11x13
Living Room: 13x16
Bathrooms
Full Baths: 2
Additonal Room Information
Laundry: Inside, Laundry Room
Interior Features
Appliances: Wine Refrigerator, Microwave, Range, Refrigerator, Dishwasher, Disposal, Dryer, Washer, Electric Water Heater
Flooring: Carpet,Tile
Doors/Windows: Window Treatments, Shutters
Fireplaces: Gas
Additional Interior Features: Eat-In Kitchen, Walk-In Closet(s), Window Treatments, Ceiling Fan(s), Built-in Features, Cathedral Ceiling(s), Separate/Formal Dining Room, Separate/Formal Living Room, Solid Surface Counters, Kitchen/Family Room Combo
Utilities
Water: Public
Sewer: Public Sewer
Other Utilities: Municipal Utilities
Cooling: Ceiling Fan(s), Central Air
Heating: Electric, Central
Exterior / Lot Features
Attached Garage: Attached Garage
Garage Spaces: 2
Roof: Tile
Pool: Association, Heated, Outside Bath Access, Screen Enclosure, Community, In Ground
Lot View: Water
Additional Exterior/Lot Features: Storm/Security Shutters, Rain Gutters, Sprinkler/Irrigation, Outdoor Shower, Lighting, Screened, Covered, Patio, Front Porch, Landscaped, Near Golf Course
Community Features
Community Features: Fitness, Golf Carts OK, Gated, Restaurant, Pool, Sidewalks, Tennis Court(s), Clubhouse
Security Features: Gated Community
Association Amenities: Tennis Court(s), Fitness Center, Clubhouse, Pool, Pickleball, Gated
HOA Dues Include: Association Management, Reserve Fund, Road Maintenance, Pool(s), Recreation Facilities
Homeowners Association: Yes
HOA Dues: $2,232 / Annually
Driving Directions
From I75 take Laurel Rd west, to Left on Pinebrook Rd, to Left on Edmonson Rd, to Left on Capri Isles Blvd, to Right on Gleneagles Dr., follow to 1421 Gleneagles Dr..
Financial Considerations
Terms: Cash,Conventional,VA Loan
Tax/Property ID: 0388160008
Tax Amount: 5613.08
Tax Year: 2025
A broker reciprocity listing courtesy: COLDWELL BANKER REALTY
Based on information provided by Stellar MLS as distributed by the MLS GRID. Information from the Internet Data Exchange is provided exclusively for consumers’ personal, non-commercial use, and such information may not be used for any purpose other than to identify prospective properties consumers may be interested in purchasing. This data is deemed reliable but is not guaranteed to be accurate by Edina Realty, Inc., or by the MLS. Edina Realty, Inc., is not a multiple listing service (MLS), nor does it offer MLS access.
Copyright 2026 Stellar MLS as distributed by the MLS GRID. All Rights Reserved.
Payment Calculator
Interest rate and annual percentage rate (APR) are based on current market conditions, are for informational purposes only, are subject to change without notice and may be subject to pricing add-ons related to property type, loan amount, loan-to-value, credit score and other variables. Estimated closing costs used in the APR calculation are assumed to be paid by the borrower at closing. If the closing costs are financed, the loan, APR and payment amounts will be higher. If the down payment is less than 20%, mortgage insurance may be required and could increase the monthly payment and APR. Contact us for details. Additional loan programs may be available. Accuracy is not guaranteed, and all products may not be available in all borrower's geographical areas and are based on their individual situation. This is not a credit decision or a commitment to lend.
Sales History & Tax Summary for 1421 Gleneagles Drive
Sales History
| Date | Price | |
|---|---|---|
| Currently not available. | ||
Tax Summary
| Tax Year | Estimated Market Value | Total Tax |
|---|---|---|
| Currently not available. | ||
Data powered by ATTOM Data Solutions. Copyright© 2026. Information deemed reliable but not guaranteed.
Schools
Schools nearby 1421 Gleneagles Drive
| Schools in attendance boundaries | Grades | Distance | Rating |
|---|---|---|---|
| Loading... | |||
| Schools nearby | Grades | Distance | Rating |
|---|---|---|---|
| Loading... | |||
Data powered by ATTOM Data Solutions. Copyright© 2026. Information deemed reliable but not guaranteed.
The schools shown represent both the assigned schools and schools by distance based on local school and district attendance boundaries. Attendance boundaries change based on various factors and proximity does not guarantee enrollment eligibility. Please consult your real estate agent and/or the school district to confirm the schools this property is zoned to attend. Information is deemed reliable but not guaranteed.
SchoolDigger ® Rating
The SchoolDigger rating system is a 1-5 scale with 5 as the highest rating. SchoolDigger ranks schools based on test scores supplied by each state's Department of Education. They calculate an average standard score by normalizing and averaging each school's test scores across all tests and grades.
Coming soon properties will soon be on the market, but are not yet available for showings.