14233 Shiloh Court Hudson, FL 34667
For Sale MLS# TB8447519
2 beds 2 baths 1,056 sq ft Single Family
Details for 14233 Shiloh Court
MLS# TB8447519
Description for 14233 Shiloh Court, Hudson, FL, 34667
Waterfront Living at its Best!!! Bring your Boat, Jet-Ski and RV because there is Room for it ALL!! $10K PRICE IMPROVEMENT!!! ACCEPTING ALL OFFERS!!! Welcome to this Beautiful Waterfront Home on an Oversized Corner Lot, located on a salt water canal with Direct Access to the Gulf of Mexico! For a Peace of Mind, this home has been COMPLETELY REMODELED FROM TOP TO BOTTOM! New Electrical Throughout, New Kitchen with Quartz Countertops, New Stainless Steel Appliances all leading outside to your Large 40X10 Deck overlooking the Canal, New Luxury Vinyl Flooring Throughout, New Hurricane Impact Windows and Sliding Glass Doors, New Roof 2024, New Tankless Hot Water Heater 2025, and the list goes on! This Oasis offers 2 bedrooms with a Spacious living area, a HUGE Insulated Detached Garage, perfect for your RV and Boat parking. Above the RV/Boat Garage is a Fully Renovated Recreation/Flex Space/BONUS Room/Man Cave/Game Room/etc, with a total of 765 sq/ft of Extra Space, an abundance of natural light, a Mini-Split to stay cool and warm, and French Doors leading you to your own private wrap around deck for stunning views. The possibilities are endless to do whatever your heart desires in this space! Minutes to Florida's Spectacular Beaches and within walking distance to Get Hooked Grill and Port Hudson Marina. You don't want to miss your opportunity to tour this home! Schedule your appointment today!
Listing Information
Property Type: Residential, Single Family Residence
Status: Active
Bedrooms: 2
Bathrooms: 2
Lot Size: 0.17 Acres
Square Feet: 1,056 sq ft
Year Built: 1974
Garage: Yes
Stories: 1 Story
Construction: Block,Stucco
Construction Display: New Construction
Subdivision: Gulf Shore Subdivision
Foundation: Slab
County: Pasco
Construction Status: New Construction
School Information
Elementary: Hudson Primary Academy (K-3)
Middle: Hudson Academy ( 4-8)
High: Hudson High-Po
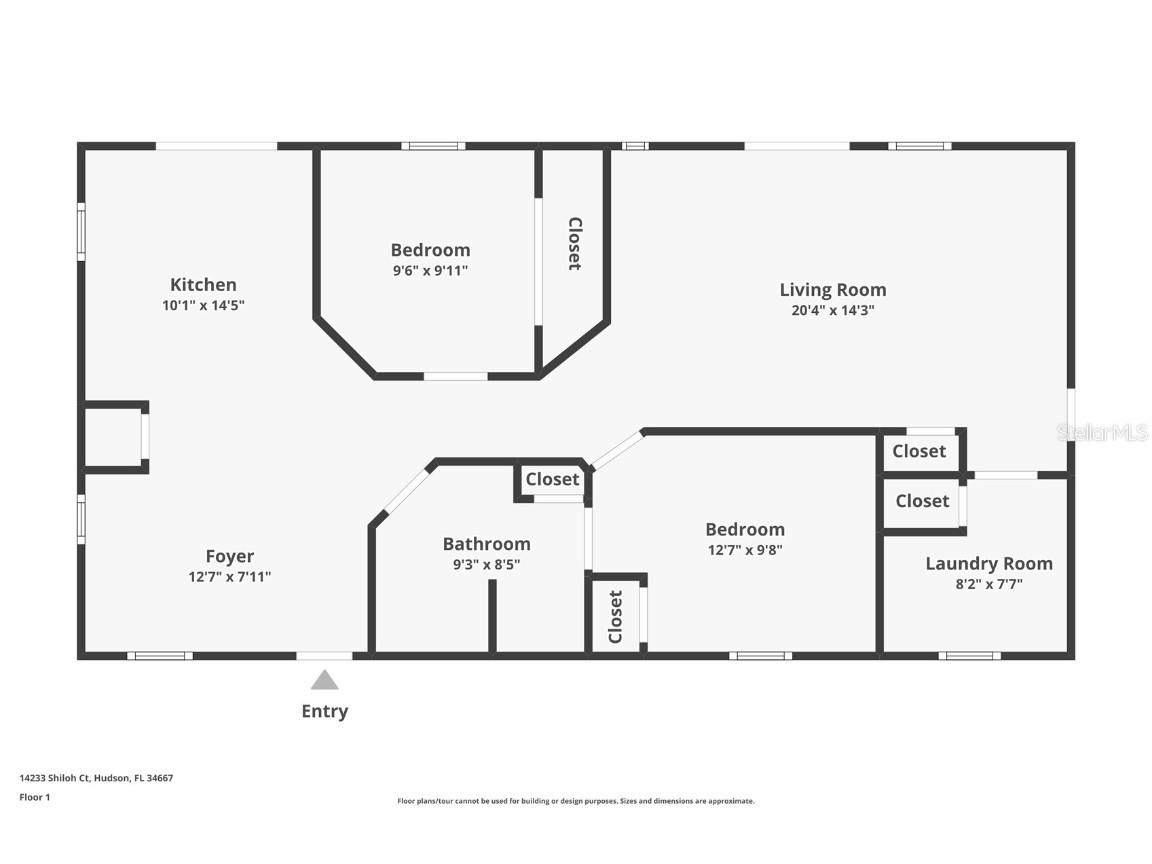
Room Information
Main Floor
Laundry: 7.7x8.2
Dining Room: 7.11x12.7
Kitchen: 10.1x14.5
Primary Bathroom: 8.5x9.3
Primary Bedroom: 9.8x12.7
Living Room: 14.3x20.4
Bathrooms
Full Baths: 1
1/2 Baths: 1
Additonal Room Information
Laundry: Inside
Interior Features
Appliances: Cooktop, Microwave, Range, Refrigerator, Washer, Dishwasher, Disposal, Dryer
Flooring: Luxury Vinyl
Doors/Windows: Blinds, Double Pane Windows, Insulated Windows, ENERGY STAR Qualified Windows, Storm Window(s)
Additional Interior Features: Eat-In Kitchen, Main Level Primary, Crown Molding, Ceiling Fan(s)
Utilities
Water: Public
Sewer: Public Sewer
Other Utilities: Electricity Connected,Sewer Connected,Water Connected
Cooling: Ceiling Fan(s), Central Air, Ductless
Heating: Electric
Exterior / Lot Features
Garage Spaces: 2
Parking Description: Oversized, RV Garage
Roof: Membrane, Shingle
Lot View: Canal,Water
Additional Exterior/Lot Features: Balcony, French Patio Doors, Storage, Balcony, Patio, Porch, Deck, Wrap Around, Corner Lot, Landscaped, Cul-de-Sac
Out Buildings: Storage, Other, RV/Boat Storage
Waterfront Details
Water Front Features: Canal Access
Community Features
Security Features: Smoke Detector(s)
Driving Directions
US Hwy 19 N, West on Hudson Ave, Right on Port Hudson Blvd, Left Canal, Left Shiloh.
Financial Considerations
Terms: Cash,Conventional,FHA,VA Loan
Tax/Property ID: 28-24-16-0010-01700-0210
Tax Amount: 3453
Tax Year: 2025
A broker reciprocity listing courtesy: THE WILKINS WAY LLC
Based on information provided by Stellar MLS as distributed by the MLS GRID. Information from the Internet Data Exchange is provided exclusively for consumers’ personal, non-commercial use, and such information may not be used for any purpose other than to identify prospective properties consumers may be interested in purchasing. This data is deemed reliable but is not guaranteed to be accurate by Edina Realty, Inc., or by the MLS. Edina Realty, Inc., is not a multiple listing service (MLS), nor does it offer MLS access.
Copyright 2026 Stellar MLS as distributed by the MLS GRID. All Rights Reserved.
Payment Calculator
Interest rate and annual percentage rate (APR) are based on current market conditions, are for informational purposes only, are subject to change without notice and may be subject to pricing add-ons related to property type, loan amount, loan-to-value, credit score and other variables. Estimated closing costs used in the APR calculation are assumed to be paid by the borrower at closing. If the closing costs are financed, the loan, APR and payment amounts will be higher. If the down payment is less than 20%, mortgage insurance may be required and could increase the monthly payment and APR. Contact us for details. Additional loan programs may be available. Accuracy is not guaranteed, and all products may not be available in all borrower's geographical areas and are based on their individual situation. This is not a credit decision or a commitment to lend.
Sales History & Tax Summary for 14233 Shiloh Court
Sales History
| Date | Price | |
|---|---|---|
| Currently not available. | ||
Tax Summary
| Tax Year | Estimated Market Value | Total Tax |
|---|---|---|
| Currently not available. | ||
Data powered by ATTOM Data Solutions. Copyright© 2026. Information deemed reliable but not guaranteed.
Schools
Schools nearby 14233 Shiloh Court
| Schools in attendance boundaries | Grades | Distance | Rating |
|---|---|---|---|
| Loading... | |||
| Schools nearby | Grades | Distance | Rating |
|---|---|---|---|
| Loading... | |||
Data powered by ATTOM Data Solutions. Copyright© 2026. Information deemed reliable but not guaranteed.
The schools shown represent both the assigned schools and schools by distance based on local school and district attendance boundaries. Attendance boundaries change based on various factors and proximity does not guarantee enrollment eligibility. Please consult your real estate agent and/or the school district to confirm the schools this property is zoned to attend. Information is deemed reliable but not guaranteed.
SchoolDigger ® Rating
The SchoolDigger rating system is a 1-5 scale with 5 as the highest rating. SchoolDigger ranks schools based on test scores supplied by each state's Department of Education. They calculate an average standard score by normalizing and averaging each school's test scores across all tests and grades.
Coming soon properties will soon be on the market, but are not yet available for showings.