14243 Adair Street Brooksville, FL 34613
For Sale MLS# TB8448968
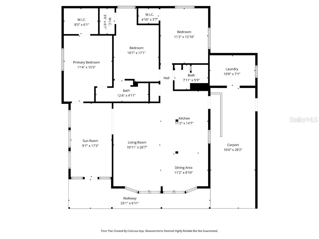
3 beds 2 baths 1,253 sq ft Single Family
Details for 14243 Adair Street
MLS# TB8448968
Description for 14243 Adair Street, Brooksville, FL, 34613
One or more photo(s) has been virtually staged. Move-In-Ready, Charming, Updated: 14243 Adair Street is a gorgeous, remodeled 1980 home in the highly sought-after Brookridge retirement community, where you OWN YOUR LAND. This spacious 3-bedroom, 2-full bath residence features an open-concept floor plan, a remodeled kitchen with updated counters and appliances, and two completely redone bathrooms with updated sinks and stall showers. Enjoy lovely laminate floors, a roof installed in 2019, a water softener and a beautiful four-season porch. The property also includes an oversized driveway, a rear yard with a gated chain link fence and covered golf cart parking, partial views of the golf course, and easy access via a front entry ramp. The Brookridge community features 24-hour security and a clubhouse with amenities including a heated pool, shuffleboard, tennis courts, and club activities (the golf course is available with an additional membership cost). Notable Upgrades, mostly completed in 2019, include: roof, window/door replacement, water softener and electrical panel change-out. For convenience, it's approximately a 15-minute drive to the local hospital, 45 minutes to Tampa International Airport (TPA), and 35 minutes to Pine Island, a small local beach park on the Gulf. This is truly a must-see property.
Listing Information
Property Type: Residential, Manufactured Home
Status: Active
Bedrooms: 3
Bathrooms: 2
Lot Size: 0.16 Acres
Square Feet: 1,253 sq ft
Year Built: 1980
Stories: 1 Story
Construction: Metal Siding
Subdivision: Brookridge Comm
Foundation: Crawlspace,Pillar/Post/Pier
County: Hernando
School Information
Elementary: Pine Grove Elementary School
Middle: West Hernando Middle School
High: Central High School
Room Information
Main Floor
Primary Bedroom:
Kitchen:
Living Room:
Bathrooms
Full Baths: 2
Additonal Room Information
Laundry: Laundry Room
Interior Features
Appliances: Water Softener, Dishwasher, Microwave, Range, Refrigerator
Flooring: Carpet,Luxury Vinyl,Other
Basement: Crawl Space
Additional Interior Features: Ceiling Fan(s), Open Floorplan
Utilities
Water: Public
Sewer: Public Sewer
Other Utilities: Electricity Connected
Cooling: Ceiling Fan(s), Central Air
Heating: Electric, Central
Exterior / Lot Features
Roof: Membrane
Pool: Association, Community
Lot View: Golf Course
Lot Dimensions: 70x100
Additional Exterior/Lot Features: Rain Gutters, Storage, Landscaped, Buyer Approval Required, Near Golf Course
Community Features
Community Features: Clubhouse, Fitness, Golf Carts OK, Gated, Golf, Handicap Access, Pool, Tennis Court(s)
Security Features: Gated Community, Gated with Guard
Association Amenities: Recreation Facilities, Tennis Court(s), Pool, Security, Golf Course, Clubhouse, Fitness Center, Gated, Shuffleboard Court, Pickleball
HOA Dues Include: Maintenance Grounds, Security, Recreation Facilities
Homeowners Association: Yes
HOA Dues: $50 / Monthly
Driving Directions
After checking in at the guardhouse (main entrance from State Road 50), continue straight on Brookridge Central Boulevard. Turn right onto Brookridge Boulevard, then take a left onto Adair Street, where you will find the property on the right.
Financial Considerations
Terms: Cash,Conventional,FHA,VA Loan
Tax/Property ID: R27-222-18-1474-0670-0030
Tax Amount: 2564.27
Tax Year: 2024
A broker reciprocity listing courtesy: TROPIC SHORES REALTY
Based on information provided by Stellar MLS as distributed by the MLS GRID. Information from the Internet Data Exchange is provided exclusively for consumers’ personal, non-commercial use, and such information may not be used for any purpose other than to identify prospective properties consumers may be interested in purchasing. This data is deemed reliable but is not guaranteed to be accurate by Edina Realty, Inc., or by the MLS. Edina Realty, Inc., is not a multiple listing service (MLS), nor does it offer MLS access.
Copyright 2025 Stellar MLS as distributed by the MLS GRID. All Rights Reserved.
Payment Calculator
Interest rate and annual percentage rate (APR) are based on current market conditions, are for informational purposes only, are subject to change without notice and may be subject to pricing add-ons related to property type, loan amount, loan-to-value, credit score and other variables. Estimated closing costs used in the APR calculation are assumed to be paid by the borrower at closing. If the closing costs are financed, the loan, APR and payment amounts will be higher. If the down payment is less than 20%, mortgage insurance may be required and could increase the monthly payment and APR. Contact us for details. Additional loan programs may be available. Accuracy is not guaranteed, and all products may not be available in all borrower's geographical areas and are based on their individual situation. This is not a credit decision or a commitment to lend.
Sales History & Tax Summary for 14243 Adair Street
Sales History
| Date | Price | Change |
|---|---|---|
| Currently not available. | ||
Tax Summary
| Tax Year | Estimated Market Value | Total Tax |
|---|---|---|
| Currently not available. | ||
Data powered by ATTOM Data Solutions. Copyright© 2025. Information deemed reliable but not guaranteed.
Schools
Schools nearby 14243 Adair Street
| Schools in attendance boundaries | Grades | Distance | Rating |
|---|---|---|---|
| Loading... | |||
| Schools nearby | Grades | Distance | Rating |
|---|---|---|---|
| Loading... | |||
Data powered by ATTOM Data Solutions. Copyright© 2025. Information deemed reliable but not guaranteed.
The schools shown represent both the assigned schools and schools by distance based on local school and district attendance boundaries. Attendance boundaries change based on various factors and proximity does not guarantee enrollment eligibility. Please consult your real estate agent and/or the school district to confirm the schools this property is zoned to attend. Information is deemed reliable but not guaranteed.
SchoolDigger ® Rating
The SchoolDigger rating system is a 1-5 scale with 5 as the highest rating. SchoolDigger ranks schools based on test scores supplied by each state's Department of Education. They calculate an average standard score by normalizing and averaging each school's test scores across all tests and grades.
Coming soon properties will soon be on the market, but are not yet available for showings.