1425 Serendipity Lane Clermont, FL 34714
For Sale MLS# S5127261
3 beds 3 baths 1,854 sq ft Townhouse/Twinhome
Details for 1425 Serendipity Lane
MLS# S5127261
Description for 1425 Serendipity Lane, Clermont, FL, 34714
Welcome to 1425 Serendipity Lane in Clermont, where modern comfort, flexibility, and opportunity come together in one beautifully furnished home. Located in the desirable Tranquility Townhomes community, this 2024-built townhome offers 3 bedrooms, 3 bathrooms, and thoughtfully designed living space created for the way people want to live, relax, and invest today. From the moment you enter, you feel the openness of the main living area, where modern finishes create a clean, stylish atmosphere that feels both elegant and welcoming. The open design makes it easy to imagine quiet mornings, family gatherings, or guests enjoying every space with ease. One of the most attractive features of this home is its flexibility. A first-floor bedroom and full bath provide convenience for guests, extended family, or added privacy, while upstairs you’ll find the spacious primary suite, additional bedrooms, and a loft-style family room that gives you even more room to spread out, unwind, or create a second living space. Step outside and enjoy your own private screened heated pool the perfect place to relax and enjoy the Florida lifestyle. This property becomes even more compelling because it is offered fully furnished, has no CDD, and offers flexibility for short-term rental, long-term rental, or personal use, making it appealing for buyers seeking a vacation home, investment property, or full-time residence. Ideally located near major attractions, shopping, dining, and main roadways, this is more than just a property it is a smart opportunity in Central Florida. Lake county schools.
Listing Information
Property Type: Residential, Townhouse
Status: Active
Bedrooms: 3
Bathrooms: 3
Square Feet: 1,854 sq ft
Year Built: 2024
Stories: 2 Story
Construction: Block,Stucco,Wood Frame
Subdivision: Tranquility Twnhms
Foundation: Block,Slab
County: Lake
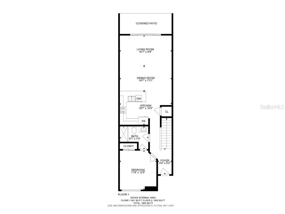
Room Information
Main Floor
Bathroom 3: 7x9
Bedroom 3: 12x11
Kitchen: 10x16
Living Room: 7x16
Upper Floor
Family Room: 12x13
Bathroom 2: 4x8
Primary Bathroom: 8x9
Bedroom 2: 11x13
Primary Bedroom: 14x16
Bathrooms
Full Baths: 3
Additonal Room Information
Laundry: Laundry Closet, Upper Level, Inside
Interior Features
Appliances: Microwave, Dishwasher, Disposal, Dryer, Washer, Range, Refrigerator
Flooring: Carpet,Ceramic Tile
Doors/Windows: Blinds
Additional Interior Features: Split Bedrooms, Walk-In Closet(s), Tray Ceiling(s), Upper Level Primary, Living/Dining Room, High Ceilings, Ceiling Fan(s), Open Floorplan, Stone Counters, Kitchen/Family Room Combo
Utilities
Water: Public
Sewer: Public Sewer
Other Utilities: Cable Available,Electricity Available,Water Available
Cooling: Ceiling Fan(s), Central Air
Heating: Electric
Exterior / Lot Features
Roof: Shingle
Pool: Heated, Association, Community, In Ground, Screen Enclosure, Gunite
Lot View: Trees/Woods
Additional Exterior/Lot Features: Lighting, Outside City Limits
Community Features
Community Features: Community Mailbox, None, Sidewalks, Pool, Playground
Security Features: Smoke Detector(s)
Association Amenities: Playground, Pool, Park
HOA Dues Include: Water
Homeowners Association: Yes
HOA Dues: $250 / Monthly
Driving Directions
Head north on US-27 N, Turn right onto Woodcrest Way, Turn left onto Serenidad Blvd, Keep right to continue on Wanderlust Ln, Turn right onto Blessing Dr, Continue straight onto Serendipity Ln, property will be on the left
Financial Considerations
Terms: Cash,Conventional,FHA,VA Loan
Tax/Property ID: 25-24-26-0010-000-01900
Tax Amount: 540
Tax Year: 2024
A broker reciprocity listing courtesy: LPT REALTY, LLC
Based on information provided by Stellar MLS as distributed by the MLS GRID. Information from the Internet Data Exchange is provided exclusively for consumers’ personal, non-commercial use, and such information may not be used for any purpose other than to identify prospective properties consumers may be interested in purchasing. This data is deemed reliable but is not guaranteed to be accurate by Edina Realty, Inc., or by the MLS. Edina Realty, Inc., is not a multiple listing service (MLS), nor does it offer MLS access.
Copyright 2026 Stellar MLS as distributed by the MLS GRID. All Rights Reserved.
Payment Calculator
Interest rate and annual percentage rate (APR) are based on current market conditions, are for informational purposes only, are subject to change without notice and may be subject to pricing add-ons related to property type, loan amount, loan-to-value, credit score and other variables. Estimated closing costs used in the APR calculation are assumed to be paid by the borrower at closing. If the closing costs are financed, the loan, APR and payment amounts will be higher. If the down payment is less than 20%, mortgage insurance may be required and could increase the monthly payment and APR. Contact us for details. Additional loan programs may be available. Accuracy is not guaranteed, and all products may not be available in all borrower's geographical areas and are based on their individual situation. This is not a credit decision or a commitment to lend.
Sales History & Tax Summary for 1425 Serendipity Lane
Sales History
| Date | Price | |
|---|---|---|
| Currently not available. | ||
Tax Summary
| Tax Year | Estimated Market Value | Total Tax |
|---|---|---|
| Currently not available. | ||
Data powered by ATTOM Data Solutions. Copyright© 2026. Information deemed reliable but not guaranteed.
Schools
Schools nearby 1425 Serendipity Lane
| Schools in attendance boundaries | Grades | Distance | Rating |
|---|---|---|---|
| Loading... | |||
| Schools nearby | Grades | Distance | Rating |
|---|---|---|---|
| Loading... | |||
Data powered by ATTOM Data Solutions. Copyright© 2026. Information deemed reliable but not guaranteed.
The schools shown represent both the assigned schools and schools by distance based on local school and district attendance boundaries. Attendance boundaries change based on various factors and proximity does not guarantee enrollment eligibility. Please consult your real estate agent and/or the school district to confirm the schools this property is zoned to attend. Information is deemed reliable but not guaranteed.
SchoolDigger ® Rating
The SchoolDigger rating system is a 1-5 scale with 5 as the highest rating. SchoolDigger ranks schools based on test scores supplied by each state's Department of Education. They calculate an average standard score by normalizing and averaging each school's test scores across all tests and grades.
Coming soon properties will soon be on the market, but are not yet available for showings.