$425,000
14368 Overlook Avenue Port Charlotte, FL 33981
For Sale MLS# D6144770
4 beds 3 baths 2,265 sq ft Single Family
Details for 14368 Overlook Avenue
MLS# D6144770
Description for 14368 Overlook Avenue, Port Charlotte, FL, 33981
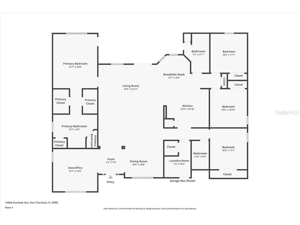
Welcome to this spacious 4-bedroom home with a den and a highly desirable 3-car garage located in the growing waterfront community of South Gulf Cove. With 2265 sq. ft. of living space, this home offers a functional layout designed for comfort, flexibility, and everyday living. The separate den provides the perfect option for a home office, playroom, fitness area, or additional guest space. This dry lot property features an open living area, split-bedroom floor plan, dedicated dining space, and generously sized bedrooms, accommodating a variety of household needs. The primary suite offers privacy and convenience with an en-suite bath and walk-in closets. Located in one of Southwest Florida’s fastest-expanding residential areas, residents enjoy close proximity to local amenities including South Gulf Cove Park, which offers a playground, covered picnic pavilion, sidewalks, sports areas, and a community boat ramp providing access to over 50 miles of canals leading to Charlotte Harbor and the Gulf of Mexico. With nearby public pickleball courts, walking paths, and several community recreation areas, this neighborhood supports an active coastal lifestyle. South Gulf Cove is minutes from shopping, schools, restaurants, golf courses, and the gorgeous beaches of Boca Grande and Englewood. If you're looking for a well-designed home with room to grow in a desirable Florida community, this property is worth a closer look. Schedule your private showing today!
Listing Information
Property Type: Residential, Single Family Residence
Status: Active
Bedrooms: 4
Bathrooms: 3
Lot Size: 0.23 Acres
Square Feet: 2,265 sq ft
Year Built: 2024
Garage: Yes
Stories: 1 Story
Construction: Block,Stucco
Subdivision: Port Charlotte Sec 093
Foundation: Slab,Stem Wall
County: Charlotte
School Information
Elementary: Myakka River Elementary
Middle: L.A. Ainger Middle
High: Lemon Bay High
Room Information
Main Floor
Bathroom 2: 5x8
Great Room: 18x22
Primary Bathroom: 9.5x12.5
Bedroom 4: 10.5x11
Bedroom 3: 10.5x11
Bedroom 2: 11.5x11
Primary Bedroom: 13x15
Kitchen: 12x13
Dining Room: 10x11
Living Room: 12x13
Bathrooms
Full Baths: 3
Additonal Room Information
Laundry: Laundry Room
Interior Features
Appliances: Washer, Dishwasher, Disposal, Dryer, Microwave, Range, Refrigerator
Flooring: Carpet,Ceramic Tile
Additional Interior Features: Split Bedrooms, Walk-In Closet(s), Tray Ceiling(s), High Ceilings, Stone Counters, Kitchen/Family Room Combo
Utilities
Water: Public
Sewer: Public Sewer
Other Utilities: Cable Connected,Electricity Connected,High Speed Internet Available
Cooling: Central Air
Heating: Central
Exterior / Lot Features
Attached Garage: Attached Garage
Garage Spaces: 3
Roof: Shingle
Lot Dimensions: 80X125
Additional Exterior/Lot Features: Sprinkler/Irrigation, Storm/Security Shutters, French Patio Doors
Community Features
Community Features: Dock, Sidewalks, Playground, Clubhouse, Handicap Access, Boat Facilities, Park, Fishing, Water Access
Association Amenities: Clubhouse, Basketball Court
Homeowners Association: Yes
HOA Dues: $120 / Annually
Driving Directions
FROM FL-776... TURN ONTO GASPARILLA RD (771)... TURN LEFT ONTO SAN DOMINGO BLVD... TURN RIGHT ONTO CONSUL ST...TURN RIGHT ONTO DEFOE ST... TURN LEFT ONTO OVERLOOK AVE... HOME ON LEFT
Financial Considerations
Terms: Cash,Conventional,FHA,VA Loan
Tax/Property ID: 412116408012
Tax Amount: 620.53
Tax Year: 2024
A broker reciprocity listing courtesy: PARADISE EXCLUSIVE INC
Based on information provided by Stellar MLS as distributed by the MLS GRID. Information from the Internet Data Exchange is provided exclusively for consumers’ personal, non-commercial use, and such information may not be used for any purpose other than to identify prospective properties consumers may be interested in purchasing. This data is deemed reliable but is not guaranteed to be accurate by Edina Realty, Inc., or by the MLS. Edina Realty, Inc., is not a multiple listing service (MLS), nor does it offer MLS access.
Copyright 2025 Stellar MLS as distributed by the MLS GRID. All Rights Reserved.
Payment Calculator
Interest rate and annual percentage rate (APR) are based on current market conditions, are for informational purposes only, are subject to change without notice and may be subject to pricing add-ons related to property type, loan amount, loan-to-value, credit score and other variables. Estimated closing costs used in the APR calculation are assumed to be paid by the borrower at closing. If the closing costs are financed, the loan, APR and payment amounts will be higher. If the down payment is less than 20%, mortgage insurance may be required and could increase the monthly payment and APR. Contact us for details. Additional loan programs may be available. Accuracy is not guaranteed, and all products may not be available in all borrower's geographical areas and are based on their individual situation. This is not a credit decision or a commitment to lend.
Sales History & Tax Summary for 14368 Overlook Avenue
Sales History
| Date | Price | Change |
|---|---|---|
| Currently not available. | ||
Tax Summary
| Tax Year | Estimated Market Value | Total Tax |
|---|---|---|
| Currently not available. | ||
Data powered by ATTOM Data Solutions. Copyright© 2025. Information deemed reliable but not guaranteed.
Schools
Schools nearby 14368 Overlook Avenue
| Schools in attendance boundaries | Grades | Distance | Rating |
|---|---|---|---|
| Loading... | |||
| Schools nearby | Grades | Distance | Rating |
|---|---|---|---|
| Loading... | |||
Data powered by ATTOM Data Solutions. Copyright© 2025. Information deemed reliable but not guaranteed.
The schools shown represent both the assigned schools and schools by distance based on local school and district attendance boundaries. Attendance boundaries change based on various factors and proximity does not guarantee enrollment eligibility. Please consult your real estate agent and/or the school district to confirm the schools this property is zoned to attend. Information is deemed reliable but not guaranteed.
SchoolDigger ® Rating
The SchoolDigger rating system is a 1-5 scale with 5 as the highest rating. SchoolDigger ranks schools based on test scores supplied by each state's Department of Education. They calculate an average standard score by normalizing and averaging each school's test scores across all tests and grades.
Coming soon properties will soon be on the market, but are not yet available for showings.