14421 Americana Circle #204 Tampa, FL 33613
For Sale MLS# TB8444040
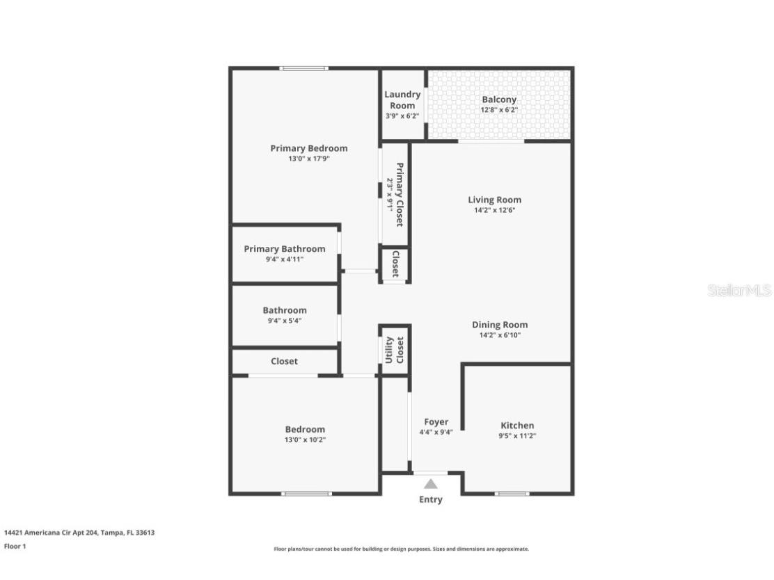
2 beds 2 baths 1,026 sq ft Condo
Details for 14421 Americana Circle #204
MLS# TB8444040
Description for 14421 Americana Circle #204, Tampa, FL, 33613
LOCATION IS EVERYTHING! This charming 2-bedroom, 2-bathroom condominium in the gated community of Somerset Park offers comfort, convenience, and value just 10 minutes from USF. The SECOND FLOOR unit features a spacious open-concept layout with abundant natural light, vinyl wood-look flooring, a private balcony, and in-unit laundry. Recent UPDATES include: Water Heater (2019), A/C (2023), Refrigerator (2024), and interior painted (2024). Perfect for an investor who wants proximity to USF, first-time buyer, or anyone seeking maintenance-free living. This pet-friendly condo includes an assigned parking space and ample guest parking. Low HOA dues cover water, sewer, trash, exterior maintenance, paint, roof, pool, dog park, security gate, landscaping, basketball and tennis courts, and building insurance. NO FLOOD ZONE, and close to major highways, parks, trails, the VA Hospital, Moffitt, top restaurants, breweries, and Tampa International Airport, this well-maintained and move-in-ready condo offers an unbeatable combination of lifestyle, location, and value in one of Tampa’s best-kept secrets—Somerset Park. CHECK OUT THE 3D VIRTUAL TOUR!
Listing Information
Property Type: Residential, Condominium
Status: Active
Bedrooms: 2
Bathrooms: 2
Square Feet: 1,026 sq ft
Year Built: 1974
Stories: 1 Story
Construction: Concrete
Property Attached: Yes
Subdivision: Somerset Park A Condo
Foundation: Slab
County: Hillsborough
Room Information
Main Floor
Living Room:
Kitchen:
Primary Bedroom:
Bathrooms
Full Baths: 2
Additonal Room Information
Laundry: Laundry Closet, Outside
Interior Features
Appliances: Electric Water Heater, Range Hood, Dishwasher, Disposal, Dryer, Range, Refrigerator
Flooring: Ceramic Tile,Vinyl
Doors/Windows: Blinds
Additional Interior Features: Ceiling Fan(s)
Utilities
Water: Public
Sewer: Public Sewer
Other Utilities: Electricity Available,Electricity Connected,High Speed Internet Available,Municipal Utilities,Sewer Connected,Water Available,Water Connected
Cooling: Central Air, Ceiling Fan(s)
Heating: Central
Exterior / Lot Features
Parking Description: Assigned, Guest, Open
Roof: Shingle
Pool: Association, Community
Additional Exterior/Lot Features: Balcony, French Patio Doors, Balcony, Covered, Rear Porch
Community Features
Community Features: Community Mailbox
Association Amenities: Pool, Tennis Court(s)
HOA Dues Include: Trash, Sewer, Association Management, Maintenance Structure, Pool(s), Maintenance Grounds
Homeowners Association: Yes
HOA Dues: $409 / Monthly
Driving Directions
From Bearrs Ave turn South onto Somerset Park Drive and make an immediate right. Go thru gate and follow the road until you arrive at 14421 Americana unit 204 on left.
Financial Considerations
Terms: Cash,Conventional
Tax/Property ID: U-05-28-19-89J-000009-02836.B
Tax Amount: 1536.79
Tax Year: 2024
A broker reciprocity listing courtesy: ARC REALTY GROUP
Based on information provided by Stellar MLS as distributed by the MLS GRID. Information from the Internet Data Exchange is provided exclusively for consumers’ personal, non-commercial use, and such information may not be used for any purpose other than to identify prospective properties consumers may be interested in purchasing. This data is deemed reliable but is not guaranteed to be accurate by Edina Realty, Inc., or by the MLS. Edina Realty, Inc., is not a multiple listing service (MLS), nor does it offer MLS access.
Copyright 2025 Stellar MLS as distributed by the MLS GRID. All Rights Reserved.
Payment Calculator
Interest rate and annual percentage rate (APR) are based on current market conditions, are for informational purposes only, are subject to change without notice and may be subject to pricing add-ons related to property type, loan amount, loan-to-value, credit score and other variables. Estimated closing costs used in the APR calculation are assumed to be paid by the borrower at closing. If the closing costs are financed, the loan, APR and payment amounts will be higher. If the down payment is less than 20%, mortgage insurance may be required and could increase the monthly payment and APR. Contact us for details. Additional loan programs may be available. Accuracy is not guaranteed, and all products may not be available in all borrower's geographical areas and are based on their individual situation. This is not a credit decision or a commitment to lend.
Sales History & Tax Summary for 14421 Americana Circle #204
Sales History
| Date | Price | Change |
|---|---|---|
| Currently not available. | ||
Tax Summary
| Tax Year | Estimated Market Value | Total Tax |
|---|---|---|
| Currently not available. | ||
Data powered by ATTOM Data Solutions. Copyright© 2025. Information deemed reliable but not guaranteed.
Schools
Schools nearby 14421 Americana Circle #204
| Schools in attendance boundaries | Grades | Distance | Rating |
|---|---|---|---|
| Loading... | |||
| Schools nearby | Grades | Distance | Rating |
|---|---|---|---|
| Loading... | |||
Data powered by ATTOM Data Solutions. Copyright© 2025. Information deemed reliable but not guaranteed.
The schools shown represent both the assigned schools and schools by distance based on local school and district attendance boundaries. Attendance boundaries change based on various factors and proximity does not guarantee enrollment eligibility. Please consult your real estate agent and/or the school district to confirm the schools this property is zoned to attend. Information is deemed reliable but not guaranteed.
SchoolDigger ® Rating
The SchoolDigger rating system is a 1-5 scale with 5 as the highest rating. SchoolDigger ranks schools based on test scores supplied by each state's Department of Education. They calculate an average standard score by normalizing and averaging each school's test scores across all tests and grades.
Coming soon properties will soon be on the market, but are not yet available for showings.