146 Winter Ridge Drive #146 Winter Haven, FL 33881 - LAKE SMART
For Sale MLS# P4936794
2 beds 2 baths 1,289 sq ft Condo
Details for 146 Winter Ridge Drive #146
MLS# P4936794
Description for 146 Winter Ridge Drive #146, Winter Haven, FL, 33881 - LAKE SMART
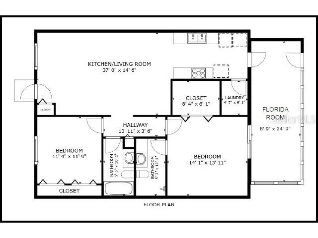
Beautiful two-bedroom, two-bath condominium in the desirable waterfront community of Winter Ridge with direct access to Lake Smart on the Chain of Lakes. This corner end unit features laminate flooring throughout the main living areas and carpet in both bedrooms. Open living and dining area with a galley-style kitchen offering plenty of cabinets, a walk-in pantry, and a washer and dryer. The primary suite includes a large walk-in closet, private bath, and sliding glass doors leading to the enclosed lanai. The second bedroom is located at the opposite end of the hall next to the guest bath for added privacy. Additional features include a covered carport, hurricane shutters, and an alarm system. Community amenities include a heated pool, shuffleboard, boat slips, and a dock on Lake Smart. Each unit offers two assigned parking spaces plus additional guest parking near the pool and clubhouse. The HOA covers roof and exterior maintenance, lawn care, roads, pool, and dock maintenance. Call today to schedule your private showing!
Listing Information
Property Type: Residential, Condominium
Status: Active
Bedrooms: 2
Bathrooms: 2
Lot Size: 0.03 Acres
Square Feet: 1,289 sq ft
Year Built: 1997
Stories: 1 Story
Construction: Block,Stucco
Subdivision: Winter Ridge Condo
Foundation: Slab
County: Polk
School Information
Elementary: Lake Alfred Elem
Middle: Denison Middle
High: Winter Haven Senior
Room Information
Main Floor
Porch: 8.75x25
Bedroom 2: 11.25x11.5
Primary Bedroom: 14x14.25
Kitchen: 8x13.25
Dining Room: 14.75x8.25
Living Room: 14.75x16
Bathrooms
Full Baths: 2
Additonal Room Information
Laundry: In Kitchen
Interior Features
Appliances: Electric Water Heater, Washer, Dishwasher, Dryer, Microwave, Range, Refrigerator
Flooring: Carpet,Ceramic Tile,Laminate
Doors/Windows: Blinds
Additional Interior Features: Split Bedrooms, Walk-In Closet(s), Living/Dining Room, Ceiling Fan(s), Main Level Primary
Utilities
Water: Public
Sewer: Public Sewer
Other Utilities: Municipal Utilities
Cooling: Ceiling Fan(s), Central Air
Heating: Central, Electric
Exterior / Lot Features
Parking Description: Assigned, Guest
Roof: Shingle
Pool: Association, Community
Additional Exterior/Lot Features: Storm/Security Shutters, Rear Porch, Enclosed, Corner Lot, Buyer Approval Required
Waterfront Details
Standard Water Body: LAKE SMART
Community Features
Community Features: Pool, Clubhouse
Security Features: Security System, Security System Owned, Smoke Detector(s)
Association Amenities: Recreation Facilities, Pool, Shuffleboard Court
HOA Dues Include: Maintenance Structure, Pool(s), Reserve Fund, Recreation Facilities, Insurance, Maintenance Grounds
Homeowners Association: Yes
HOA Dues: $249 / Monthly
Driving Directions
Head north on 1st St S toward downtown Winter Haven. Continue through the downtown grid until you reach Avenue T N / FL-544 Continue (east) onto FL-544 / Avenue T N. Turn right into WINTER RIDGE Community Keep straight until you reach 146 Winter Ridge Dr on your left.
Financial Considerations
Terms: Cash,Conventional,FHA,VA Loan
Tax/Property ID: 26-28-09-530002-001600
Tax Amount: 268.35
Tax Year: 2024
A broker reciprocity listing courtesy: LOCKHART & ASSOCIATES INC
Based on information provided by Stellar MLS as distributed by the MLS GRID. Information from the Internet Data Exchange is provided exclusively for consumers’ personal, non-commercial use, and such information may not be used for any purpose other than to identify prospective properties consumers may be interested in purchasing. This data is deemed reliable but is not guaranteed to be accurate by Edina Realty, Inc., or by the MLS. Edina Realty, Inc., is not a multiple listing service (MLS), nor does it offer MLS access.
Copyright 2025 Stellar MLS as distributed by the MLS GRID. All Rights Reserved.
Payment Calculator
Interest rate and annual percentage rate (APR) are based on current market conditions, are for informational purposes only, are subject to change without notice and may be subject to pricing add-ons related to property type, loan amount, loan-to-value, credit score and other variables. Estimated closing costs used in the APR calculation are assumed to be paid by the borrower at closing. If the closing costs are financed, the loan, APR and payment amounts will be higher. If the down payment is less than 20%, mortgage insurance may be required and could increase the monthly payment and APR. Contact us for details. Additional loan programs may be available. Accuracy is not guaranteed, and all products may not be available in all borrower's geographical areas and are based on their individual situation. This is not a credit decision or a commitment to lend.
Sales History & Tax Summary for 146 Winter Ridge Drive #146
Sales History
| Date | Price | Change |
|---|---|---|
| Currently not available. | ||
Tax Summary
| Tax Year | Estimated Market Value | Total Tax |
|---|---|---|
| Currently not available. | ||
Data powered by ATTOM Data Solutions. Copyright© 2025. Information deemed reliable but not guaranteed.
Schools
Schools nearby 146 Winter Ridge Drive #146
| Schools in attendance boundaries | Grades | Distance | Rating |
|---|---|---|---|
| Loading... | |||
| Schools nearby | Grades | Distance | Rating |
|---|---|---|---|
| Loading... | |||
Data powered by ATTOM Data Solutions. Copyright© 2025. Information deemed reliable but not guaranteed.
The schools shown represent both the assigned schools and schools by distance based on local school and district attendance boundaries. Attendance boundaries change based on various factors and proximity does not guarantee enrollment eligibility. Please consult your real estate agent and/or the school district to confirm the schools this property is zoned to attend. Information is deemed reliable but not guaranteed.
SchoolDigger ® Rating
The SchoolDigger rating system is a 1-5 scale with 5 as the highest rating. SchoolDigger ranks schools based on test scores supplied by each state's Department of Education. They calculate an average standard score by normalizing and averaging each school's test scores across all tests and grades.
Coming soon properties will soon be on the market, but are not yet available for showings.