1479 San Cristobal Avenue #2104 Punta Gorda, FL 33983 - LAKE RIO
For Sale MLS# C7522373
2 beds 2 baths 1,250 sq ft Condo
Details for 1479 San Cristobal Avenue #2104
MLS# C7522373
Description for 1479 San Cristobal Avenue #2104, Punta Gorda, FL, 33983 - LAKE RIO
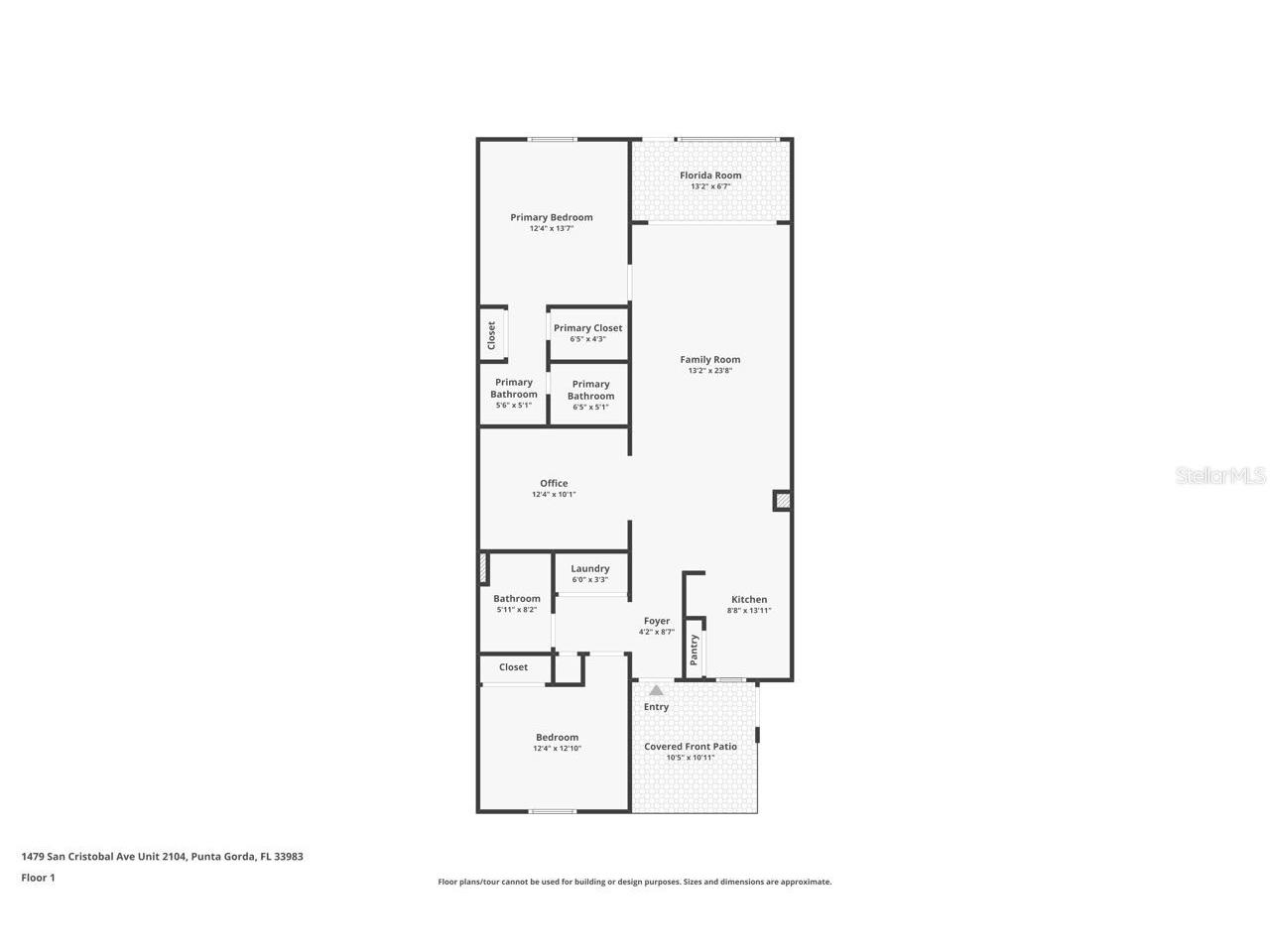
One or more photo(s) has been virtually staged. Beautiful lake views and breathtaking sunsets await you in this perfect first-floor condo located in Lakes Edge at Deep Creek—one of the few newer and most sought-after communities in the area. This 2-bedroom, 2-bath residence with a versatile bonus room, ideal for a home office or even a third bedroom, offers a bright and open floor plan designed for both comfort and style. Inside, you’ll find newer vinyl plank flooring, tile floors in the kitchen and bath and carpet in the bedrooms. The kitchen is well-appointed with stainless steel appliances, recessed lighting, abundant cabinet and counter space, a breakfast bar, double pantry, and a cozy nook for a small dining table. The living room features a tray ceiling with crown molding and sliding glass doors that open to the tiled screened lanai, where you can unwind while enjoying peaceful lake views and stunning sunsets. The dining area flows seamlessly into the living room, creating a welcoming space for entertaining. The spacious primary suite includes a tray ceiling with crown molding, walk-in closet, linen closet, additional storage closet, and a private en-suite bathroom with a walk-in shower. The guest bedroom offers a double closet, and the guest bathroom includes a tub/shower combination. An inside laundry closet with a stacked washer and dryer adds convenience, along with an exterior storage closet for extra space. Covered parking (PS 2104) is included, and the community pool is just steps away, complete with a covered seating area, restrooms, and lounge chairs for relaxing in the sun. Ideally located near shopping, restaurants, golf courses, parks, I-75, and more. Roof replacement in 2023. Don’t miss your chance to enjoy lakefront living at its best—schedule your showing today!
Listing Information
Property Type: Residential, Condominium
Status: Active
Bedrooms: 2
Bathrooms: 2
Lot Size: 0.25 Acres
Square Feet: 1,250 sq ft
Year Built: 2005
Stories: 1 Story
Construction: Block,Stucco
Subdivision: Lakes Edge At Deep Creek Bldg 02
Foundation: Slab
County: Charlotte
School Information
Elementary: Deep Creek Elementary
Middle: Punta Gorda Middle
High: Charlotte High
Room Information
Main Floor
Porch: 12x7
Bedroom 2: 12x10
Primary Bedroom: 13x12
Bonus Room: 12x9
Living Room: 12x18
Dinette: 9x5
Kitchen: 9x14
Bathrooms
Full Baths: 2
Additonal Room Information
Laundry: Laundry Closet, Inside
Interior Features
Appliances: Electric Water Heater, Washer, Cooktop, Dishwasher, Dryer, Microwave, Range, Refrigerator
Flooring: Carpet,Tile,Vinyl
Additional Interior Features: Eat-In Kitchen, Ceiling Fan(s), Split Bedrooms, Walk-In Closet(s), Tray Ceiling(s), Crown Molding, Living/Dining Room, Open Floorplan
Utilities
Water: Public
Sewer: Public Sewer
Other Utilities: Electricity Connected,Sewer Connected,Water Connected
Cooling: Ceiling Fan(s), Central Air
Heating: Central
Exterior / Lot Features
Parking Description: Guest
Roof: Shingle
Pool: Community
Lot View: Lake,Water
Additional Exterior/Lot Features: Storage, Covered, Front Porch, Screened, Rear Porch, Buyer Approval Required, Near Golf Course
Waterfront Details
Standard Water Body: LAKE RIO
Water Front Features: Lake Front
Community Features
Community Features: Community Mailbox, Lake, Pool, Sidewalks
HOA Dues Include: Maintenance Grounds, Maintenance Structure, Reserve Fund, Pool(s)
Driving Directions
Rampart Blvd. Take left onto San Cristobal. Take left into first complex on the left. Building 2, unit 2104.
Financial Considerations
Terms: Cash,Conventional
Tax/Property ID: 402309853017
Tax Amount: 3355.12
Tax Year: 2025
A broker reciprocity listing courtesy: KW PEACE RIVER PARTNERS
Based on information provided by Stellar MLS as distributed by the MLS GRID. Information from the Internet Data Exchange is provided exclusively for consumers’ personal, non-commercial use, and such information may not be used for any purpose other than to identify prospective properties consumers may be interested in purchasing. This data is deemed reliable but is not guaranteed to be accurate by Edina Realty, Inc., or by the MLS. Edina Realty, Inc., is not a multiple listing service (MLS), nor does it offer MLS access.
Copyright 2026 Stellar MLS as distributed by the MLS GRID. All Rights Reserved.
Payment Calculator
Interest rate and annual percentage rate (APR) are based on current market conditions, are for informational purposes only, are subject to change without notice and may be subject to pricing add-ons related to property type, loan amount, loan-to-value, credit score and other variables. Estimated closing costs used in the APR calculation are assumed to be paid by the borrower at closing. If the closing costs are financed, the loan, APR and payment amounts will be higher. If the down payment is less than 20%, mortgage insurance may be required and could increase the monthly payment and APR. Contact us for details. Additional loan programs may be available. Accuracy is not guaranteed, and all products may not be available in all borrower's geographical areas and are based on their individual situation. This is not a credit decision or a commitment to lend.
Sales History & Tax Summary for 1479 San Cristobal Avenue #2104
Sales History
| Date | Price | |
|---|---|---|
| Currently not available. | ||
Tax Summary
| Tax Year | Estimated Market Value | Total Tax |
|---|---|---|
| Currently not available. | ||
Data powered by ATTOM Data Solutions. Copyright© 2026. Information deemed reliable but not guaranteed.
Schools
Schools nearby 1479 San Cristobal Avenue #2104
| Schools in attendance boundaries | Grades | Distance | Rating |
|---|---|---|---|
| Loading... | |||
| Schools nearby | Grades | Distance | Rating |
|---|---|---|---|
| Loading... | |||
Data powered by ATTOM Data Solutions. Copyright© 2026. Information deemed reliable but not guaranteed.
The schools shown represent both the assigned schools and schools by distance based on local school and district attendance boundaries. Attendance boundaries change based on various factors and proximity does not guarantee enrollment eligibility. Please consult your real estate agent and/or the school district to confirm the schools this property is zoned to attend. Information is deemed reliable but not guaranteed.
SchoolDigger ® Rating
The SchoolDigger rating system is a 1-5 scale with 5 as the highest rating. SchoolDigger ranks schools based on test scores supplied by each state's Department of Education. They calculate an average standard score by normalizing and averaging each school's test scores across all tests and grades.
Coming soon properties will soon be on the market, but are not yet available for showings.