$299,900
148 Lookout Drive Apollo Beach, FL 33572
For Sale MLS# TB8446871
3 beds 2 baths 1,809 sq ft Single Family
Details for 148 Lookout Drive
MLS# TB8446871
Description for 148 Lookout Drive, Apollo Beach, FL, 33572
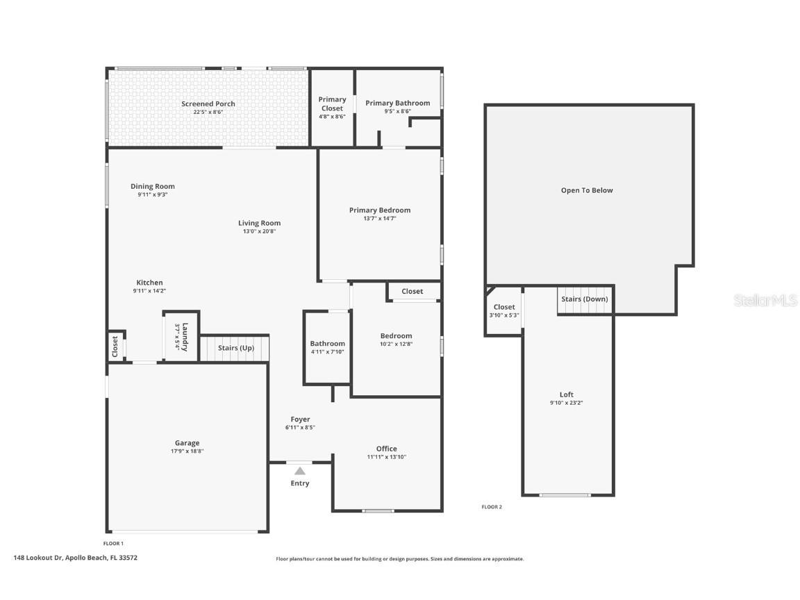
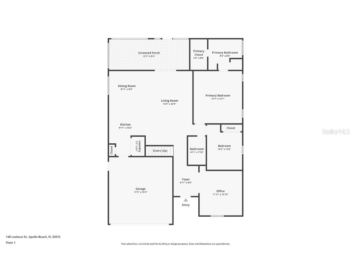
Welcome to this charming 3-bedroom, 2-bathroom home located in the desirable community of Apollo Beach. Built in 2002, this residence offers approximately 1,809 sq. ft. of living space (per public records) and sits on a nicely sized lot, providing a comfortable and inviting layout. Step inside to a bright, open floor plan with high ceilings, that seamlessly connects the living, dining, and kitchen areas—ideal for everyday living and entertaining alike. Sliding glass doors open to the screened lanai enhancing indoor-outdoor flow and offering a space to relax or host. You’ll find three thoughtfully sized bedrooms and two full baths, giving plenty of room for families, guests or a home office. Outside, the exterior is well-maintained and features stucco construction with a composition roof. The lot affords privacy and potential for personalization. The home’s location places you within easy reach of local amenities, schools, and the beautiful waterfront lifestyle that Apollo Beach is known for. You will be only minutes from the Manatee Viewing Center, and a short drive from Apollo Beach, Bradenton Beach and Sarasota. Whether you’re seeking your next home or an investment opportunity in a strong Florida market, this property holds great potential. Don’t miss your chance to make it your own!
Listing Information
Property Type: Residential, Single Family Residence
Status: Active
Bedrooms: 3
Bathrooms: 2
Lot Size: 0.12 Acres
Square Feet: 1,809 sq ft
Year Built: 2002
Garage: Yes
Stories: 2 Story
Construction: Block
Construction Display: New Construction
Subdivision: Edgewater Village Unit 1
Foundation: Slab
County: Hillsborough
Construction Status: New Construction
School Information
Elementary: Apollo Beach-Hb
Middle: Eisenhower-Hb
High: Lennard-Hb
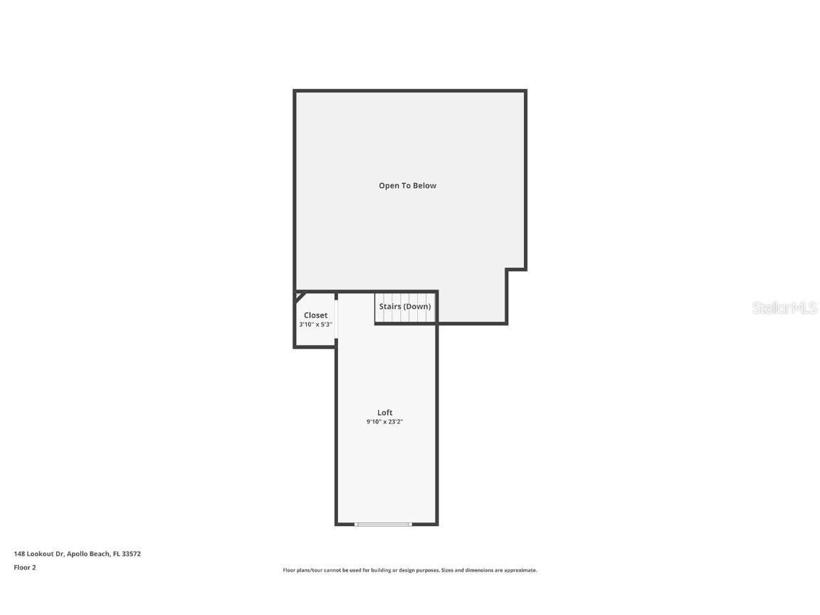
Room Information
Main Floor
Family Room:
Primary Bathroom:
Bathroom 1:
Living Room:
Bedroom 1:
Primary Bedroom:
Kitchen:
Bathrooms
Full Baths: 2
Additonal Room Information
Laundry: In Kitchen
Interior Features
Appliances: Cooktop, Dishwasher, Disposal, Microwave, Range, Refrigerator
Flooring: Carpet,Ceramic Tile
Additional Interior Features: Walk-In Closet(s), Ceiling Fan(s), Built-in Features, High Ceilings, Kitchen/Family Room Combo, Open Floorplan, Separate/Formal Living Room, Solid Surface Counters, Wood Cabinets, Main Level Primary
Utilities
Water: Public
Sewer: Public Sewer
Other Utilities: Cable Available,Electricity Connected,Sewer Connected
Cooling: Ceiling Fan(s), Central Air
Heating: Electric
Exterior / Lot Features
Attached Garage: Attached Garage
Garage Spaces: 2
Roof: Shingle
Lot View: City
Lot Dimensions: 50x103
Additional Exterior/Lot Features: Screened, Landscaped, Oversized Lot
Community Features
Community Features: Sidewalks
Driving Directions
From HWY 41 turn on Apollo Beach BLVD. Make left turn on Golf and Sea BLVD. Turn Left onto Lookout Drive. Home will be on left
Financial Considerations
Terms: Cash,Conventional,FHA
Tax/Property ID: U-22-31-19-1TS-000001-00029.0
Tax Amount: 5695.37
Tax Year: 2024
A broker reciprocity listing courtesy: DALTON WADE INC
Based on information provided by Stellar MLS as distributed by the MLS GRID. Information from the Internet Data Exchange is provided exclusively for consumers’ personal, non-commercial use, and such information may not be used for any purpose other than to identify prospective properties consumers may be interested in purchasing. This data is deemed reliable but is not guaranteed to be accurate by Edina Realty, Inc., or by the MLS. Edina Realty, Inc., is not a multiple listing service (MLS), nor does it offer MLS access.
Copyright 2025 Stellar MLS as distributed by the MLS GRID. All Rights Reserved.
Payment Calculator
Interest rate and annual percentage rate (APR) are based on current market conditions, are for informational purposes only, are subject to change without notice and may be subject to pricing add-ons related to property type, loan amount, loan-to-value, credit score and other variables. Estimated closing costs used in the APR calculation are assumed to be paid by the borrower at closing. If the closing costs are financed, the loan, APR and payment amounts will be higher. If the down payment is less than 20%, mortgage insurance may be required and could increase the monthly payment and APR. Contact us for details. Additional loan programs may be available. Accuracy is not guaranteed, and all products may not be available in all borrower's geographical areas and are based on their individual situation. This is not a credit decision or a commitment to lend.
Sales History & Tax Summary for 148 Lookout Drive
Sales History
| Date | Price | Change |
|---|---|---|
| Currently not available. | ||
Tax Summary
| Tax Year | Estimated Market Value | Total Tax |
|---|---|---|
| Currently not available. | ||
Data powered by ATTOM Data Solutions. Copyright© 2025. Information deemed reliable but not guaranteed.
Schools
Schools nearby 148 Lookout Drive
| Schools in attendance boundaries | Grades | Distance | Rating |
|---|---|---|---|
| Loading... | |||
| Schools nearby | Grades | Distance | Rating |
|---|---|---|---|
| Loading... | |||
Data powered by ATTOM Data Solutions. Copyright© 2025. Information deemed reliable but not guaranteed.
The schools shown represent both the assigned schools and schools by distance based on local school and district attendance boundaries. Attendance boundaries change based on various factors and proximity does not guarantee enrollment eligibility. Please consult your real estate agent and/or the school district to confirm the schools this property is zoned to attend. Information is deemed reliable but not guaranteed.
SchoolDigger ® Rating
The SchoolDigger rating system is a 1-5 scale with 5 as the highest rating. SchoolDigger ranks schools based on test scores supplied by each state's Department of Education. They calculate an average standard score by normalizing and averaging each school's test scores across all tests and grades.
Coming soon properties will soon be on the market, but are not yet available for showings.