148 Whiteland Bend Nokomis, FL 34275
For Sale MLS# A4664319
3 beds 2 baths 1,483 sq ft Single Family
Details for 148 Whiteland Bend
MLS# A4664319
Description for 148 Whiteland Bend, Nokomis, FL, 34275
One or more photo(s) has been virtually staged. Short Sale. Don’t Miss This INCREDIBLE PRICE IMPROVEMENT - SHORT SALE OPPORTUNITY – New 2024 Home! Energy-Efficient with LOW HOA Fees and Close to the Beach! Why wait to build when you can own this new 2024 home that’s been lived in for only a few weeks? Set on one of the premier lots in Magnolia Bay South, this Everglade floorplan offers 3 bedrooms, 2 bathrooms, and a 2-car garage across 1,483 sq. ft. of modern living. Inside, the open-concept design is filled with natural light and showcases partial water views from the back of the home. The stylish kitchen boasts granite countertops, stainless steel appliances, and a spacious pantry, while flowing seamlessly into the great room and dining nook. Step outside to a covered patio with plenty of room for a future pool—perfect for entertaining or relaxing. The primary suite provides a private retreat with water views, a walk-in shower, dual vanities, and a generous walk-in closet. Two additional bedrooms offer flexibility for guests, an office, or hobbies. Additional features include a brand-new ADT security system (ready for reconnection), durable finishes, energy-efficient construction, and a location in a non-flood zone. Magnolia Bay South keeps living easy with low HOA fees and future resort-style amenities, including a clubhouse, pool, fitness center, dog park, playground, and sports courts. Conveniently close to I-75, you’re minutes from Sarasota, Venice, and Florida’s award-winning Gulf Coast beaches. This is a rare chance to own a nearly new home at an incredible price—schedule your showing today before it’s gone!
Listing Information
Property Type: Residential, Single Family Residence
Status: Active
Bedrooms: 3
Bathrooms: 2
Lot Size: 0.13 Acres
Square Feet: 1,483 sq ft
Year Built: 2024
Garage: Yes
Stories: 1 Story
Construction: Block
Subdivision: Magnolia Bay
Builder: Meritage
Foundation: Slab
County: Sarasota
School Information
Elementary: Laurel Nokomis Elementary
Middle: Laurel Nokomis Middle
High: Venice Senior High
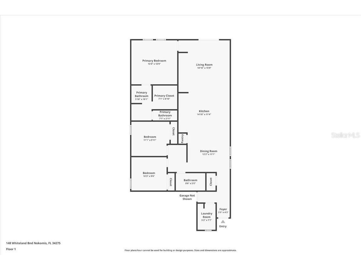
Room Information
Main Floor
Laundry: 8x5
Bedroom 3: 10x10
Bedroom 2: 10x11
Primary Bedroom: 13x13
Living Room: 15x15
Kitchen: 11x15
Dining Room: 11x12
Bathrooms
Full Baths: 2
Additonal Room Information
Laundry: Inside, Laundry Room
Interior Features
Appliances: Exhaust Fan, Ice Maker, Washer, Dishwasher, Disposal, Dryer, Freezer, Microwave, Range, Refrigerator
Flooring: Carpet,Ceramic Tile
Doors/Windows: Window Treatments, Blinds
Additional Interior Features: Split Bedrooms, Walk-In Closet(s), Window Treatments, Attic, Built-in Features, Eat-In Kitchen, Living/Dining Room, Main Level Primary, Stone Counters, Open Floorplan, Kitchen/Family Room Combo, Wood Cabinets
Utilities
Water: Public
Sewer: Public Sewer
Other Utilities: Cable Available,Electricity Connected,High Speed Internet Available,Water Connected
Cooling: Central Air
Heating: Central
Exterior / Lot Features
Attached Garage: Attached Garage
Garage Spaces: 2
Roof: Shingle
Pool: Community
Lot View: Pond,Water
Additional Exterior/Lot Features: Storm/Security Shutters, Sprinkler/Irrigation, Lighting
Community Features
Community Features: Sidewalks, Pool, Tennis Court(s), Playground, Clubhouse, Street Lights, Dog Park, Gated, Park, Fitness, Community Mailbox
Security Features: Security System, Gated Community, Smoke Detector(s)
Association Amenities: Recreation Facilities, Tennis Court(s), Basketball Court, Fitness Center, Playground, Clubhouse, Park, Pickleball, Gated
HOA Dues Include: Maintenance Grounds, Road Maintenance, Common Areas, Pool(s), Taxes, Recreation Facilities
Homeowners Association: Yes
HOA Dues: $150 / Annually
Driving Directions
From I-75/FL681 turn left onto Honore Ave. Drive about 2 miles and turn right onto Ranch Rd. Go to stop sign and turn right to go to Magnolia Bay South. Turn right into community and make a left and 148 Whiteland Bend is on the right
Financial Considerations
Terms: Cash,Conventional,FHA,VA Loan
Tax/Property ID: 0364040203
Tax Amount: 3658
Tax Year: 2024
A broker reciprocity listing courtesy: RE/MAX ALLIANCE GROUP
Based on information provided by Stellar MLS as distributed by the MLS GRID. Information from the Internet Data Exchange is provided exclusively for consumers’ personal, non-commercial use, and such information may not be used for any purpose other than to identify prospective properties consumers may be interested in purchasing. This data is deemed reliable but is not guaranteed to be accurate by Edina Realty, Inc., or by the MLS. Edina Realty, Inc., is not a multiple listing service (MLS), nor does it offer MLS access.
Copyright 2025 Stellar MLS as distributed by the MLS GRID. All Rights Reserved.
Payment Calculator
Interest rate and annual percentage rate (APR) are based on current market conditions, are for informational purposes only, are subject to change without notice and may be subject to pricing add-ons related to property type, loan amount, loan-to-value, credit score and other variables. Estimated closing costs used in the APR calculation are assumed to be paid by the borrower at closing. If the closing costs are financed, the loan, APR and payment amounts will be higher. If the down payment is less than 20%, mortgage insurance may be required and could increase the monthly payment and APR. Contact us for details. Additional loan programs may be available. Accuracy is not guaranteed, and all products may not be available in all borrower's geographical areas and are based on their individual situation. This is not a credit decision or a commitment to lend.
Sales History & Tax Summary for 148 Whiteland Bend
Sales History
| Date | Price | Change |
|---|---|---|
| Currently not available. | ||
Tax Summary
| Tax Year | Estimated Market Value | Total Tax |
|---|---|---|
| Currently not available. | ||
Data powered by ATTOM Data Solutions. Copyright© 2025. Information deemed reliable but not guaranteed.
Schools
Schools nearby 148 Whiteland Bend
| Schools in attendance boundaries | Grades | Distance | Rating |
|---|---|---|---|
| Loading... | |||
| Schools nearby | Grades | Distance | Rating |
|---|---|---|---|
| Loading... | |||
Data powered by ATTOM Data Solutions. Copyright© 2025. Information deemed reliable but not guaranteed.
The schools shown represent both the assigned schools and schools by distance based on local school and district attendance boundaries. Attendance boundaries change based on various factors and proximity does not guarantee enrollment eligibility. Please consult your real estate agent and/or the school district to confirm the schools this property is zoned to attend. Information is deemed reliable but not guaranteed.
SchoolDigger ® Rating
The SchoolDigger rating system is a 1-5 scale with 5 as the highest rating. SchoolDigger ranks schools based on test scores supplied by each state's Department of Education. They calculate an average standard score by normalizing and averaging each school's test scores across all tests and grades.
Coming soon properties will soon be on the market, but are not yet available for showings.