14930 Rider Pass Drive Lithia, FL 33547
For Sale MLS# TB8440600
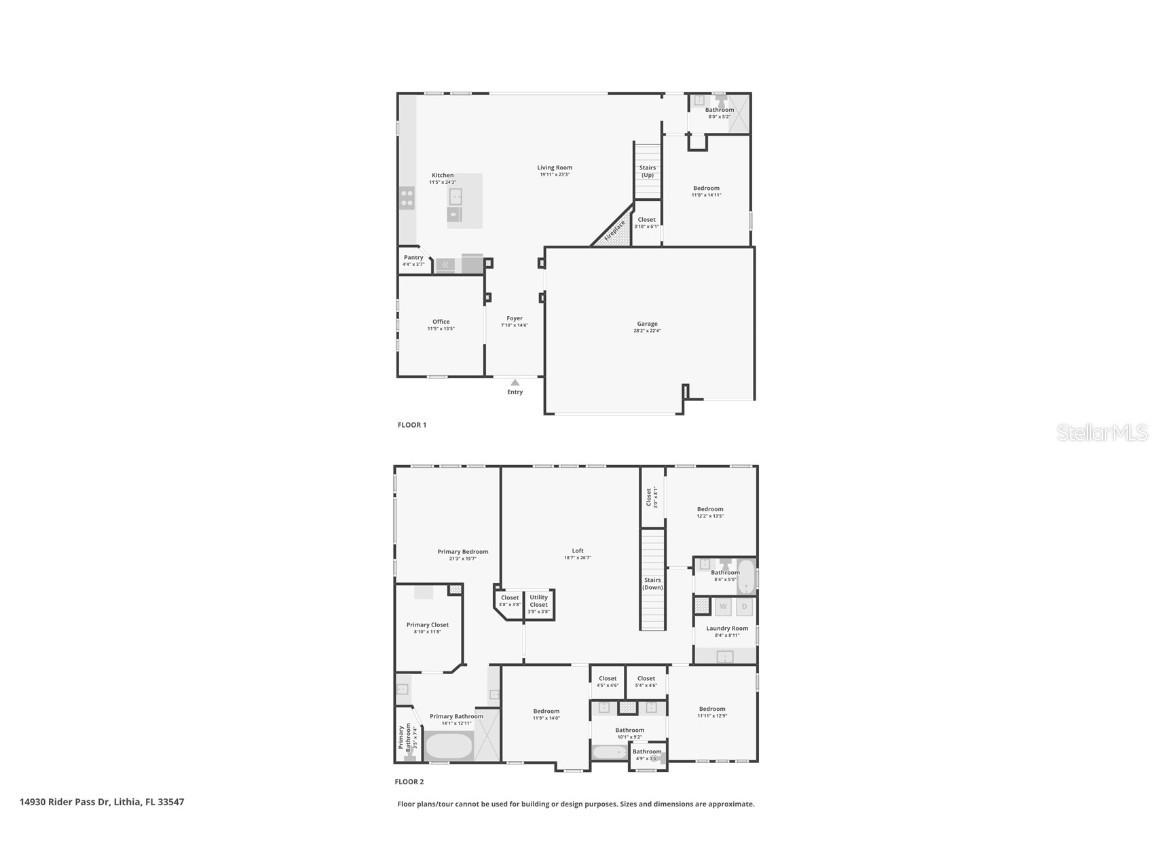
5 beds 4 baths 3,518 sq ft Single Family
Details for 14930 Rider Pass Drive
MLS# TB8440600
Description for 14930 Rider Pass Drive, Lithia, FL, 33547
Shows like a model, better than new with so many upgrades. This two-story home offers the option for an additional bedroom or entertaining area to suit your individual lifestyle. Wonderful open floor-plan with upstairs Owners Retreat. - 5 bedroom, 4 bath, bonus and 3 car garage in 3,518 sq. ft. - Dining Room accessed from foyer - Combination Grand Room, Island Kitchen and Casual Dining - Downstairs Guest Suite with walk-in closet - Upstairs secluded wing for the Owner s Retreat - Oversized secondary bedrooms - Bonus Room. Hawkstone is a master-planned community located in Lithia, FL 33579. Residents enjoy the best of both worlds with resort-style amenities while staying close to top-rated Lithia schools, nature preserves, family-friendly activities, US-301, and I-75. Enjoy the pet-friendly hiking trails at the 969-acre Triple Creek Nature Preserve, less than 2 miles south or try your hand at bicycle motocross at Triple Creek BMX, 1 mile south of Hawkstone. Listing Price amount for this Pending Sale includes Design and Structural Options. Completion date subject to change.
Listing Information
Property Type: Residential, Single Family Residence
Status: Active
Bedrooms: 5
Bathrooms: 4
Lot Size: 0.17 Acres
Square Feet: 3,518 sq ft
Year Built: 2025
Garage: Yes
Stories: 2 Story
Construction: Block,Stone,Stucco
Construction Display: New Construction
Subdivision: Hinton Hawkstone
Builder: Homes By Westbay
Foundation: Block,Slab
County: Hillsborough
Construction Status: New Construction
School Information
Elementary: Pinecrest-Hb
Middle: Barrington Middle
High: Newsome-Hb
Room Information
Main Floor
Great Room:
Kitchen:
Upper Floor
Primary Bedroom:
Bathrooms
Full Baths: 4
Additonal Room Information
Laundry: Laundry Room
Interior Features
Appliances: Dishwasher, Disposal, Microwave, Range
Flooring: Carpet,Vinyl
Additional Interior Features: Walk-In Closet(s), High Ceilings, Open Floorplan, Stone Counters
Utilities
Water: Public
Sewer: Public Sewer
Other Utilities: Natural Gas Connected
Cooling: Central Air
Heating: Central
Exterior / Lot Features
Attached Garage: Attached Garage
Garage Spaces: 3
Roof: Tile
Pool: Community
Additional Exterior/Lot Features: In-Wall Pest Control System
Community Features
Community Features: Pool, Playground, Dog Park, Park
Homeowners Association: Yes
HOA Dues: $259 / Quarterly
Driving Directions
From N & S I-75 take Exit 250. Turn on Gibsonton Road, continue straight until road changes to the name of Boyette Road. Continue on Boyette Rd. to the community at the intersection at Boyette Rd. & Balm Boyette Rd.
Financial Considerations
Tax/Property ID: U-08-31-21-D0K-000040-00005.0
Tax Amount: 5218
Tax Year: 2024
A broker reciprocity listing courtesy: RE/MAX REALTY UNLIMITED
Based on information provided by Stellar MLS as distributed by the MLS GRID. Information from the Internet Data Exchange is provided exclusively for consumers’ personal, non-commercial use, and such information may not be used for any purpose other than to identify prospective properties consumers may be interested in purchasing. This data is deemed reliable but is not guaranteed to be accurate by Edina Realty, Inc., or by the MLS. Edina Realty, Inc., is not a multiple listing service (MLS), nor does it offer MLS access.
Copyright 2025 Stellar MLS as distributed by the MLS GRID. All Rights Reserved.
Payment Calculator
Interest rate and annual percentage rate (APR) are based on current market conditions, are for informational purposes only, are subject to change without notice and may be subject to pricing add-ons related to property type, loan amount, loan-to-value, credit score and other variables. Estimated closing costs used in the APR calculation are assumed to be paid by the borrower at closing. If the closing costs are financed, the loan, APR and payment amounts will be higher. If the down payment is less than 20%, mortgage insurance may be required and could increase the monthly payment and APR. Contact us for details. Additional loan programs may be available. Accuracy is not guaranteed, and all products may not be available in all borrower's geographical areas and are based on their individual situation. This is not a credit decision or a commitment to lend.
Sales History & Tax Summary for 14930 Rider Pass Drive
Sales History
| Date | Price | Change |
|---|---|---|
| Currently not available. | ||
Tax Summary
| Tax Year | Estimated Market Value | Total Tax |
|---|---|---|
| Currently not available. | ||
Data powered by ATTOM Data Solutions. Copyright© 2025. Information deemed reliable but not guaranteed.
Schools
Schools nearby 14930 Rider Pass Drive
| Schools in attendance boundaries | Grades | Distance | Rating |
|---|---|---|---|
| Loading... | |||
| Schools nearby | Grades | Distance | Rating |
|---|---|---|---|
| Loading... | |||
Data powered by ATTOM Data Solutions. Copyright© 2025. Information deemed reliable but not guaranteed.
The schools shown represent both the assigned schools and schools by distance based on local school and district attendance boundaries. Attendance boundaries change based on various factors and proximity does not guarantee enrollment eligibility. Please consult your real estate agent and/or the school district to confirm the schools this property is zoned to attend. Information is deemed reliable but not guaranteed.
SchoolDigger ® Rating
The SchoolDigger rating system is a 1-5 scale with 5 as the highest rating. SchoolDigger ranks schools based on test scores supplied by each state's Department of Education. They calculate an average standard score by normalizing and averaging each school's test scores across all tests and grades.
Coming soon properties will soon be on the market, but are not yet available for showings.