$950,000
14978 Fells Lane Orlando, FL 32827
For Sale MLS# O6385712
6 beds 5 baths 4,560 sq ft Single Family
Details for 14978 Fells Lane
MLS# O6385712
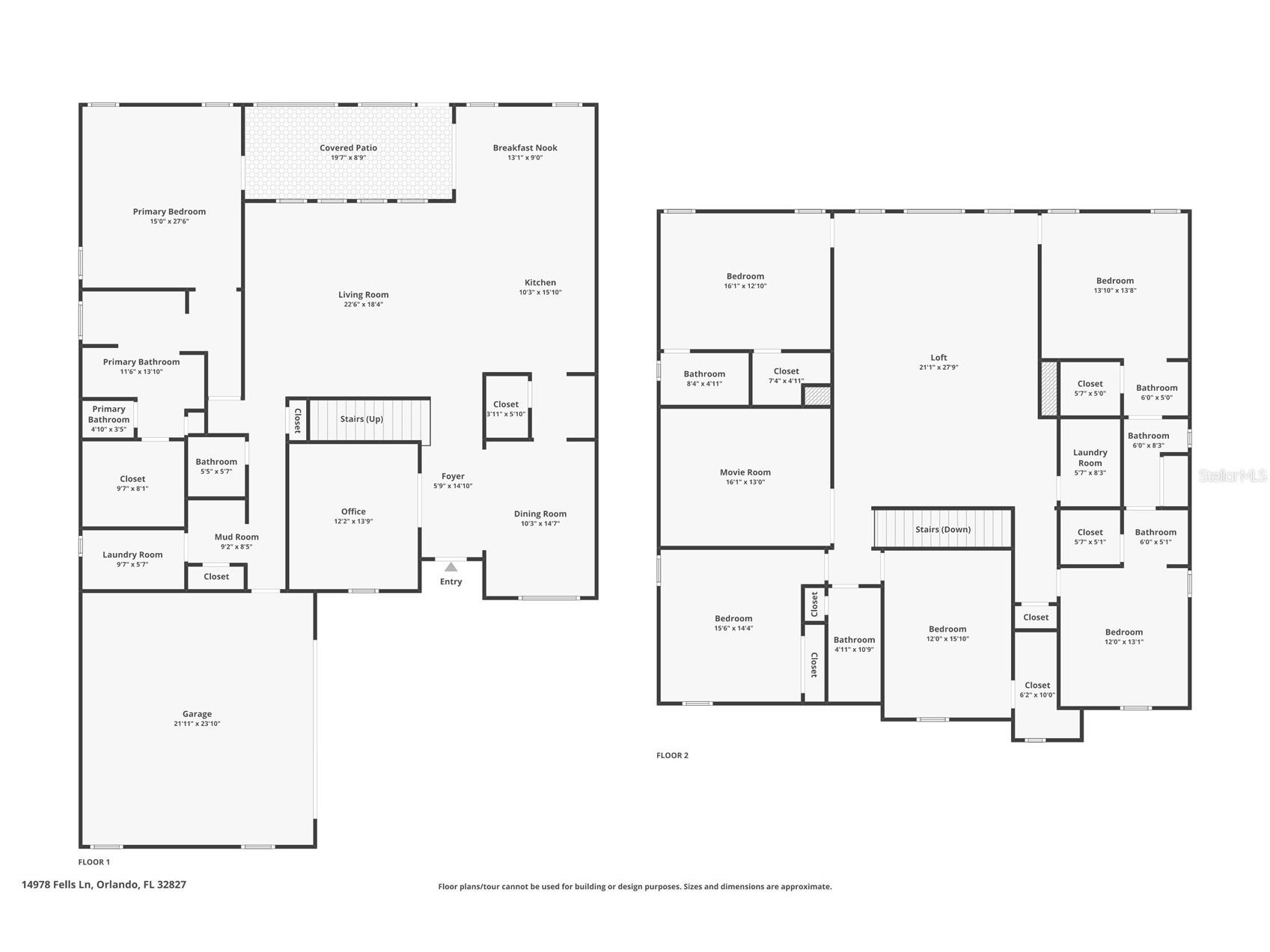
Description for 14978 Fells Lane, Orlando, FL, 32827
One or more photo(s) has been virtually staged. This spacious and beautifully maintained six bedroom home in the heart of Lake Nona’s Fells Landing offers over 4,500 square feet of heated living space and was thoughtfully designed for large families, multigenerational living, and effortless entertaining. Upon entry, you are greeted by a private front office and a formal dining area positioned off the foyer, creating a defined yet open space ideal for gatherings. A butler’s pantry with granite countertops and additional cabinetry connects the dining area to the kitchen, adding both function and convenience. The main living space features expansive tile flooring, recessed lighting throughout, and an open concept layout that flows seamlessly from the kitchen into the oversized living room filled with natural light. The kitchen is the centerpiece of the home, complete with granite countertops, a massive island with seating for four, double built in ovens, stainless steel appliances, solid wood cabinetry, a walk in pantry, and a bright breakfast nook with sliding doors leading to the covered and screened lanai. The primary suite is privately located on the first floor and offers a spacious retreat with generous natural light, dual vanities, granite counters, a garden tub, separate glass enclosed shower, private water closet, and a large walk in closet. Upstairs, you are welcomed by an expansive loft that functions as a true second living area, large enough to accommodate a full sectional and game table. A fully enclosed dedicated media room creates the perfect home theater experience. Five additional bedrooms and multiple full bathrooms, including Jack and Jill configurations, provide comfort and privacy for family members and guests. A second laundry area upstairs adds everyday convenience. Step outside to a covered and screened lanai overlooking a fully fenced backyard with ample room for pets, play, or a future pool. With a tile roof, stone accented Mediterranean elevation, paver driveway, and low HOA, this home delivers exceptional space and flexibility just minutes from Lake Nona Town Center, Medical City, USTA, Orlando International Airport, and major highways.
Listing Information
Property Type: Residential, Single Family Residence
Status: Active
Bedrooms: 6
Bathrooms: 5
Lot Size: 0.21 Acres
Square Feet: 4,560 sq ft
Year Built: 2014
Garage: Yes
Stories: 2 Story
Construction: Block,Stone,Stucco
Subdivision: Fells Landing
Foundation: Slab
County: Orange
School Information
Elementary: Laureate Park Elementary
Middle: Lake Nona Middle School
High: Lake Nona High
Room Information
Main Floor
Office:
Primary Bathroom:
Primary Bedroom:
Dining Room:
Living Room:
Kitchen:
Laundry:
Upper Floor
Laundry:
Bedroom:
Bedroom 5:
Bedroom 4:
Bedroom 3:
Bedroom 2:
Media Room:
Loft:
Bathrooms
Full Baths: 4
1/2 Baths: 1
Additonal Room Information
Laundry: Laundry Room
Interior Features
Appliances: Built-In Oven, Microwave, Refrigerator, Cooktop, Dishwasher, Disposal, Dryer
Flooring: Carpet,Ceramic Tile
Doors/Windows: Blinds, Window Treatments
Additional Interior Features: Eat-In Kitchen, Built-in Features, Window Treatments, Living/Dining Room, Split Bedrooms, Loft, Walk-In Closet(s), Stone Counters, Wood Cabinets, Separate/Formal Dining Room, Smart Home, Open Floorplan, Main Level Primary, Dry Bar, Kitchen/Family Room Combo
Utilities
Water: Public
Sewer: Public Sewer
Other Utilities: Cable Available,Electricity Available,Municipal Utilities
Cooling: Central Air
Heating: Central
Exterior / Lot Features
Attached Garage: Attached Garage
Garage Spaces: 2
Parking Description: Oversized, driveway, Garage Door Opener, Garage
Roof: Tile
Fencing: fenced
Additional Exterior/Lot Features: Sprinkler/Irrigation, Private Yard, Rain Gutters, Lighting, Screened, Covered, Rear Porch, Flat, Level, Landscaped, City Lot
Community Features
Community Features: Dog Park, Sidewalks, Playground
Security Features: Closed Circuit Camera(s), Smoke Detector(s)
Homeowners Association: Yes
HOA Dues: $105 / Monthly
Driving Directions
417 to Narcoossee Road. After pass Isle of Lake Nona community turn right on Fells Landing Community.
Financial Considerations
Terms: Cash,Conventional,Other,VA Loan
Tax/Property ID: 32-24-31-2801-00-860
Tax Amount: 8200.28
Tax Year: 2025
A broker reciprocity listing courtesy: REAL BROKER, LLC
Based on information provided by Stellar MLS as distributed by the MLS GRID. Information from the Internet Data Exchange is provided exclusively for consumers’ personal, non-commercial use, and such information may not be used for any purpose other than to identify prospective properties consumers may be interested in purchasing. This data is deemed reliable but is not guaranteed to be accurate by Edina Realty, Inc., or by the MLS. Edina Realty, Inc., is not a multiple listing service (MLS), nor does it offer MLS access.
Copyright 2026 Stellar MLS as distributed by the MLS GRID. All Rights Reserved.
Payment Calculator
Interest rate and annual percentage rate (APR) are based on current market conditions, are for informational purposes only, are subject to change without notice and may be subject to pricing add-ons related to property type, loan amount, loan-to-value, credit score and other variables. Estimated closing costs used in the APR calculation are assumed to be paid by the borrower at closing. If the closing costs are financed, the loan, APR and payment amounts will be higher. If the down payment is less than 20%, mortgage insurance may be required and could increase the monthly payment and APR. Contact us for details. Additional loan programs may be available. Accuracy is not guaranteed, and all products may not be available in all borrower's geographical areas and are based on their individual situation. This is not a credit decision or a commitment to lend.
Sales History & Tax Summary for 14978 Fells Lane
Sales History
| Date | Price | |
|---|---|---|
| Currently not available. | ||
Tax Summary
| Tax Year | Estimated Market Value | Total Tax |
|---|---|---|
| Currently not available. | ||
Data powered by ATTOM Data Solutions. Copyright© 2026. Information deemed reliable but not guaranteed.
Schools
Schools nearby 14978 Fells Lane
| Schools in attendance boundaries | Grades | Distance | Rating |
|---|---|---|---|
| Loading... | |||
| Schools nearby | Grades | Distance | Rating |
|---|---|---|---|
| Loading... | |||
Data powered by ATTOM Data Solutions. Copyright© 2026. Information deemed reliable but not guaranteed.
The schools shown represent both the assigned schools and schools by distance based on local school and district attendance boundaries. Attendance boundaries change based on various factors and proximity does not guarantee enrollment eligibility. Please consult your real estate agent and/or the school district to confirm the schools this property is zoned to attend. Information is deemed reliable but not guaranteed.
SchoolDigger ® Rating
The SchoolDigger rating system is a 1-5 scale with 5 as the highest rating. SchoolDigger ranks schools based on test scores supplied by each state's Department of Education. They calculate an average standard score by normalizing and averaging each school's test scores across all tests and grades.
Coming soon properties will soon be on the market, but are not yet available for showings.