1506 Finnigan Circle Haines City, FL 33844
For Sale MLS# O6344569
4 beds 3 baths 2,232 sq ft Single Family
Details for 1506 Finnigan Circle
MLS# O6344569
Description for 1506 Finnigan Circle, Haines City, FL, 33844
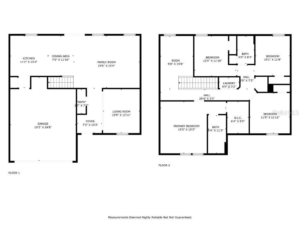
Get this home with 100% Financing (NO Down Payment)! Welcome to Gracelyn Grove – where charm meets convenience! With a low HOA and NO CDD, this community is perfectly located in historic Haines City, FL, just off US-27 and minutes from I-4. Enjoy being only five minutes from Lake Eva Park, offering a splash pad, fishing pond, miles of walking trails, and activities for the whole family. You’ll also have Florida’s top attractions close by, including Bok Tower Gardens and Legoland, with endless shopping and dining at Posner Park just 20 minutes away. This brand-new 4 bedroom, 2.5 bath two-story home is designed with today’s lifestyle in mind. The open-concept layout features a spacious kitchen/dining combo with breakfast bar and walk-in pantry, flowing seamlessly into a large Great Room perfect for entertaining. A welcoming flex room off the entry provides extra versatility, along with a convenient powder room for guests. Upstairs, the owner’s suite offers a private retreat with a generous walk-in closet and luxurious dual-sink bath. Three additional bedrooms, a spacious loft, and an upstairs laundry room add comfort and convenience for the whole family.
Listing Information
Property Type: Residential, Single Family Residence
Status: Active
Bedrooms: 4
Bathrooms: 3
Lot Size: 0.13 Acres
Square Feet: 2,232 sq ft
Year Built: 2023
Garage: Yes
Stories: 2 Story
Construction: Block,Stucco,Wood Frame
Subdivision: Gracelyn Grove Ph 1
Foundation: Slab
County: Polk
Room Information
Main Floor
Dining Room: 11.1x7.5
Kitchen: 15.4x11.1
Great Room: 15.4x19.6
Upper Floor
Primary Bathroom: 11.3x5.4
Primary Bedroom: 15.4x19.3
Bathrooms
Full Baths: 2
1/2 Baths: 1
Additonal Room Information
Laundry: Inside
Interior Features
Appliances: Washer, Microwave, Range, Refrigerator, Dishwasher, Dryer
Flooring: Carpet,Tile
Additional Interior Features: Ceiling Fan(s), Stone Counters, Upper Level Primary, Walk-In Closet(s)
Utilities
Water: Public
Sewer: Public Sewer
Other Utilities: Municipal Utilities
Cooling: Central Air, Ceiling Fan(s)
Heating: Electric, Central
Exterior / Lot Features
Attached Garage: Attached Garage
Garage Spaces: 2
Roof: Shingle
Community Features
Community Features: Sidewalks, Playground, Dog Park
Homeowners Association: Yes
HOA Dues: $250 / Quarterly
Driving Directions
From Gracelyn Grove, Turn Right on Timmy Way, Turn Left on Tank Trail, Turn Right onto Finnigan Cir
Financial Considerations
Terms: Assumable,Cash,Conventional,FHA,USDA Loan,VA Loan
Tax/Property ID: 27-27-34-810535-001320
Tax Amount: 4989.89
Tax Year: 2024
A broker reciprocity listing courtesy: EXP REALTY LLC
Based on information provided by Stellar MLS as distributed by the MLS GRID. Information from the Internet Data Exchange is provided exclusively for consumers’ personal, non-commercial use, and such information may not be used for any purpose other than to identify prospective properties consumers may be interested in purchasing. This data is deemed reliable but is not guaranteed to be accurate by Edina Realty, Inc., or by the MLS. Edina Realty, Inc., is not a multiple listing service (MLS), nor does it offer MLS access.
Copyright 2026 Stellar MLS as distributed by the MLS GRID. All Rights Reserved.
Payment Calculator
Interest rate and annual percentage rate (APR) are based on current market conditions, are for informational purposes only, are subject to change without notice and may be subject to pricing add-ons related to property type, loan amount, loan-to-value, credit score and other variables. Estimated closing costs used in the APR calculation are assumed to be paid by the borrower at closing. If the closing costs are financed, the loan, APR and payment amounts will be higher. If the down payment is less than 20%, mortgage insurance may be required and could increase the monthly payment and APR. Contact us for details. Additional loan programs may be available. Accuracy is not guaranteed, and all products may not be available in all borrower's geographical areas and are based on their individual situation. This is not a credit decision or a commitment to lend.
Sales History & Tax Summary for 1506 Finnigan Circle
Sales History
| Date | Price | |
|---|---|---|
| Currently not available. | ||
Tax Summary
| Tax Year | Estimated Market Value | Total Tax |
|---|---|---|
| Currently not available. | ||
Data powered by ATTOM Data Solutions. Copyright© 2026. Information deemed reliable but not guaranteed.
Schools
Schools nearby 1506 Finnigan Circle
| Schools in attendance boundaries | Grades | Distance | Rating |
|---|---|---|---|
| Loading... | |||
| Schools nearby | Grades | Distance | Rating |
|---|---|---|---|
| Loading... | |||
Data powered by ATTOM Data Solutions. Copyright© 2026. Information deemed reliable but not guaranteed.
The schools shown represent both the assigned schools and schools by distance based on local school and district attendance boundaries. Attendance boundaries change based on various factors and proximity does not guarantee enrollment eligibility. Please consult your real estate agent and/or the school district to confirm the schools this property is zoned to attend. Information is deemed reliable but not guaranteed.
SchoolDigger ® Rating
The SchoolDigger rating system is a 1-5 scale with 5 as the highest rating. SchoolDigger ranks schools based on test scores supplied by each state's Department of Education. They calculate an average standard score by normalizing and averaging each school's test scores across all tests and grades.
Coming soon properties will soon be on the market, but are not yet available for showings.