$199,800
Off-Market Date: 03/02/20261510 Grotte Avenue NE Bemidji Twp, MN 56601
Pending MLS# 6785469
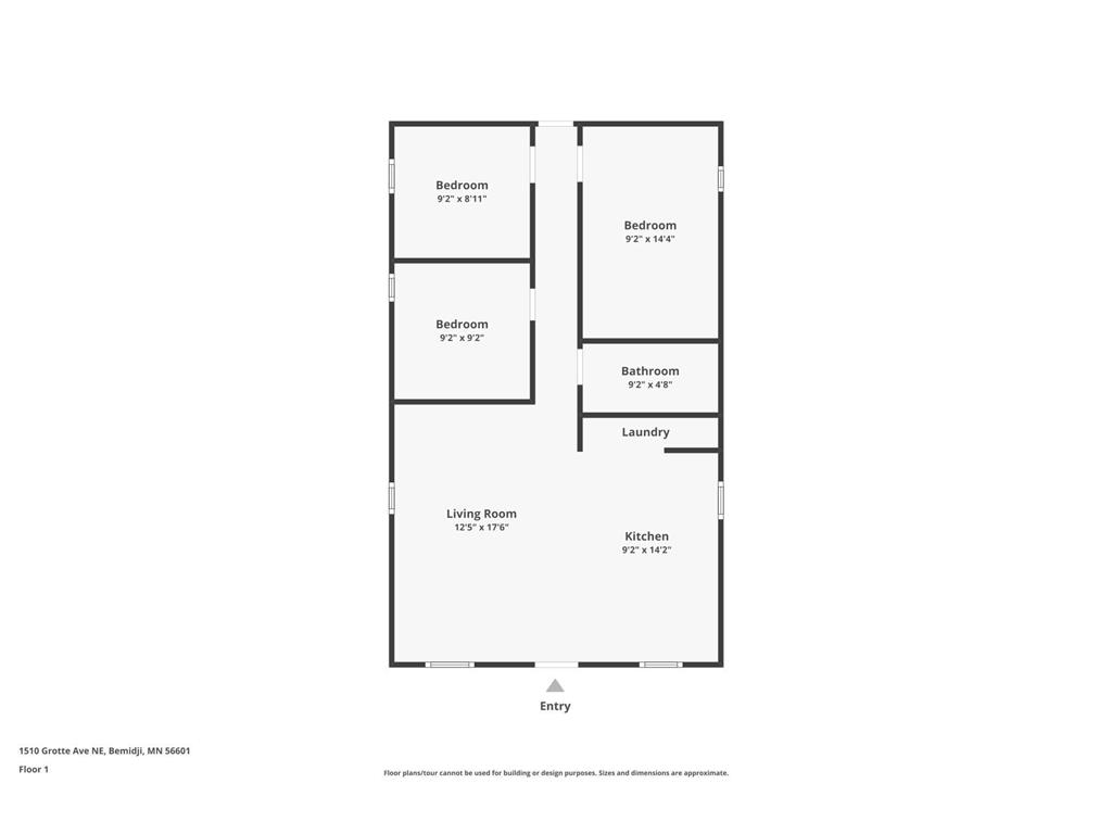
3 beds 1 baths 960 sq ft Single Family
Details for 1510 Grotte Avenue NE
MLS# 6785469
Description for 1510 Grotte Avenue NE, Bemidji Twp, MN, 56601
Bordering Bemidji city limits, this property delivers a country feel with close convenience minutes to amenities. The 3BR/1BA, 960-sq-ft home sits on a level 2.5-acre parcel on the east side of town. Durable steel siding and natural-gas service (added 2024) pair with a newer furnace for year-round efficiency. Interior updates include: kitchen refresh with newer cabinetry, countertops, sink/faucet, and refrigerator; bathroom with new sink/faucet; also newer water heater and pressure tank. Each bedroom has a new egress window. Outside, enjoy a large concrete patio with a fire ring. The fully sheeted, insulated, double-stall detached pole building features a concrete floor and power with newer electrical—great for vehicles, shop, or gear. Private well and compliant septic in place. Property holds a Short-Term Rental license with Bemidji Township; buyer to verify requirements and transferability with Bemidji Township. Solid, straightforward, and ready for its next chapter—full-time living or an easy base close to town.
Listing Information
Property Type: Residential, Single Family, Patio Home,Ranch-Style Home,Shouse (Shop + House)
Status: Pending
Bedrooms: 3
Bathrooms: 1
Lot Size: 2.50 Acres
Square Feet: 960 sq ft
Year Built: 1996
Foundation: 960 sq ft
Garage: Yes
Stories: 1 Story
County: Beltrami
Days On Market: 173
Construction Status: Previously Owned
School Information
District: 31 - Bemidji
Room Information
Bathrooms
Full Baths: 1
Additonal Room Information
Family: Main Level
Dining: Kitchen/Dining Room
Laundry: In Kitchen, Washer Hookup, Electric Dryer Hookup
Bath Description: Main Floor Full Bath
Interior Features
Square Footage above: 960 sq ft
Appliances: Electric Water Heater, Washer, Range, Refrigerator, Dryer, Microwave
Fireplaces: 1, Gas Burning
Additional Interior Features: Main Floor Laundry, Washer/Dryer Hookup, Kitchen Window, Ceiling Fan(s), 3 BR on One Level, All Living Facilities on One Level, Main Floor Bedroom
Utilities
Water: 4-Inch Submersible, Drilled, Well, Private
Sewer: Septic System Compliant - Yes, Private
Cooling: Window
Heating: Fireplace, Natural Gas
Exterior / Lot Features
Garage Spaces: 2
Open Parking: 6
Parking Description: Insulated Garage, Driveway - Gravel, Detached Garage, Finished Garage, Garage Dimensions - 26x36, Garage Door Height - 7, Garage Door Width - 16, Garage Sq Ft - 936.0
Exterior: Steel Siding
Roof: Age Over 8 Years, Metal, Pitched
Lot Dimensions: 360x300
Zoning: Residential-Single Family
Additional Exterior/Lot Features: Tree Coverage - Medium, Underground Utilities, Road Frontage - City
Driving Directions
Lake ave to Saint Onge DR NE Right onto Grotte home is on Left
Financial Considerations
Tax/Property ID: 030008400
Tax Amount: 1934
Tax Year: 2025
HomeStead Description: Non-Homesteaded
A broker reciprocity listing courtesy: 218 Real Estate
The data relating to real estate for sale on this web site comes in part from the Broker Reciprocity℠ Program of the Regional Multiple Listing Service of Minnesota, Inc. Real estate listings held by brokerage firms other than Edina Realty, Inc. are marked with the Broker Reciprocity℠ logo or the Broker Reciprocity℠ thumbnail and detailed information about them includes the name of the listing brokers. Edina Realty, Inc. is not a Multiple Listing Service (MLS), nor does it offer MLS access. This website is a service of Edina Realty, Inc., a broker Participant of the Regional Multiple Listing Service of Minnesota, Inc. IDX information is provided exclusively for consumers personal, non-commercial use and may not be used for any purpose other than to identify prospective properties consumers may be interested in purchasing. Open House information is subject to change without notice. Information deemed reliable but not guaranteed.
Copyright 2026 Regional Multiple Listing Service of Minnesota, Inc. All Rights Reserved.
Sales History & Tax Summary for 1510 Grotte Avenue NE
Sales History
| Date | Price | |
|---|---|---|
| Currently not available. | ||
Tax Summary
| Tax Year | Estimated Market Value | Total Tax |
|---|---|---|
| Currently not available. | ||
Data powered by ATTOM Data Solutions. Copyright© 2026. Information deemed reliable but not guaranteed.
Schools
Schools nearby 1510 Grotte Avenue NE
| Schools in attendance boundaries | Grades | Distance | Rating |
|---|---|---|---|
| Loading... | |||
| Schools nearby | Grades | Distance | Rating |
|---|---|---|---|
| Loading... | |||
Data powered by ATTOM Data Solutions. Copyright© 2026. Information deemed reliable but not guaranteed.
The schools shown represent both the assigned schools and schools by distance based on local school and district attendance boundaries. Attendance boundaries change based on various factors and proximity does not guarantee enrollment eligibility. Please consult your real estate agent and/or the school district to confirm the schools this property is zoned to attend. Information is deemed reliable but not guaranteed.
SchoolDigger ® Rating
The SchoolDigger rating system is a 1-5 scale with 5 as the highest rating. SchoolDigger ranks schools based on test scores supplied by each state's Department of Education. They calculate an average standard score by normalizing and averaging each school's test scores across all tests and grades.
Coming soon properties will soon be on the market, but are not yet available for showings.