1513 Senate Lane Northfield, MN 55057
For Sale MLS# 6803267
3 beds 2 baths 1,630 sq ft Townhouse/Twinhome
Listed by: Edina Realty, Inc.
Details for 1513 Senate Lane
MLS# 6803267
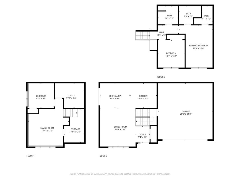
Description for 1513 Senate Lane, Northfield, MN, 55057
Beautiful one owner quad townhome near schools, senior center, minutes to shopping areas & downtown. 3 Bedrooms, two upper level with two baths, including freshly redone master with walk-in closet and new shower. Updates throughout main level. Nice living room, kitchen and dining area, walks out to 10x10 deck. New appliances 2024. Lower level has family room, 3rd bedroom, roughed in bath. Washer & dryer in utility room. Nice double garage 22x22. Home warranty included.
Listing Information
Property Type: Residential, Side by Side
Status: Active
Bedrooms: 3
Bathrooms: 2
Lot Size: 0.16 Acres
Square Feet: 1,630 sq ft
Year Built: 2000
Foundation: 1,079 sq ft
Garage: Yes
Stories: Three Level Split
Property Attached: Yes
Subdivision: Presidential Commons Cic 33
County: Rice
Days On Market: 147
Construction Status: Previously Owned
School Information
District: 659 - Northfield
Room Information
Main Floor
Deck: 10x10
Dining Room: 11x9
Kitchen: 10x9
Living Room: 15x14
Upper Floor
Bedroom 1: 16x10.5
Bedroom 2: 10x10
Lower Floor
Bedroom 3: 9x9
Family Room: 13.5x12.5
Bathrooms
Full Baths: 1
3/4 Baths: 1
Additonal Room Information
Family: Family Room,Lower Level
Dining: Kitchen/Dining Room
Laundry: In Basement, Washer Hookup, Lower Level
Bath Description: Rough In,Upper Level 3/4 Bath,Upper Level Full Bath
Interior Features
Square Footage above: 1,079 sq ft
Square Footage below: 551 sq ft
Appliances: Electric Water Heater, Dishwasher, Dryer, Refrigerator, Washer, Water Softener - Owned
Basement: Concrete Block
Utilities
Water: City Water/Connected
Sewer: City Sewer - In Street, City Sewer/Connected
Cooling: Central
Heating: Natural Gas, Forced Air
Exterior / Lot Features
Attached Garage: Attached Garage
Garage Spaces: 2
Parking Description: Garage Door Opener, Driveway - Asphalt, Attached Garage, Insulated Garage, Tuckunder Garage, Finished Garage, Garage Dimensions - 22x22, Garage Sq Ft - 484.0
Exterior: Vinyl
Roof: Age 8 Years or Less, Asphalt Shingles, Tile
Lot Dimensions: 45x38
Zoning: Residential-Single Family
Additional Exterior/Lot Features: Not Applicable, Road Frontage - Paved Streets, City, Curbs
Community Features
Association Amenities: Deck
HOA Dues Include: Outside Maintenance, Snow Removal, Hazard Insurance, Lawn Care, Electric, Building Exterior, Professional Mgmt
Homeowners Association: Yes
Association Name: Associan One
HOA Dues: $246 / Monthly
Driving Directions
Hwy 3 to Jefferson Pkwy to Presidential Dr to Senate Lane.
Financial Considerations
Covenants/Deed Restrictions: Mandatory Owners Assoc
Tax/Property ID: 2201451075
Tax Amount: 4038
Tax Year: 2025
HomeStead Description: Non-Homesteaded
The data relating to real estate for sale on this web site comes in part from the Broker Reciprocity℠ Program of the Regional Multiple Listing Service of Minnesota, Inc. Real estate listings held by brokerage firms other than Edina Realty, Inc. are marked with the Broker Reciprocity℠ logo or the Broker Reciprocity℠ thumbnail and detailed information about them includes the name of the listing brokers. Edina Realty, Inc. is not a Multiple Listing Service (MLS), nor does it offer MLS access. This website is a service of Edina Realty, Inc., a broker Participant of the Regional Multiple Listing Service of Minnesota, Inc. IDX information is provided exclusively for consumers personal, non-commercial use and may not be used for any purpose other than to identify prospective properties consumers may be interested in purchasing. Open House information is subject to change without notice. Information deemed reliable but not guaranteed.
Copyright 2026 Regional Multiple Listing Service of Minnesota, Inc. All Rights Reserved.
Payment Calculator
Interest rate and annual percentage rate (APR) are based on current market conditions, are for informational purposes only, are subject to change without notice and may be subject to pricing add-ons related to property type, loan amount, loan-to-value, credit score and other variables. Estimated closing costs used in the APR calculation are assumed to be paid by the borrower at closing. If the closing costs are financed, the loan, APR and payment amounts will be higher. If the down payment is less than 20%, mortgage insurance may be required and could increase the monthly payment and APR. Contact us for details. Additional loan programs may be available. Accuracy is not guaranteed, and all products may not be available in all borrower's geographical areas and are based on their individual situation. This is not a credit decision or a commitment to lend.
Sales History & Tax Summary for 1513 Senate Lane
Sales History
| Date | Price | |
|---|---|---|
| Currently not available. | ||
Tax Summary
| Tax Year | Estimated Market Value | Total Tax |
|---|---|---|
| Currently not available. | ||
Data powered by ATTOM Data Solutions. Copyright© 2026. Information deemed reliable but not guaranteed.
Schools
Schools nearby 1513 Senate Lane
| Schools in attendance boundaries | Grades | Distance | Rating |
|---|---|---|---|
| Loading... | |||
| Schools nearby | Grades | Distance | Rating |
|---|---|---|---|
| Loading... | |||
Data powered by ATTOM Data Solutions. Copyright© 2026. Information deemed reliable but not guaranteed.
The schools shown represent both the assigned schools and schools by distance based on local school and district attendance boundaries. Attendance boundaries change based on various factors and proximity does not guarantee enrollment eligibility. Please consult your real estate agent and/or the school district to confirm the schools this property is zoned to attend. Information is deemed reliable but not guaranteed.
SchoolDigger ® Rating
The SchoolDigger rating system is a 1-5 scale with 5 as the highest rating. SchoolDigger ranks schools based on test scores supplied by each state's Department of Education. They calculate an average standard score by normalizing and averaging each school's test scores across all tests and grades.
Coming soon properties will soon be on the market, but are not yet available for showings.