$450,000
1520/1526 SW 9th Place #206 Cape Coral, FL 33991
For Sale MLS# 2026006813
Other
Details for 1520/1526 SW 9th Place #206
MLS# 2026006813
Description for 1520/1526 SW 9th Place #206, Cape Coral, FL, 33991
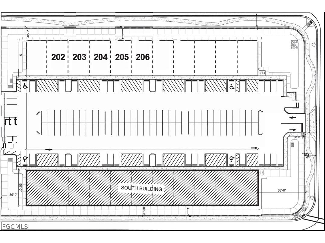
Introducing The Flex at Trafalgar, Cape Coral’s newest flex warehouse development, designed to accommodate a wide range of business, storage, and professional uses. Located at 1007 Trafalgar Parkway, this modern project offers high-quality construction, excellent accessibility, and flexible layouts ideal for owner-users or investors. There are five units currently available, each offering approximately 1,470 square feet with a 30-foot wide by 49-foot deep configuration. The units are constructed with tilt-wall concrete construction and feature large overhead doors, making them well-suited for light industrial use, storage, contractor space, service businesses, or showroom-style operations.Each unit includes an ADA-compliant bathroom, central air conditioning, NFPA 13 fire suppression system, and 125 AMP 3-phase electrical service, providing a strong infrastructure for a variety of business needs. Clear ceiling heights of approximately 16–17 feet allow for efficient use of vertical space. The property is located in Flood Zone X, offering additional peace of mind. The Flex at Trafalgar is thoughtfully designed with a clean, modern aesthetic and convenient on-site circulation, making it an attractive and functional option for businesses seeking flexibility and long-term value. The location offers easy access to major roadways and surrounding Cape Coral commercial corridors. This is a rare opportunity to own within a newly developed flex warehouse project in a growing Southwest Florida market. Availability is limited. Buyer to verify all specifications and permitted uses.
Listing Information
Property Type: Commercial Sale
Status: Active
Year Built: 2026
Stories: 1 Story
Current Use: Industrial,Mixed Use
County: Lee
Days On Market: 6
Utilities
Other Utilities: Electricity Available
Financial Considerations
Tax Year: 2026
A broker reciprocity listing courtesy: Royal Shell Real Estate, Inc.
Based on information provided by FGCMLS. Internet Data Exchange information is provided exclusively for consumers’ personal, non-commercial use, and such information may not be used for any purpose other than to identify prospective properties consumers may be interested in purchasing. This data is deemed reliable but is not guaranteed to be accurate by Edina Realty, Inc., or by the MLS. Edina Realty, Inc., is not a multiple listing service (MLS), nor does it offer MLS access.
Copyright 2026 FGCMLS. All Rights Reserved.
Payment Calculator
Interest rate and annual percentage rate (APR) are based on current market conditions, are for informational purposes only, are subject to change without notice and may be subject to pricing add-ons related to property type, loan amount, loan-to-value, credit score and other variables. Estimated closing costs used in the APR calculation are assumed to be paid by the borrower at closing. If the closing costs are financed, the loan, APR and payment amounts will be higher. If the down payment is less than 20%, mortgage insurance may be required and could increase the monthly payment and APR. Contact us for details. Additional loan programs may be available. Accuracy is not guaranteed, and all products may not be available in all borrower's geographical areas and are based on their individual situation. This is not a credit decision or a commitment to lend.
Sales History & Tax Summary for 1520/1526 SW 9th Place #206
Sales History
| Date | Price | |
|---|---|---|
| Currently not available. | ||
Tax Summary
| Tax Year | Estimated Market Value | Total Tax |
|---|---|---|
| Currently not available. | ||
Data powered by ATTOM Data Solutions. Copyright© 2026. Information deemed reliable but not guaranteed.
Schools
Schools nearby 1520/1526 SW 9th Place #206
| Schools in attendance boundaries | Grades | Distance | Rating |
|---|---|---|---|
| Loading... | |||
| Schools nearby | Grades | Distance | Rating |
|---|---|---|---|
| Loading... | |||
Data powered by ATTOM Data Solutions. Copyright© 2026. Information deemed reliable but not guaranteed.
The schools shown represent both the assigned schools and schools by distance based on local school and district attendance boundaries. Attendance boundaries change based on various factors and proximity does not guarantee enrollment eligibility. Please consult your real estate agent and/or the school district to confirm the schools this property is zoned to attend. Information is deemed reliable but not guaranteed.
SchoolDigger ® Rating
The SchoolDigger rating system is a 1-5 scale with 5 as the highest rating. SchoolDigger ranks schools based on test scores supplied by each state's Department of Education. They calculate an average standard score by normalizing and averaging each school's test scores across all tests and grades.
Coming soon properties will soon be on the market, but are not yet available for showings.