15222 Lost Lake Lane Lithia, FL 33547
For Sale MLS# TB8446377
8 beds 5 baths 4,784 sq ft Single Family
Details for 15222 Lost Lake Lane
MLS# TB8446377
Description for 15222 Lost Lake Lane, Lithia, FL, 33547
Fantastic opportunity to build equity right away, their loss is your gain! This 4.1-acre property offers a spacious 2,400 sq ft main home with endless potential. With a little TLC, this property can easily be restored to its former glory, making it ideal for buyers looking to invest, renovate, or enjoy peaceful country living. The main home features two septic systems, a shallow well, two water heaters, and a roof installed in 2019. The A/C unit is approximately 8 years old. With no HOA, CDD, or deed restrictions, you'll have the freedom to customize the property to your vision. Enjoy the quiet charm of rural living while staying conveniently close to shopping, schools, and major highways. Whether you're expanding your homestead or looking for a spacious retreat, this property offers the space and flexibility you've been searching for.
Listing Information
Property Type: Residential, Single Family Residence
Status: Active
Bedrooms: 8
Bathrooms: 5
Lot Size: 4.10 Acres
Square Feet: 4,784 sq ft
Year Built: 1982
Stories: 1 Story
Construction: Wood Siding
Subdivision: Unplatted
Foundation: Crawlspace
County: Hillsborough
School Information
Elementary: Pinecrest-Hb
Middle: Barrington Middle
High: Newsome-Hb
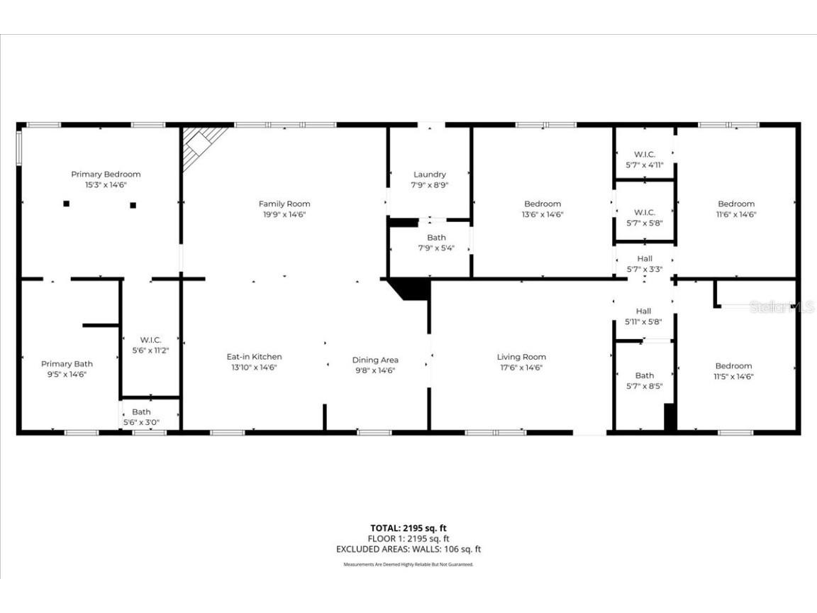
Room Information
Main Floor
Den: 11x11
Bedroom 2: 23x11
Bedroom 1: 13x10
Primary Bathroom: 10x6
Primary Bedroom: 14x13
Family Room: 15x13
Kitchen: 16x14
Dining Room: 15x13
Living Room: 18x18
Bathrooms
Full Baths: 4
1/2 Baths: 1
Additonal Room Information
Laundry: Laundry Room
Interior Features
Appliances: Built-In Oven, Cooktop, Dishwasher, Refrigerator
Flooring: Carpet,Ceramic Tile,Laminate
Basement: Crawl Space
Doors/Windows: Blinds
Fireplaces: Wood Burning
Accessibility: Accessibility Features
Additional Interior Features: Ceiling Fan(s), Eat-In Kitchen, Cathedral Ceiling(s), High Ceilings, Living/Dining Room, Walk-In Closet(s), Open Floorplan, Stone Counters, Main Level Primary, Crown Molding
Utilities
Water: Well
Sewer: Septic Tank
Other Utilities: Cable Available,Electricity Available
Cooling: Central Air, Ceiling Fan(s)
Heating: Central
Exterior / Lot Features
Parking Description: Open
Roof: Shingle
Fencing: Chain Link
Additional Exterior/Lot Features: French Patio Doors, Storage, Lighting, Covered, Front Porch, Rear Porch, Screened, Pasture, Outside City Limits
Out Buildings: Storage, Shed(s), Second Residence
Driving Directions
From Highway 60 head east and take a right onto Hillsborough County Rd 39, turn right onto Balm Picnic Rd and then right on Lost Lake Ln home will be located on the right.
Financial Considerations
Terms: Cash,Conventional
Tax/Property ID: U-19-31-22-ZZZ-000005-31140.0
Tax Amount: 3761.64
Tax Year: 2024
A broker reciprocity listing courtesy: SOUTHERN PINE REALTY GROUP, LLC
Based on information provided by Stellar MLS as distributed by the MLS GRID. Information from the Internet Data Exchange is provided exclusively for consumers’ personal, non-commercial use, and such information may not be used for any purpose other than to identify prospective properties consumers may be interested in purchasing. This data is deemed reliable but is not guaranteed to be accurate by Edina Realty, Inc., or by the MLS. Edina Realty, Inc., is not a multiple listing service (MLS), nor does it offer MLS access.
Copyright 2025 Stellar MLS as distributed by the MLS GRID. All Rights Reserved.
Payment Calculator
Interest rate and annual percentage rate (APR) are based on current market conditions, are for informational purposes only, are subject to change without notice and may be subject to pricing add-ons related to property type, loan amount, loan-to-value, credit score and other variables. Estimated closing costs used in the APR calculation are assumed to be paid by the borrower at closing. If the closing costs are financed, the loan, APR and payment amounts will be higher. If the down payment is less than 20%, mortgage insurance may be required and could increase the monthly payment and APR. Contact us for details. Additional loan programs may be available. Accuracy is not guaranteed, and all products may not be available in all borrower's geographical areas and are based on their individual situation. This is not a credit decision or a commitment to lend.
Sales History & Tax Summary for 15222 Lost Lake Lane
Sales History
| Date | Price | Change |
|---|---|---|
| Currently not available. | ||
Tax Summary
| Tax Year | Estimated Market Value | Total Tax |
|---|---|---|
| Currently not available. | ||
Data powered by ATTOM Data Solutions. Copyright© 2025. Information deemed reliable but not guaranteed.
Schools
Schools nearby 15222 Lost Lake Lane
| Schools in attendance boundaries | Grades | Distance | Rating |
|---|---|---|---|
| Loading... | |||
| Schools nearby | Grades | Distance | Rating |
|---|---|---|---|
| Loading... | |||
Data powered by ATTOM Data Solutions. Copyright© 2025. Information deemed reliable but not guaranteed.
The schools shown represent both the assigned schools and schools by distance based on local school and district attendance boundaries. Attendance boundaries change based on various factors and proximity does not guarantee enrollment eligibility. Please consult your real estate agent and/or the school district to confirm the schools this property is zoned to attend. Information is deemed reliable but not guaranteed.
SchoolDigger ® Rating
The SchoolDigger rating system is a 1-5 scale with 5 as the highest rating. SchoolDigger ranks schools based on test scores supplied by each state's Department of Education. They calculate an average standard score by normalizing and averaging each school's test scores across all tests and grades.
Coming soon properties will soon be on the market, but are not yet available for showings.