1531 Corolla Court Reunion, FL 34747
For Sale MLS# O6360346
6 beds 7 baths 3,620 sq ft Single Family
Details for 1531 Corolla Court
MLS# O6360346
Description for 1531 Corolla Court, Reunion, FL, 34747
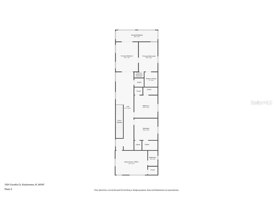
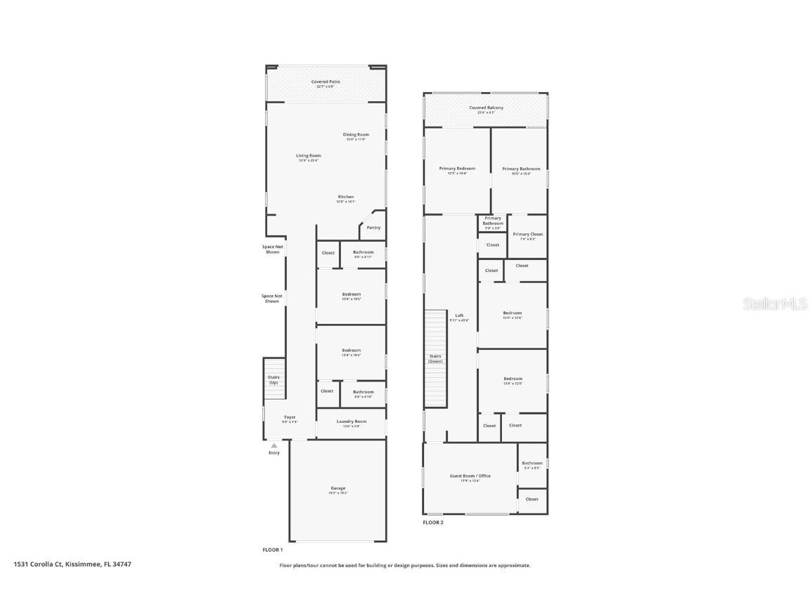
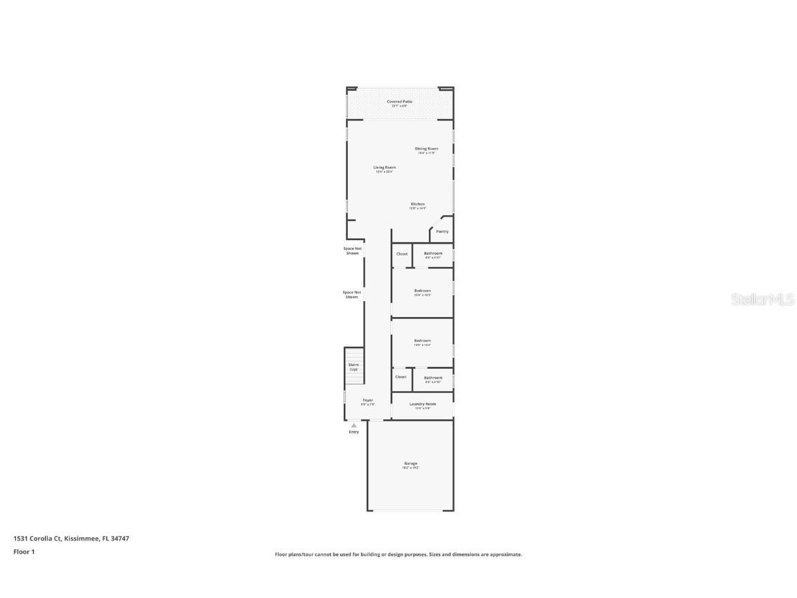
*Active Platinum Membership - Sophisticated 6 Bedroom 6.5 bath single family home is now available for the discerning buyer. Use as a primary, STR or LTR. Impressive lot in signature Palmer golf course on the 6th hole. Upgrades: custom pergola (2025) that enhances the living experience of the backyard pool area. The pool was resurfaced (11/2025), retiled (11/2025) deck pavers sealed (2025). Salt water pool and spa system. Outdoor grill. Pavers newly sealed (2025) and extended from the drive, along the side of the home to the new pergola and outdoor living area. Once inside the front door, you will be welcomed by a light environment that is pleasing to your soul. Laundry room on your right provides custom cabinets to the ceiling. In fact this concept of extended to the ceiling cabinetry is found in extensive areas of your home. Garage epoxy flooring (2024) with overhead storage racks (2025). Upgraded tile on first floor. Two ensuite bedrooms, custom built shoe closet and half bath are found in hallway. Decorative beams in hallway. Study nook with extensive cabinets. Great room has an open floor concept providing easy flow between the dining table, gourmet kitchen, living / tv area and out towards pool. Extended kitchen cabinets that reach up flush to ceiling height. Beyond ample storage space in your home. The pot filler is just another reminder that this house lacks nothing. The kitchen island is massive. Custom crown molding in the great room augments living space. Furnishings are included. Upstairs LVP flooring throughout with tile in bathrooms. Loft awaits you with both a sitting area on one end and a workstation with extended cabinets on other. Adorning the walls are a rare set of sign collectibles that the sellers are willing to sell in a separate transaction. Master ensuite bedroom is set up to perfectly enjoy your pool and golf views out the back from screened in balcony. Master bathroom exudes a spa like environment with both a walk in shower and soaking tub. Dual vanities and well sized walk in closet with extensive custom cabinetry are features you will love. Proceed towards the front of your home passing two exquisitely decorated theme ensuite bedrooms. A playful pirate boat theme and slide, and the other is a perfect princess fairytale with slide. Custom designed by a perfectionist set designer for the world class theme parks found in the Orlando. No expense spared and includes a custom mural commissioned by a professional muralist in the Princess room. Proceed to pass by a wonderfully proportioned work station with extended to the ceiling cabinets. This area will then allow you to enter into the guest ensuite bedroom / office space upstairs that is near the front of the home. Large proportions leave ample area to work, relax or sleep while visiting you and Reunion Resort. The home is extremely energy efficient and you will appreciate the far below average energy bills for such a large living space. Tankless water heaters for never ending hot water. Gas heated pool and spa. Privacy is secured with high end plantation shutters that are custom to the home (2024). The reunion resort coupled with your Platinum Membership boosts unrivaled amenities including: five classy restaurants, water park, 14 community pools, volleyball, tennis, golf, shopping and more! Not to mention this is all found in a 24 hour guard gated community just minutes from world class theme parks!
Listing Information
Property Type: Residential, Single Family Residence
Status: Active
Bedrooms: 6
Bathrooms: 7
Lot Size: 0.11 Acres
Square Feet: 3,620 sq ft
Year Built: 2022
Garage: Yes
Stories: 2 Story
Construction: Concrete,Wood Frame
Construction Display: New Construction
Subdivision: Reunion - Liberty Bluff
Builder: ICN Homes LLC
Foundation: Slab
County: Osceola
Construction Status: New Construction
Room Information
Main Floor
Primary Bedroom: 18x15
Living Room: 20x17
Kitchen: 15x15
Bathrooms
Full Baths: 6
1/2 Baths: 1
Additonal Room Information
Laundry: Inside
Interior Features
Appliances: Cooktop, Dishwasher, Disposal, Dryer, Microwave, Range, Refrigerator, Washer, Range Hood
Flooring: Ceramic Tile,Luxury Vinyl
Doors/Windows: Shutters
Additional Interior Features: Walk-In Closet(s), Ceiling Fan(s), High Ceilings, Crown Molding, Open Floorplan, Solid Surface Counters, Upper Level Primary
Utilities
Sewer: Public Sewer
Other Utilities: Cable Available,Cable Connected,Electricity Available,Sewer Available,Water Not Available
Cooling: Ceiling Fan(s), Central Air
Heating: Central, Electric
Exterior / Lot Features
Attached Garage: Attached Garage
Garage Spaces: 2
Roof: Tile
Pool: In Ground
Lot View: Golf Course
Lot Dimensions: 35x140
Fencing: fenced
Additional Exterior/Lot Features: Outdoor Grill, Balcony, Balcony
Community Features
Community Features: Gated
Security Features: Gated Community
Homeowners Association: Yes
HOA Dues: $559 / Monthly
Driving Directions
Go to the entrance off of Osceola Polk Line Rd and Rafina Blvd just west of the Publix shopping area. Go through the gate. Continue on Reunion Blvd and cross over via the bridge crossing of Old Lake Wilson Rd. The road will change names and now be Gathering Dr. Take a right on Excitement Dr. and then after several minutes of winding around, turn right onto Corolla Ct. Home of your right.
Financial Considerations
Terms: Cash,Conventional,FHA,VA Loan
Tax/Property ID: 35-25-27-4838-0001-0710
Tax Amount: 10370.8
Tax Year: 2025
A broker reciprocity listing courtesy: BURNINGHAM REALTY
Based on information provided by Stellar MLS as distributed by the MLS GRID. Information from the Internet Data Exchange is provided exclusively for consumers’ personal, non-commercial use, and such information may not be used for any purpose other than to identify prospective properties consumers may be interested in purchasing. This data is deemed reliable but is not guaranteed to be accurate by Edina Realty, Inc., or by the MLS. Edina Realty, Inc., is not a multiple listing service (MLS), nor does it offer MLS access.
Copyright 2026 Stellar MLS as distributed by the MLS GRID. All Rights Reserved.
Payment Calculator
Interest rate and annual percentage rate (APR) are based on current market conditions, are for informational purposes only, are subject to change without notice and may be subject to pricing add-ons related to property type, loan amount, loan-to-value, credit score and other variables. Estimated closing costs used in the APR calculation are assumed to be paid by the borrower at closing. If the closing costs are financed, the loan, APR and payment amounts will be higher. If the down payment is less than 20%, mortgage insurance may be required and could increase the monthly payment and APR. Contact us for details. Additional loan programs may be available. Accuracy is not guaranteed, and all products may not be available in all borrower's geographical areas and are based on their individual situation. This is not a credit decision or a commitment to lend.
Sales History & Tax Summary for 1531 Corolla Court
Sales History
| Date | Price | |
|---|---|---|
| Currently not available. | ||
Tax Summary
| Tax Year | Estimated Market Value | Total Tax |
|---|---|---|
| Currently not available. | ||
Data powered by ATTOM Data Solutions. Copyright© 2026. Information deemed reliable but not guaranteed.
Schools
Schools nearby 1531 Corolla Court
| Schools in attendance boundaries | Grades | Distance | Rating |
|---|---|---|---|
| Loading... | |||
| Schools nearby | Grades | Distance | Rating |
|---|---|---|---|
| Loading... | |||
Data powered by ATTOM Data Solutions. Copyright© 2026. Information deemed reliable but not guaranteed.
The schools shown represent both the assigned schools and schools by distance based on local school and district attendance boundaries. Attendance boundaries change based on various factors and proximity does not guarantee enrollment eligibility. Please consult your real estate agent and/or the school district to confirm the schools this property is zoned to attend. Information is deemed reliable but not guaranteed.
SchoolDigger ® Rating
The SchoolDigger rating system is a 1-5 scale with 5 as the highest rating. SchoolDigger ranks schools based on test scores supplied by each state's Department of Education. They calculate an average standard score by normalizing and averaging each school's test scores across all tests and grades.
Coming soon properties will soon be on the market, but are not yet available for showings.