15364 Newport Road Clearwater, FL 33764
For Sale MLS# TB8454358
3 beds 2 baths 2,243 sq ft Single Family
OPEN HOUSE: Sunday, 5/17 10:00 AM - 02:00 PM
Details for 15364 Newport Road
MLS# TB8454358
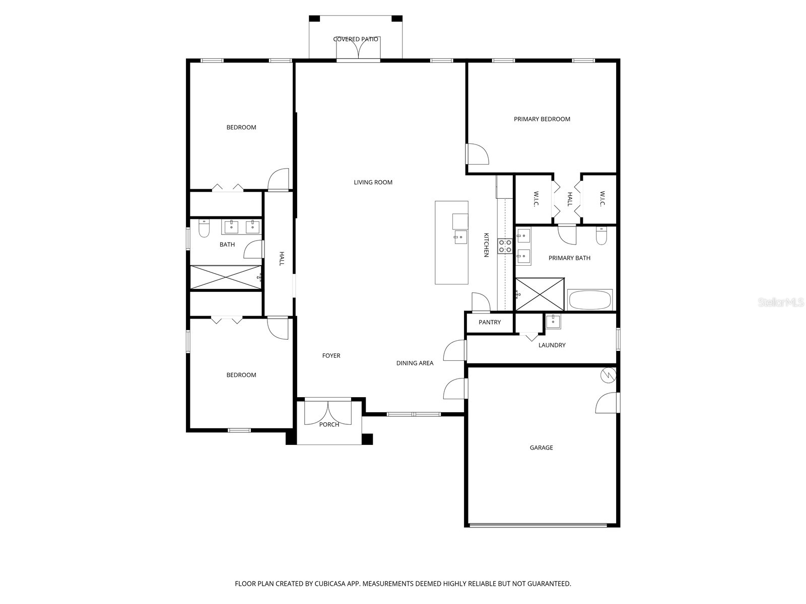
Description for 15364 Newport Road, Clearwater, FL, 33764
PRICE IMPROVEMENT! WATERFRONT BRAND NEW CONSTRUCTION! NO HOA, NO CDD, FLOOD ZONE X Welcome to this stunning brand-new construction home, completed to perfection and offering serene lake views right from your backyard. This beautifully designed residence features an inviting open layout, high ceilings, a spacious backyard, and a double-car garage. Inside, you’ll find a well-appointed laundry room and modern finishes throughout. The expansive primary bedroom is a true retreat, showcasing dual walk-in closets and a luxury spa-like bathroomfeaturing dual sinks, a relaxing soaking bathtub, and a separate shower. Ideally situated close to shops and located outside of any flood zone, this home delivers both comfort and peace of mind. Move-in ready and crafted for today’s lifestyle, this property is a must-see!
Listing Information
Property Type: Residential, Single Family Residence
Status: Active
Bedrooms: 3
Bathrooms: 2
Lot Size: 0.21 Acres
Square Feet: 2,243 sq ft
Year Built: 2025
Garage: Yes
Stories: 1 Story
Construction: Block,Stucco
Construction Display: New Construction
Subdivision: Newport Unit 2
Foundation: Concrete Perimeter
County: Pinellas
Construction Status: New Construction
Room Information
Main Floor
Living Room:
Primary Bedroom:
Kitchen:
Bathrooms
Full Baths: 2
Additonal Room Information
Laundry: Inside, Laundry Room
Interior Features
Appliances: Electric Water Heater, Range Hood, Dishwasher, Disposal, Range, Refrigerator
Flooring: Other
Additional Interior Features: Ceiling Fan(s), Walk-In Closet(s), High Ceilings, Living/Dining Room, Open Floorplan, Coffered Ceiling(s), Main Level Primary
Utilities
Water: Public
Sewer: Public Sewer
Other Utilities: Electricity Connected,Sewer Connected,Water Connected
Cooling: Central Air, Ceiling Fan(s)
Heating: Central
Exterior / Lot Features
Attached Garage: Attached Garage
Garage Spaces: 2
Roof: Shingle, Other
Lot View: Water
Lot Dimensions: 74x130
Additional Exterior/Lot Features: French Patio Doors, Front Porch, Rear Porch
Driving Directions
Take left ramp onto I-275 S (SR-400) toward St Petersburg. Go for 10.3 mi. Keep left onto I-275 Express Ln. Go for 1.8 mi. Take the left exit toward SR-690-TOLL W/US-19/Airport. Go for 0.8 mi. Continue on CR-296 W. Go for 0.4 mi. Continue on SR-690 E. Go for 0.5 mi. Keep left onto SR-686A W toward SR-686A-TOLL W/SR-686 W/Roosevelt Blvd/St Pete-CLWTR Intl Airport. Go for 2.7 mi. Continue on Roosevelt Blvd (SR-686 W). Go for 2.7 mi. Turn left onto Newport Rd. Go for 0.3 mi. B End at 15364 Newport Rd Clearwater, Florida 33764-7098
Financial Considerations
Terms: Cash,Conventional,FHA,VA Loan
Tax/Property ID: 31-29-16-59940-440-0010
Tax Amount: 674.62
Tax Year: 2024
A broker reciprocity listing courtesy: EXP REALTY LLC
Based on information provided by Stellar MLS as distributed by the MLS GRID. Information from the Internet Data Exchange is provided exclusively for consumers’ personal, non-commercial use, and such information may not be used for any purpose other than to identify prospective properties consumers may be interested in purchasing. This data is deemed reliable but is not guaranteed to be accurate by Edina Realty, Inc., or by the MLS. Edina Realty, Inc., is not a multiple listing service (MLS), nor does it offer MLS access.
Copyright 2026 Stellar MLS as distributed by the MLS GRID. All Rights Reserved.
Payment Calculator
Interest rate and annual percentage rate (APR) are based on current market conditions, are for informational purposes only, are subject to change without notice and may be subject to pricing add-ons related to property type, loan amount, loan-to-value, credit score and other variables. Estimated closing costs used in the APR calculation are assumed to be paid by the borrower at closing. If the closing costs are financed, the loan, APR and payment amounts will be higher. If the down payment is less than 20%, mortgage insurance may be required and could increase the monthly payment and APR. Contact us for details. Additional loan programs may be available. Accuracy is not guaranteed, and all products may not be available in all borrower's geographical areas and are based on their individual situation. This is not a credit decision or a commitment to lend.
Sales History & Tax Summary for 15364 Newport Road
Sales History
| Date | Price | |
|---|---|---|
| Currently not available. | ||
Tax Summary
| Tax Year | Estimated Market Value | Total Tax |
|---|---|---|
| Currently not available. | ||
Data powered by ATTOM Data Solutions. Copyright© 2026. Information deemed reliable but not guaranteed.
Schools
Schools nearby 15364 Newport Road
| Schools in attendance boundaries | Grades | Distance | Rating |
|---|---|---|---|
| Loading... | |||
| Schools nearby | Grades | Distance | Rating |
|---|---|---|---|
| Loading... | |||
Data powered by ATTOM Data Solutions. Copyright© 2026. Information deemed reliable but not guaranteed.
The schools shown represent both the assigned schools and schools by distance based on local school and district attendance boundaries. Attendance boundaries change based on various factors and proximity does not guarantee enrollment eligibility. Please consult your real estate agent and/or the school district to confirm the schools this property is zoned to attend. Information is deemed reliable but not guaranteed.
SchoolDigger ® Rating
The SchoolDigger rating system is a 1-5 scale with 5 as the highest rating. SchoolDigger ranks schools based on test scores supplied by each state's Department of Education. They calculate an average standard score by normalizing and averaging each school's test scores across all tests and grades.
Coming soon properties will soon be on the market, but are not yet available for showings.